Objektdaten
Objektbeschreibung
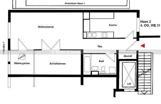
Der Wohnkomplex von ca. 1996 besteht aus drei 4- bis 6-geschossigen Bauteilen mit insgesamt 44 Wohnungen und 2 Gewerbeeinheiten im Erdgeschoss. Der hier betreffende Bauteil ist Haus 2. Der Gebäudekomplex ist voll unterkellert und verfügt über eine Tiefgarage mit 28 Pkw-Stellplätzen sowie weitere 8 Außenstellplätze. Das Objekt hat eine Gas-Zentralheizung mit Warmwasserversorgung.Die betreffende Eigentumswohnung Nr. 31 ist von dem im Innenbereich gelegenenen Hauseingang erreichbar. Sie verfügt über ein Wohnzimmer mit Zugang in den Wintergarten sowie ins Schlafzimmer, eine separate Küche, innen liegendes Wannenbad, Abstellecke und Flur.Die Kunststofffenster haben eine Isolier- und Schallschutzverglasung. Ferner gehört ein Abstellraum im Keller zum Wohneigentum.Ähnliche Angebote
So funktioniert es
- Alle neuen Anzeigen matchen wir kostenlos mit Deinen Suchparametern.
- Passende Angebote senden wir Dir in einer E-Mail pro Tag.
- Du kannst auch verschiedene Suchen anlegen und Dich jederzeit abmelden. Mehr dazu




