Wieso noch Miete zahlen? Reihenendhaus mit viel Platz!

Kaufpreis 362.350 €
Zimmer 6
Größe 130 m²
17509 Lubmin

Objektdaten

Veröffentlicht am: 28. März 2026
Energieausweis: Liegt bei der Besichtigung vor
Neu

Über ähnliche Angebote direkt informiert werden

  • Objektbeschreibung

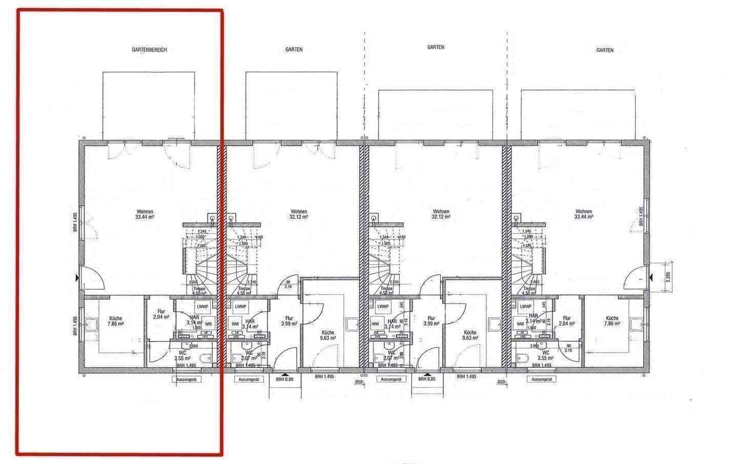
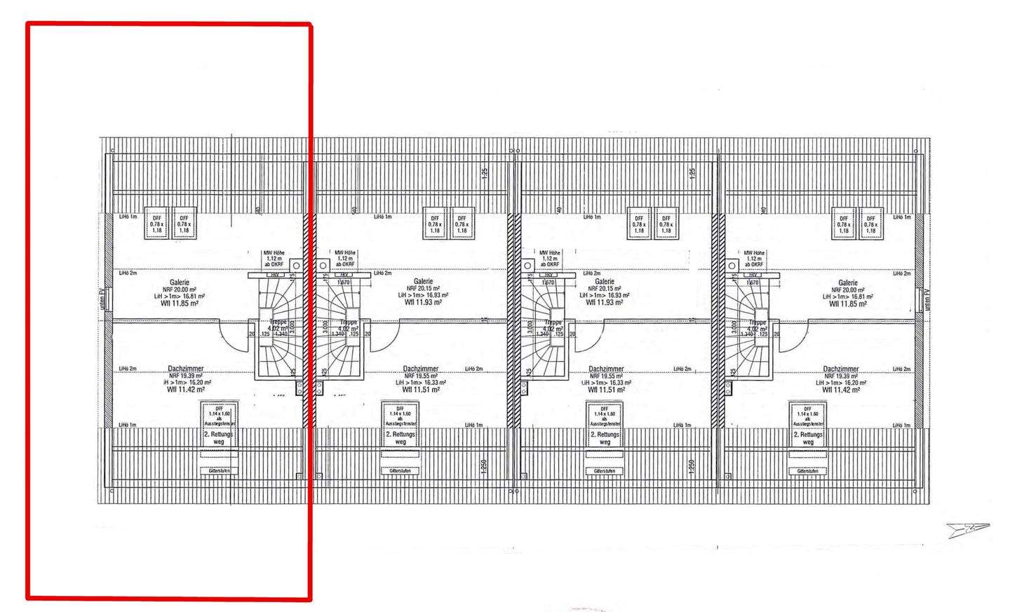
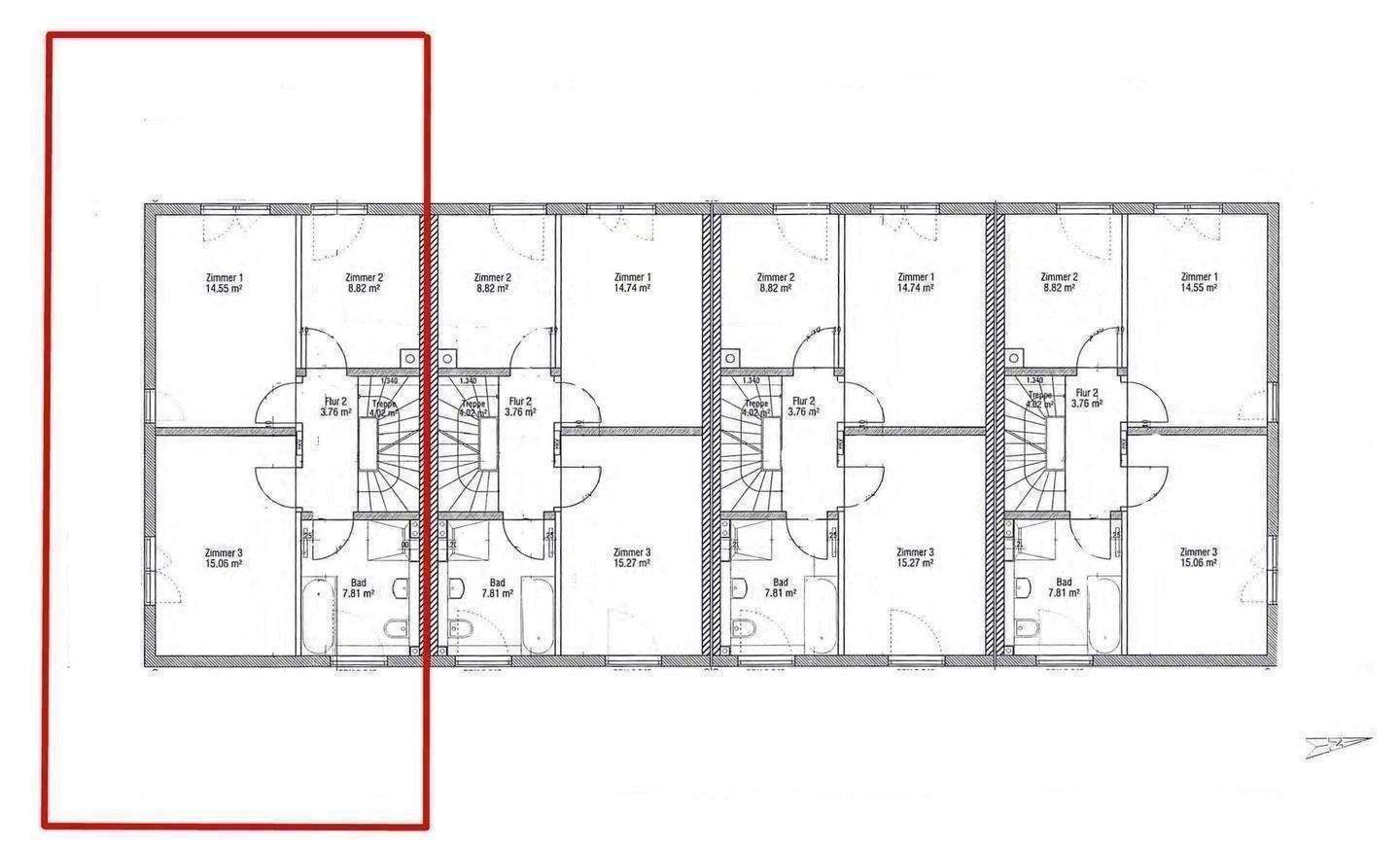
    Ein Reihenhaus ist eine optimale Lösung für alle, die sich genügend Raum zum Wohnen wünschen, aber zugleich in einer Region bauen in der Grundstücke knapp sind. Das Reihenhaus Mainz 128 wird in klassischer Weise als Kombination von vier Reihenhäusern gebaut. Vier Familien leben quasi unter einem Dach, Sie können von der guten Nachbarschaft und der Hausgemeinschaft profitieren. Zugleich lässt Ihr Reihenhaus genügend Platz für Ihre Individualität.Im Erdgeschoss verfügen Sie über ein großes Wohnzimmer mit einladendem Essbereich. Die hohen Fenster machen Ihre Räume hell und freundlich und gewähren Ihnen einen freien Blick in den Garten. Über den geschwungenen Aufgang erreichen Sie das Obergeschoss mit einem gemütlichen Schlaf- und Gästezimmer sowie einem geräumigen Kinderzimmer. Unter dem Dach schlägt das Herz tatsächlich höher – zumindest bei allen, die sich schon immer eine großzügiges Galerie als kreativen Freiraum gewünscht haben. Es gibt hier ein weiteres Zimmer zur freien Verfügung.Das Reihenhaus Mainz bietet individuelles Wohnen in der Gemeinschaft und vereint damit viele Vorteile. Rufen Sie uns gleich an!Wir helfen Ihnen gerne weiter!Ihr zuständiger Berater:Herr Martin HardtkeTel. 0171 3590820email: [email protected]

    Ähnliche Angebote

    So funktioniert es

    • Alle neuen Anzeigen matchen wir kostenlos mit Deinen Suchparametern.
    • Passende Angebote senden wir Dir in einer E-Mail pro Tag.
    • Du kannst auch verschiedene Suchen anlegen und Dich jederzeit abmelden. Mehr dazu
    Nach oben scrollen