Objektdaten
Objektbeschreibung
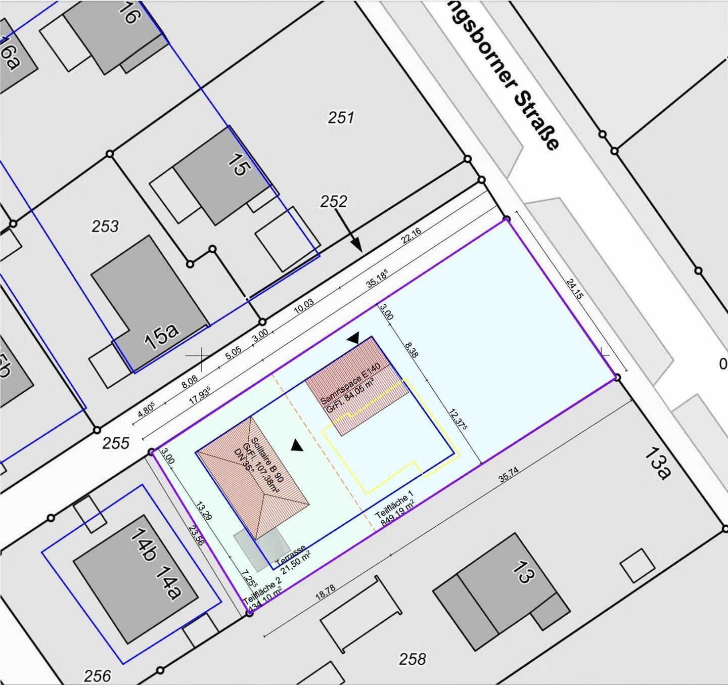
Werden Sie Schwabenhaus-Bauherr und bauen Sie Ihr maßgeschneidertes Traumhaus!Angeboten wird ein Baugrundstück, das zunächst direkt von privat erworben und anschließend mit Ihrem individuellen Traumhaus bebaut werden wird. Seit 1966 hat Schwabenhaus über 25.000 Hausträume realisiert und liefert seinen Bauherr schlüsselfertige, also zu 100% bezugsfertige Häuser sowie Häuser für den Selbstausbau - entsprechend Ihrer Wünsche, Bedürfnisse und Fähigkeiten. Alle Schwabenhäuser werden am Unternehmenssitz in Heringen in der bekannten Manufaktur-Qualität produziert und erhalten die einmalige 10/30 Jahre Gewährleistung.Ähnliche Angebote
So funktioniert es
- Alle neuen Anzeigen matchen wir kostenlos mit Deinen Suchparametern.
- Passende Angebote senden wir Dir in einer E-Mail pro Tag.
- Du kannst auch verschiedene Suchen anlegen und Dich jederzeit abmelden. Mehr dazu




