Kaufpreis 741.018 €
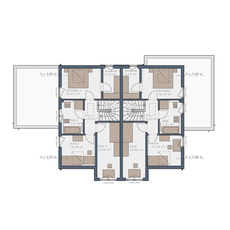
Zimmer 8
Größe 223 m²
14822 Borkheide
Objektdaten
Veröffentlicht am: 29. März 2026
Energieausweis: Liegt bei der Besichtigung vor
Danke! Bitte bestätige Deine E-Mail-Adresse – wir haben Dir soeben eine Mail geschickt.
Es gab ein Problem beim Absenden. Bitte versuche es erneut.
Bitte bestätige Deine E-Mail-Adresse, um Updates zu erhalten.
Objektbeschreibung
Ein Zuhause, das verbindet: Ein Zweifamilienhaus bedeutet mehr als nur zwei Wohneinheiten - es ist ein Ort, an dem Generationen zusammenfinden und zugleich jeder seinen eigenen Rückzugsraum genießen kann. Hier entstehen gemeinsame Erinnerungen, während jede Familie ihre Individualität lebt.Ob Großeltern mit Kindern und Enkeln, Geschwister oder Freunde - ein maßgeschneidertes Zweifamilienhaus bietet Ihnen die Möglichkeit, das Leben unter einem Dach auf ganz besondere Weise zu gestalten. Gemeinsame Mahlzeiten, unvergessliche Familienfeste oder einfach das Gefühl, dass die Liebsten gleich nebenan sind, machen dieses Haus zu einem Ort voller Geborgenheit.Die durchdachten Grundrisse schaffen Raum für Nähe und Privatsphäre gleichermaßen: Offene Wohnbereiche laden zum Zusammensein ein, helle Räume schenken Leichtigkeit und Wärme. Gleichzeitig bietet jede Wohneinheit ausreichend Platz, um den Alltag individuell zu gestalten - sei es mit einem gemütlichen Rückzugsort, einem Kinderzimmer zum Spielen oder einem Hobbyraum für kreative Ideen.Dank modernster Bauweise und nachhaltiger Technik können Sie sicher sein, dass Ihr Zuhause nicht nur heute, sondern auch in Zukunft ein Ort des Wohlbefindens bleibt. Energieeffizienz, umweltfreundliche Materialien und eine Photovoltaikanlage sorgen dafür, dass Sie mit gutem Gewissen leben - für sich selbst und die nächsten Generationen.Dieses Zweifamilienhaus ist mehr als ein Bauprojekt - es ist die Grundlage für ein Leben voller gemeinsamer Momente, gegenseitiger Unterstützung und persönlicher Freiheit. Ein Zuhause, das Herz und Zukunft vereint.
So funktioniert es
- Alle neuen Anzeigen matchen wir kostenlos mit Deinen Suchparametern.
- Passende Angebote senden wir Dir in einer E-Mail pro Tag.
- Du kannst auch verschiedene Suchen anlegen und Dich jederzeit abmelden. Mehr dazu
Wir haben soeben eine E-Mail mit Deinem Suchauftrag an Dich geschickt. – Klicke in dieser Mail auf den Bestätigungslink und schon geht's los. Prüfe ggf. auch Deinen Spamordner.
Es gab ein Problem beim Absenden Deiner E-Mail-Adresse. Bitte versuche es erneut.
WARNUNG: Bitte bestätige Deine E-Mail-Adresse, um regelmäßige Updates zu erhalten.