Kaufpreis inklusive Baugrundstück, Einfamilienhaus in KfW 55 Ausführung mit 8 kWp Photovoltaikanlage und vollwertigen Einrichtungen wie Luft-Wasser-Wärmepumpe und elektrischen Rollläden.
Objektdaten
Objektbeschreibung
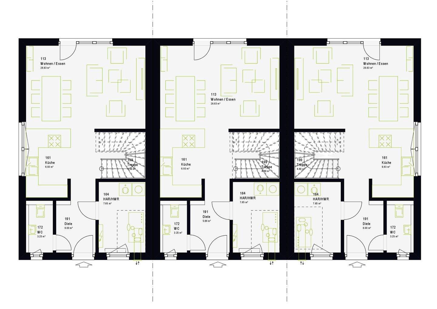
Im Kaufpreis enthalten sind das Baugrundstück, dieses beispielhafte Einfamilienhaus in KfW 55 Ausführung mit einer 8 kWp Photovoltaikanlage, die Bodenplatte inkl. Bodengutachten, die Kompaktanlage Luft-Wasser-Wärmepumpe, eine kontrollierte Be- und Entlüftungsanlage mit Wärmerückgewinnung, die Innentreppe, das Material und der Einbau für die Dämmung und Beplankung, Heizung- und Sanitärohstallation mit Fußbodenheizung und Sanitärobjekten inkl. Einbau, die Elektroarbeiten, elektrische Rollläden, sowie natürlich dieses herrliche Architektenhaus, von innen und außen fix und fertig, inkl. Haustür, Fenster, elektrische Alu-Rollläden, Einbau von Fliesen und Bodenbelägen, Innentüren, Malerarbeiten, Dachrinne, Dacheindeckung, Außenputz und Architektenleistungen. Gegen Aufpreis gibt es für dieses Haus auch einen Vollkeller und noch weitere Extras nach Ihren Wünschen. Baubeginn und Fertigstellung nach Absprache.So funktioniert es
- Alle neuen Anzeigen matchen wir kostenlos mit Deinen Suchparametern.
- Passende Angebote senden wir Dir in einer E-Mail pro Tag.
- Du kannst auch verschiedene Suchen anlegen und Dich jederzeit abmelden. Mehr dazu




