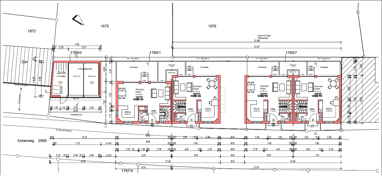
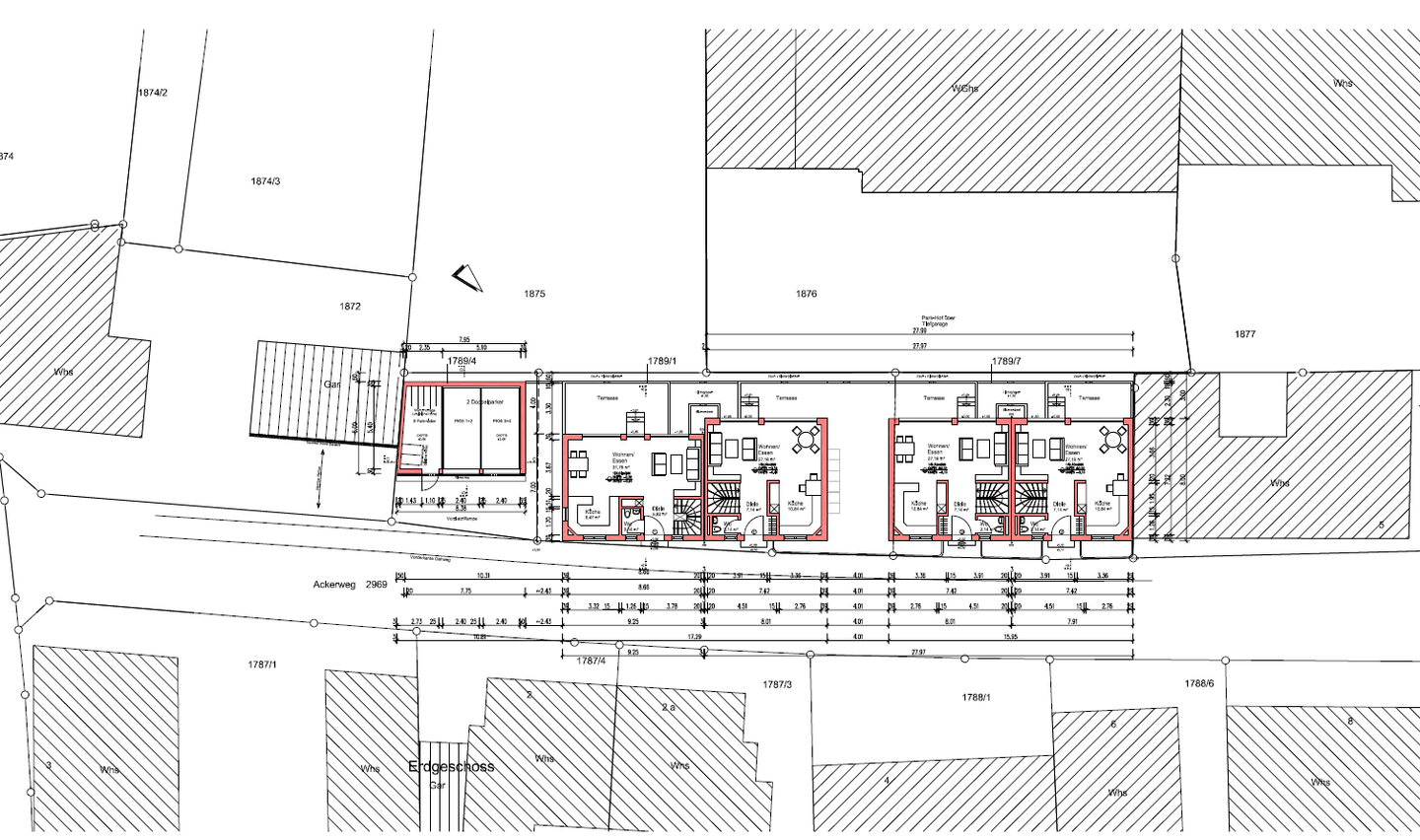
Bauplatz mit Baugenehmigung für 4 exklusive Doppelhaushälften in Baden-Baden – 590 m

Kaufpreis 380.000 €
Zimmer 1
76532 Baden-Baden

Objektdaten

Veröffentlicht am: 29. März 2026
Frei ab: 26. März 2026
  • Objektbeschreibung

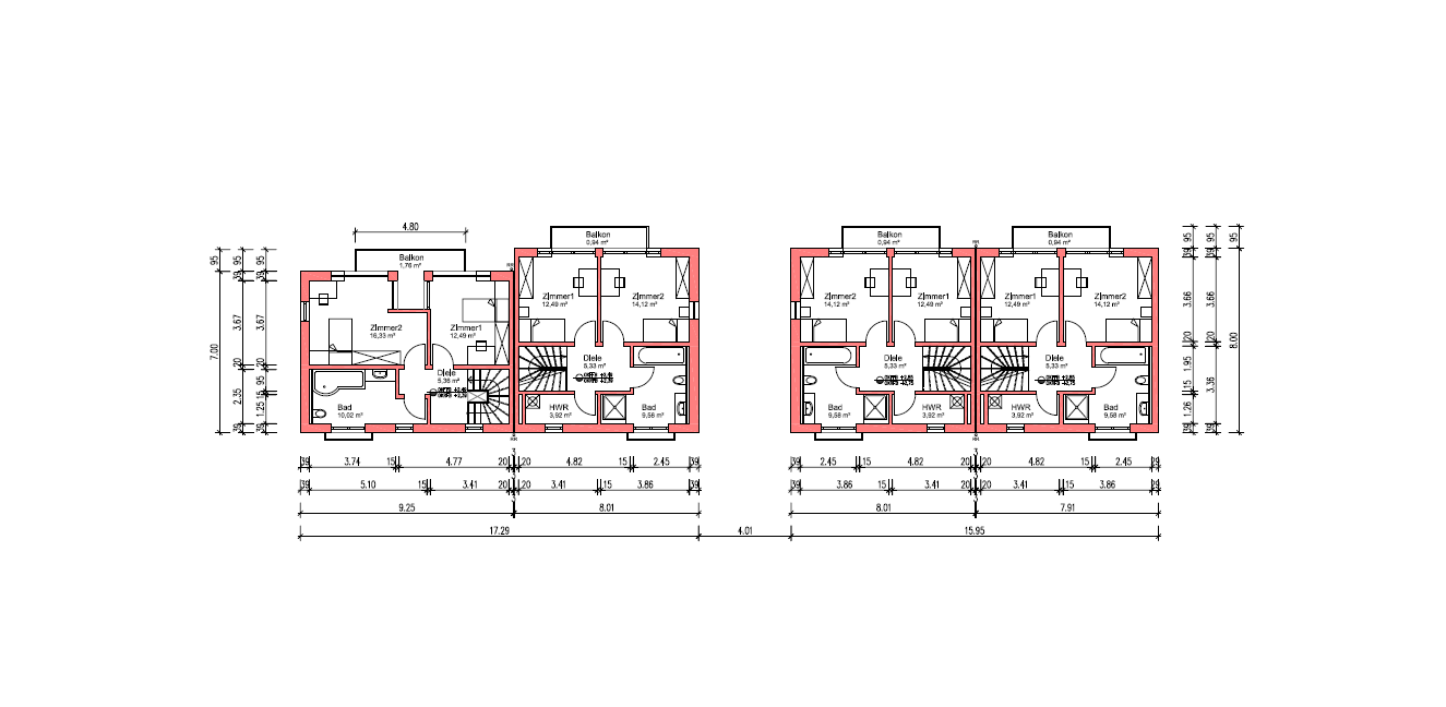
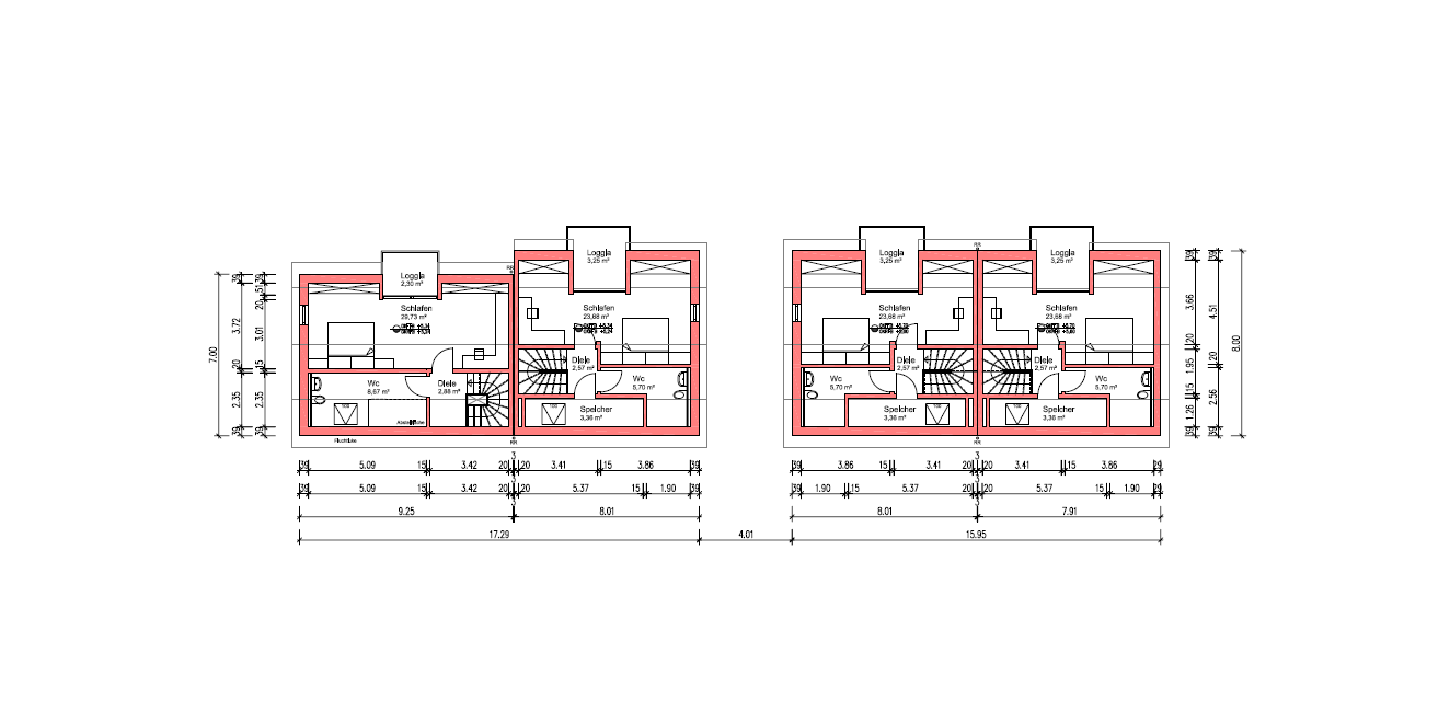
    Objektbeschreibung: Entdecken Sie diese einmalige Gelegenheit in der begehrten Weststadt von Baden-Baden: Ein 590 m² großes Grundstück mit bereits erteilter Baugenehmigung für vier moderne Doppelhaushälften. Jede Einheit bietet ca. 150 m² Wohnfläche, ist voll unterkellert und überzeugt durch durchdachtes Design sowie hochwertige Ausstattung. Highlights der Häuser: Duplex-Garage für komfortables Parken Balkon und Dachterrasse für sonnige Stunden Offene, helle Wohnräume Modernes Raumkonzept für Familie und Homeoffice
    Nach oben scrollen