Kaufpreis 310.000 €
91207 Lauf a.d. Pegnitz
Objektdaten
Veröffentlicht am: 30. März 2026
Frei ab: 26. April 2026
Danke! Bitte bestätige Deine E-Mail-Adresse – wir haben Dir soeben eine Mail geschickt.
Es gab ein Problem beim Absenden. Bitte versuche es erneut.
Bitte bestätige Deine E-Mail-Adresse, um Updates zu erhalten.
Objektbeschreibung
Kurzbeschreibung
Bauherren, Familien leben am Land!
Objekt
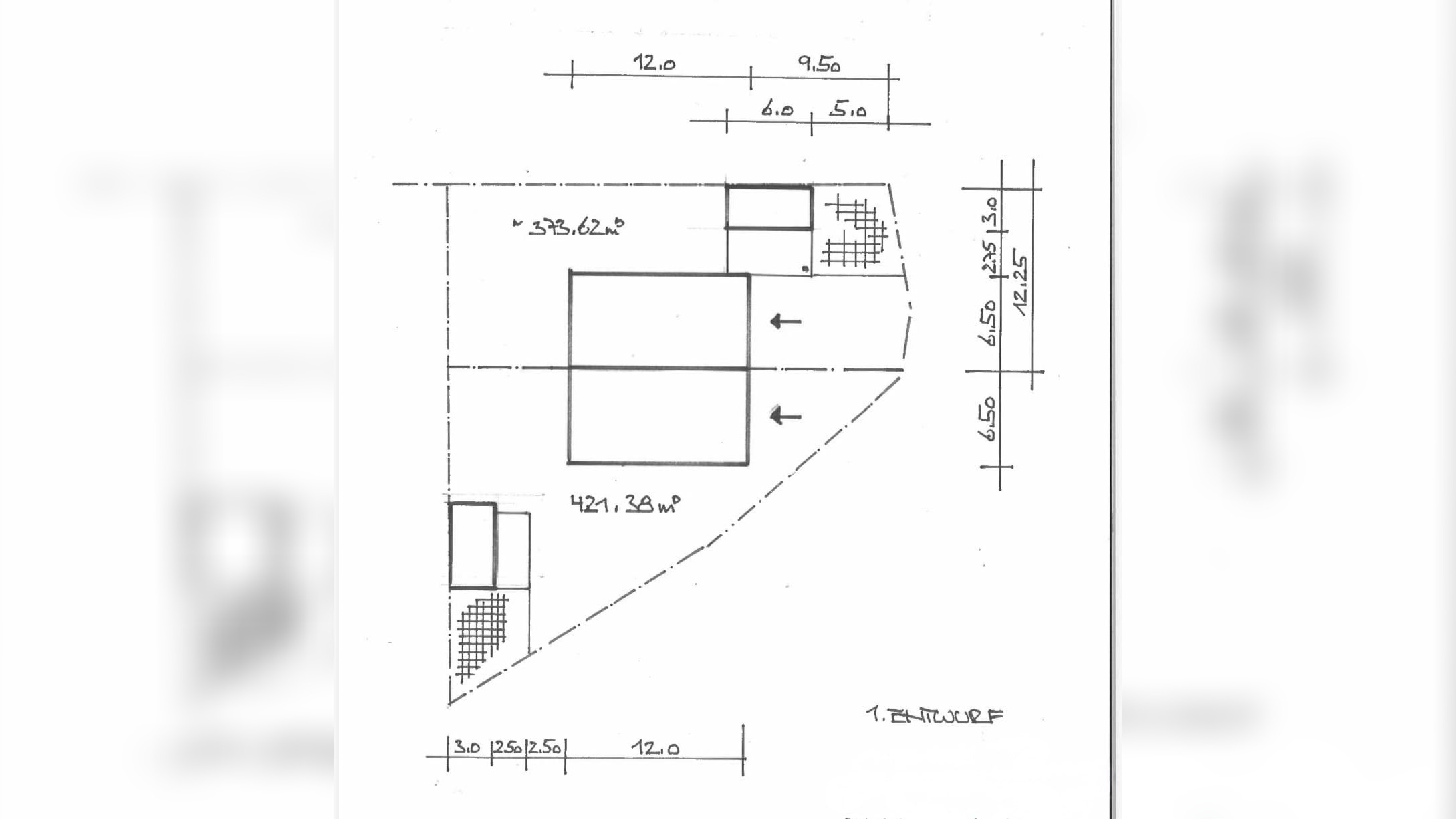
Hier kann man eine Menge daraus machen!Dieses attraktive, ca. 795 m² große Eckgrundstück überzeugt durch seine ausgezeichnete Lage im beliebten Stadtteil Kuhnhof von Lauf a.d. Pegnitz. Das sonnige Grundstück liegt in einem gewachsenen Wohngebiet, das durch Einfamilienhäuser, Doppel- und Reihenhäuser geprägt ist - ein ideales Umfeld für Familien, Bauherren oder Bauträger.Dank der Ecklage und mehreren Zugangsmöglichkeiten bietet das Grundstück eine besonders flexible Aufteilung und vielseitige Nutzungsmöglichkeiten. Ob großzügiges Einfamilienhaus, Mehrgenerationenlösung oder clevere Projektierung für Bauträger - hier eröffnen sich Ihnen zahlreiche Optionen. Die vollständige Erschließung des Grundstücks gewährleistet, dass alle notwendigen Infrastrukturen wie Wasser, Strom und Abwasser bereits vorhanden sind, was den Bauprozess erheblich erleichtert. Das Grundstück befindet sich im Geltungsbereich des § 34 BauGB (Nachbarschaftsbebauung). Die endgültige und verbindliche Bebaubarkeit ist mit dem Stadtplanungsamt Lauf a.d. Pegnitz abzustimmen.Da das Grundstück frei von jeglichen Bindungen ist, können Sie es sofort beziehen und mit der Planung Ihres neuen Zuhauses beginnen. Diese einzigartige Gelegenheit, in einem schönen und familienfreundlichen Umfeld zu bauen und zu wohnen, sollten Sie nicht verpassen.Genießen Sie die ruhige, sonnige Lage und die gleichzeitig hervorragende Anbindung an die Infrastruktur von Lauf. Schulen, Kindergärten, Einkaufsmöglichkeiten sowie Freizeitangebote befinden sich in unmittelbarer Nähe.Fazit:Ein sonniges Grundstück in gefragter Wohnlage, das viel Raum für Ihre Ideen bietet. Alles beginnt mit Ihrer Vorstellung und Ihren Wünschen - hier können Sie Ihre Wohnträume verwirklichen!
So funktioniert es
- Alle neuen Anzeigen matchen wir kostenlos mit Deinen Suchparametern.
- Passende Angebote senden wir Dir in einer E-Mail pro Tag.
- Du kannst auch verschiedene Suchen anlegen und Dich jederzeit abmelden. Mehr dazu
Wir haben soeben eine E-Mail mit Deinem Suchauftrag an Dich geschickt. – Klicke in dieser Mail auf den Bestätigungslink und schon geht's los. Prüfe ggf. auch Deinen Spamordner.
Es gab ein Problem beim Absenden Deiner E-Mail-Adresse. Bitte versuche es erneut.
WARNUNG: Bitte bestätige Deine E-Mail-Adresse, um regelmäßige Updates zu erhalten.