Objektdaten
Objektbeschreibung
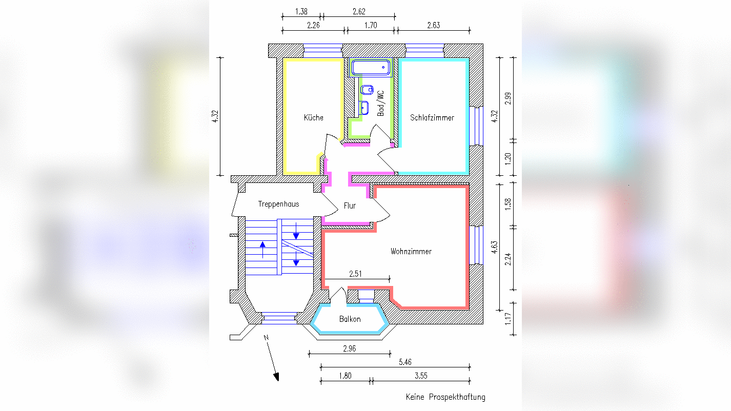
* sofort bezugsfertigAlle Bilder sind Originalbilder aus der angebotenen Wohnung!Die angebotene Wohnung mieten Sie direkt vom Eigentümer mit Sitz in Chemnitz an.Sie haben Interesse? Dann nehmen Sie Kontakt mit uns auf und vereinbaren Sie Ihren ganz individuellen Besichtigungstermin! Unser freundliches Wohnberaterteam steht Ihnen gern telefonisch unter der 0371 4502-160 zur Verfügung.Ähnliche Angebote
So funktioniert es
- Alle neuen Anzeigen matchen wir kostenlos mit Deinen Suchparametern.
- Passende Angebote senden wir Dir in einer E-Mail pro Tag.
- Du kannst auch verschiedene Suchen anlegen und Dich jederzeit abmelden. Mehr dazu





