Kaufpreis 113.750 €
21481 Lauenburg/Elbe
Objektdaten
Veröffentlicht am: 30. März 2026
Danke! Bitte bestätige Deine E-Mail-Adresse – wir haben Dir soeben eine Mail geschickt.
Es gab ein Problem beim Absenden. Bitte versuche es erneut.
Bitte bestätige Deine E-Mail-Adresse, um Updates zu erhalten.
Objektbeschreibung
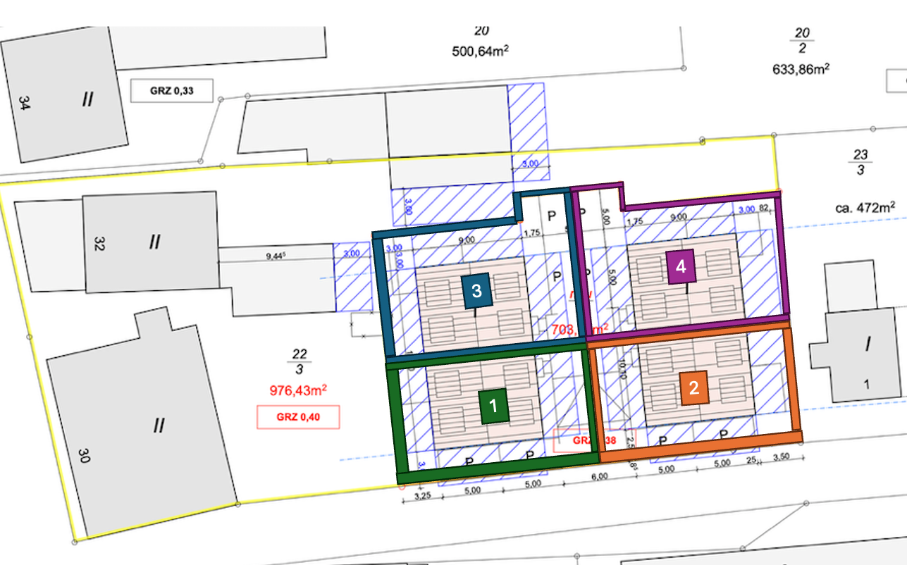
Grundstük 1, Verkaufspreis 113.750 €
Grundstük 2, Verkaufspreis 113.750 €
Grundstük 3, Verkaufspreis 113.750 €
Grundstük 4, Verkaufspreis 113.750€
Das Grundstück befindet sich in einer ruhigen und gewachsenen Wohnlage von Lauenburg/Elbe. Die Umgebung ist geprägt von einer harmonischen Bebauung aus Einfamilienhäusern, Doppelhäusern und Reihenhäusern, was eine hohe Wohnqualität und stabile Nachfrage garantiert. Für das Grundstück liegt bereits ein positiver Bauvorbescheid vor. Dieser ermöglicht die Bebauung mit zwei modernen Doppelhäusern (insgesamt 4 Wohneinheiten). Die geplante Bebauung kann alternativ auch als zeitgemäße Stadthäuser realisiert werden und bietet somit sowohl für Eigennutzer als auch für Kapitalanleger attraktive Möglichkeiten. Die Planung sieht eine Bebauung mit Erdgeschoss und Dachgeschoss vor. Die Ausgestaltung und Lage der Gebäude sind dem beigefügten Lageplan zu entnehmen. Bebauung & Potenzial Im Rahmen der Projektierung wurden auf einer Teilfläche von ca. 703 m² zwei moderne Doppelhäuser konzipiert. Wohnfläche je Einheit: ca. 135 m² GRZ: ca. 0,38 – 0,40 Bebauung durch Bauvorbescheid bestätigt Das Grundstück bietet somit ein attraktives Entwicklungspotenzial für Bauträger, Investoren oder private Bauherren. Auf Wunsch kann die Umsetzung des Bauvorhabens über einen erfahrenen Kooperationspartner (Baufirma) erfolgen. Gerne stellen wir den Kontakt her und begleiten Sie bei der weiteren Projektentwicklung. ?? Weitere Informationen Für weitere Unterlagen, Detailinformationen oder zur Vereinbarung eines Besichtigungstermins stehen wir Ihnen jederzeit gerne zur Verfügung: www.falkeimmobilien.de
So funktioniert es
- Alle neuen Anzeigen matchen wir kostenlos mit Deinen Suchparametern.
- Passende Angebote senden wir Dir in einer E-Mail pro Tag.
- Du kannst auch verschiedene Suchen anlegen und Dich jederzeit abmelden. Mehr dazu
Wir haben soeben eine E-Mail mit Deinem Suchauftrag an Dich geschickt. – Klicke in dieser Mail auf den Bestätigungslink und schon geht's los. Prüfe ggf. auch Deinen Spamordner.
Es gab ein Problem beim Absenden Deiner E-Mail-Adresse. Bitte versuche es erneut.
WARNUNG: Bitte bestätige Deine E-Mail-Adresse, um regelmäßige Updates zu erhalten.