Objektdaten
Objektbeschreibung
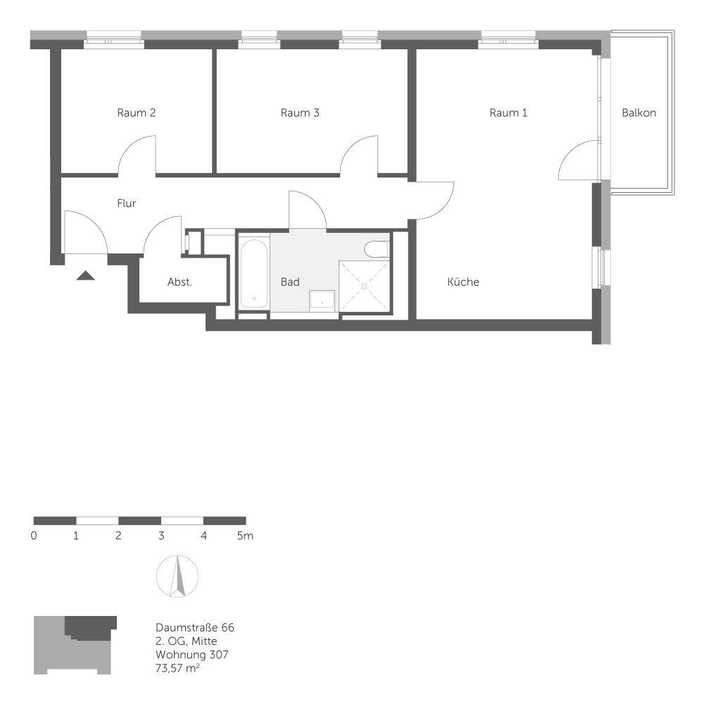
Die gut geschnittene Neubauwohnung befindet sich in neuer und gepflegter Wohnanlage. Der offen gehaltene Wohn- und Küchenbereich lässt vielfältige Gestaltungsmöglichkeiten zu. Alle Wohnungen verfügen über zentrale Warmwasserversorgung (ggf. mit einem Elektro-Durchlauferhitzer in der Küche), Fußbodenheizung, hochwertigen Bodenbelag und Dusch- und/oder Wannenbad. Der Balkon bietet einen schönen Blick in den begrünten Innenhof. Für die Anmietung ist ein Wohnberechtigungsschein 220, 180 oder 160 erforderlich. Sie sind an einer Besichtigung interessiert? Dann senden Sie uns bitte eine einfache Anfrage über den entsprechenden Button ("Anbieter kontaktieren" oder "Anfrage senden").Hinweis PreisangabenverordnungEs fallen zusätzliche Kosten neben dem Mietpreis an, da die Wohnung wie folgt ausgestattet ist: Warmwasserversorgung dezentral - DurchlauferhitzerÄhnliche Angebote
So funktioniert es
- Alle neuen Anzeigen matchen wir kostenlos mit Deinen Suchparametern.
- Passende Angebote senden wir Dir in einer E-Mail pro Tag.
- Du kannst auch verschiedene Suchen anlegen und Dich jederzeit abmelden. Mehr dazu





