Kaufpreis 460.000 €
Zimmer 4
Größe 130 m²
04275 Leipzig
Objektdaten
Veröffentlicht am: 30. März 2026
Energieausweis: Liegt bei der Besichtigung vor
Danke! Bitte bestätige Deine E-Mail-Adresse – wir haben Dir soeben eine Mail geschickt.
Es gab ein Problem beim Absenden. Bitte versuche es erneut.
Bitte bestätige Deine E-Mail-Adresse, um Updates zu erhalten.
Objektbeschreibung
Kurzbeschreibung
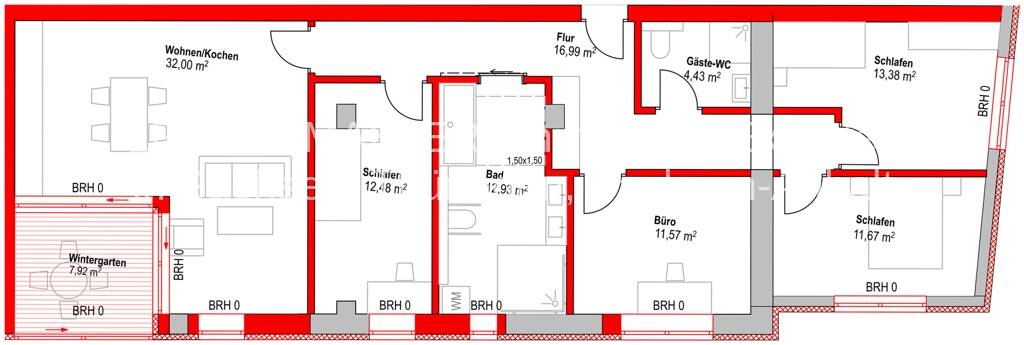
4-Raum-Maisonettewohnung im Dachgeschoß, nah beim Fockeberg
Objekt
Mitten im Herzen der Südvorstadt befindet sich dieses stilvoll und komplett sanierte Mehrfamilienhaus. Das Ensemble besteht aus Vorder- und Hinterhaus. Mit dem modernen Glas-Außen-Aufzug gelangt man zu dieser hellen, freundlichen 4-Raum-Wohnung im Dachgeschoß dieses unglaublich angenehmen Hauses aus der Jugendstilzeit, welches natürlich über die Denkmaleigenschaft verfügt und in den Jahren 1998/1999 ausgesprochen liebevoll und mit viel Gefühl saniert wurde.Unter dem begrünten Innenhof zwischen den beiden Gebäuden ist eine Tiefgarage versteckt. Die schicke Wohnung verfügt über viel Platz und einen ausgefallenen - offenen - Grundriss, welcher sich auf zwei Etagen verteilt.Ein Bad mit Eckwanne/Dusche/Toilette im unteren Wohnbereich, sowie ein Gästebad mit Dusche/Toilette im oberen Wohnbereich, bieten vollen Wohnkomfort. Die große Terrasse, welche man der Wohnküche aus erreicht, ist nord-westlich ausgerichtet und bekommt somit die angenehme Spätnachmittag-/ Abendsonne zu spüren. Die vorhandene Einbauküche steht zur Nutzung zur Verfügung.Instandhaltungsrücklage ist gebildet und vorhanden.Seit April 2014 ist diese Wohnung an zuverlässige Mieter vermietet. Die aktuelle Mieteinnahme beträgt 810,00 € Grundmiete zzgl. 280,00 € BkVZ, die Mieteinnahme für den Tiefgaragen-Stellplatz beträgt monatlich 40,00 €.Wir bitten um Ihr Verständnis, dass an dieser Stelle keine aktuellen Fotos der bewohnten Wohnung eingestellt werden, dies entfällt aus Rücksichtnahme auf die Privatsphäre der Bewohner. Die hier veröffentlichen Fotos wurden vor Beginn des aktuellen Mietverhältnisses angefertigt.
So funktioniert es
- Alle neuen Anzeigen matchen wir kostenlos mit Deinen Suchparametern.
- Passende Angebote senden wir Dir in einer E-Mail pro Tag.
- Du kannst auch verschiedene Suchen anlegen und Dich jederzeit abmelden. Mehr dazu
Wir haben soeben eine E-Mail mit Deinem Suchauftrag an Dich geschickt. – Klicke in dieser Mail auf den Bestätigungslink und schon geht's los. Prüfe ggf. auch Deinen Spamordner.
Es gab ein Problem beim Absenden Deiner E-Mail-Adresse. Bitte versuche es erneut.
WARNUNG: Bitte bestätige Deine E-Mail-Adresse, um regelmäßige Updates zu erhalten.