Objektdaten
Objektbeschreibung
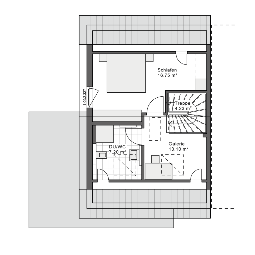
FEELS LIKE HOME. LOOKS LIKE YOU. Dein neues Zuhause in Ottobrunn ist mehr als nur ein Haus - es ist das Fundament für deine Zukunft. 141 m² pure Lebensqualität warten darauf, von dir gestaltet zu werden. Das durchdachte Konzept des Dreispänners verbindet moderne Architektur mit einem heimeligen Gefühl. Es ist Zeit, den nächsten Schritt zu gehen und dir den Freiraum zu schaffen, den du verdienst. Kein Stress, kein Umweg - nur du und dein neues Heim. Mach aus deiner Miete Wohneigentum und genieße die Sicherheit deiner eigenen vier Wände. YOU CAN OWN IT.Ähnliche Angebote
So funktioniert es
- Alle neuen Anzeigen matchen wir kostenlos mit Deinen Suchparametern.
- Passende Angebote senden wir Dir in einer E-Mail pro Tag.
- Du kannst auch verschiedene Suchen anlegen und Dich jederzeit abmelden. Mehr dazu




