Kaufpreis 320.647 €
Zimmer 3
Größe 76 m²
94060 Pocking
Objektdaten
Veröffentlicht am: 1. April 2026
Energieausweis: Liegt bei der Besichtigung vor
Danke! Bitte bestätige Deine E-Mail-Adresse – wir haben Dir soeben eine Mail geschickt.
Es gab ein Problem beim Absenden. Bitte versuche es erneut.
Bitte bestätige Deine E-Mail-Adresse, um Updates zu erhalten.
Objektbeschreibung
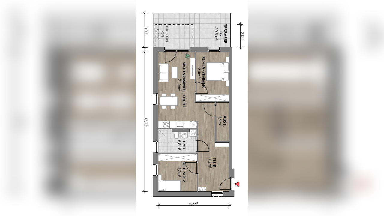
Ideale Lage - ideale Wohnung: Barrierefreie & provisionsfreie 3-Zimmer-Wohnung (1. OG) im Seniorenwohnen in Hartkirchen!Es entstehen 16 seniorengerechte Wohnung und eine Zahnarztpraxis.- Baujahr: Fertigstellung voraussichtlich Oktober 2026 (Baubeginn erfolgt in Kürze)- Wohnung Nr. 4 (Wohnhaus 1/Typ A)- Wohnfläche: ca. 76,71 m² - Wohnfläche/Nutzfläche: ca. 81,60 m² (inkl. Kellerabteil)- Aufteilung: Diele, Wohnzimmer/Küche, 2 Schlafzimmer, Abstellraum, Badezimmer- Terrasse- Kellerraum: Nr.: 4- zzgl. Garage (pro Garage 25.000,00 € zum Kaufpreis)Bauausführung (Barrierefreies Bauen nach DIN 18040-2):- Barrierefreie Nassräume- Bodenebener Duschbereich- Aufzüge in die einzelnen Geschosse- Hausnotruf- Rauchmeldeanlage- elektrische Rollläden- dezentrale Lüftungsanlage mit Wärmerückgewinnung - Fußbodenheizung- mineralische/ökologische Deckanstriche- hochwertige Holz/Alu-Fenster- provisionsfreiPflege- und Betreuungsangebot auf Wunsch möglich - diese Betreuung bietet Ihnen:- Rufbereitschaft rund um die Uhr- Hauswirtschaftliche Hilfe- Essen auf Rädern- Übernahme bei Einkaufsfahrten- Begleitung bei Arztfahrten- Pflege und Betreuung aufgrund der Leistungsansprüche nach SGB XI und SGB V- Es liegt noch kein Energieausweis vor, da sich das Gebäude noch im Rohbau befindet!
So funktioniert es
- Alle neuen Anzeigen matchen wir kostenlos mit Deinen Suchparametern.
- Passende Angebote senden wir Dir in einer E-Mail pro Tag.
- Du kannst auch verschiedene Suchen anlegen und Dich jederzeit abmelden. Mehr dazu
Wir haben soeben eine E-Mail mit Deinem Suchauftrag an Dich geschickt. – Klicke in dieser Mail auf den Bestätigungslink und schon geht's los. Prüfe ggf. auch Deinen Spamordner.
Es gab ein Problem beim Absenden Deiner E-Mail-Adresse. Bitte versuche es erneut.
WARNUNG: Bitte bestätige Deine E-Mail-Adresse, um regelmäßige Updates zu erhalten.