Objektdaten
Objektbeschreibung
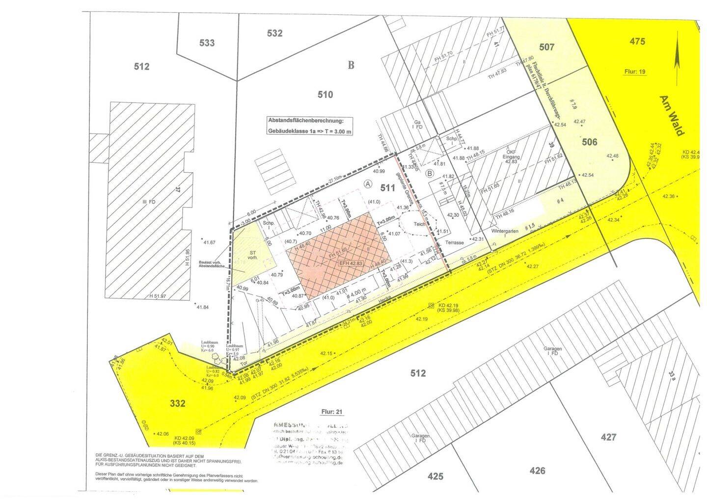
Dieses Grundstück bietet ideale Voraussetzungen für die Realisierung eines modernen Ein- bzw. Mehrgenerationen-Hauses. Mit einer Fläche von 384 m² befindet sich das Baugrundstück in einer ruhigen, verkehrsgünstigen Wohnlage in Düsseldorf-Benrath und es liegt bereits eine Baugenehmigung vor. Die Bebaubarkeit umfasst genehmigtesWeitere Informationen zur Beschreibung finden Sie unter www.rayak.de.Ähnliche Angebote
So funktioniert es
- Alle neuen Anzeigen matchen wir kostenlos mit Deinen Suchparametern.
- Passende Angebote senden wir Dir in einer E-Mail pro Tag.
- Du kannst auch verschiedene Suchen anlegen und Dich jederzeit abmelden. Mehr dazu




