Kaufpreis 487.668 €
Zimmer 4
Größe 112 m²
32657 Lemgo
Objektdaten
Veröffentlicht am: 1. April 2026
Energieausweis: Liegt bei der Besichtigung vor
Danke! Bitte bestätige Deine E-Mail-Adresse – wir haben Dir soeben eine Mail geschickt.
Es gab ein Problem beim Absenden. Bitte versuche es erneut.
Bitte bestätige Deine E-Mail-Adresse, um Updates zu erhalten.
Objektbeschreibung
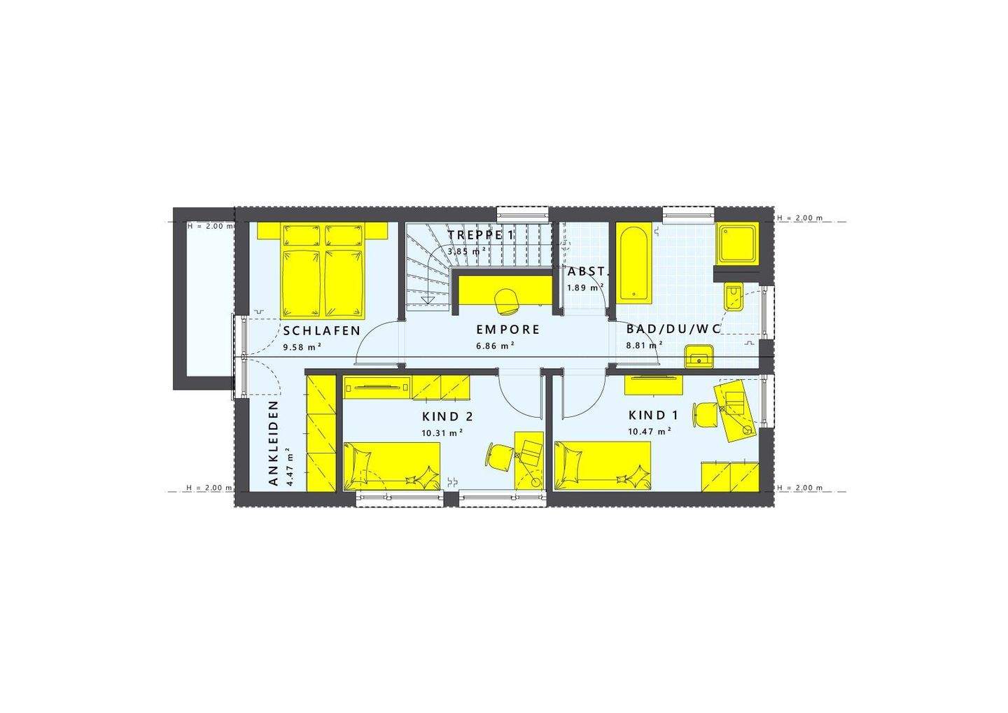
Dieses wunderschöne Einfamilienhaus in Lemgo wird ganz nach deinen Wünschen und Vorstellungen projektiert und bietet dir mit seinen 112 m² Wohnfläche auf zwei Etagen eine perfekte Kombination aus modernem Design und funktionalem Raumkonzept. Mit vier Zimmern, darunter drei einladende Schlafzimmer und zwei stilvolle Badezimmer, ist ausreichend Platz für die ganze Familie vorhanden. Der besondere Clou ist das Satteldach mit einem Kniestock von 2 Metern, das dir eine luftige Raumhöhe und ein tolles Wohngefühl bietet. Der großzügige Design-Dachüberstand verleiht dem Haus eine elegante Note, während der große Erker mit Flachdach einen lichtdurchfluteten und einladenden Wohnbereich schafft, der zum Verweilen einlädt.Living Haus bietet dir zahlreiche zusätzliche Leistungen, die dein Zuhause zu etwas ganz Besonderem machen. Mit der Traumküche von Living Haus erhältst du eine hochwertige Küche, die genau auf deinen Grundriss abgestimmt ist. Ausgestattet mit modernster Technik und cleveren Stauraumlösungen, wird sie rechtzeitig zum Einzug geliefert, sodass du sofort mit dem Kochen beginnen kannst.Das Living Haus Bau-Cockpit sorgt dafür, dass du immer den Überblick über dein Bauprojekt behältst. Die digitale Bau-App ermöglicht dir den Zugriff auf Zeitpläne und Dokumente, was den gesamten Prozess stressfrei gestaltet. Das I-KON-Intelligente Bauen kombiniert nachhaltiges Bauen mit modernster Technik, sodass dein Zuhause energieeffizient und umweltfreundlich ist. Mit dem I-KON Effizienzhaus 55 benötigst du nur 55 % der Energie eines Standardhauses, dank innovativer Dämmung und intelligenter Heiztechnik.Zur Finanzierung steht dir das Zuhause-Darlehen zur Verfügung, mit dem du bis zu 250.000 EUR zu einem besonders günstigen Zinssatz erhalten kannst. Das Zuhause-Paket beinhaltet eine hochwertige Grundausstattung mit modernen Böden, edlen Türen und stilvollen Sanitäranlagen, alles perfekt aufeinander abgestimmt und fix und fertig geliefert.Wenn du handwerklich begabt bist, bietet das DIY-Ausbau-Coaching die Möglichkeit, mit Experten zusammenzuarbeiten, die dir innerhalb von drei Tagen zeigen, wie du den Innenausbau selbst meisterst. So wird dein neues Zuhause nicht nur zu einem Ort des Wohnens, sondern auch zu einem Projekt, das du mit Herz und Hand gestalten kannst.
So funktioniert es
- Alle neuen Anzeigen matchen wir kostenlos mit Deinen Suchparametern.
- Passende Angebote senden wir Dir in einer E-Mail pro Tag.
- Du kannst auch verschiedene Suchen anlegen und Dich jederzeit abmelden. Mehr dazu
Wir haben soeben eine E-Mail mit Deinem Suchauftrag an Dich geschickt. – Klicke in dieser Mail auf den Bestätigungslink und schon geht's los. Prüfe ggf. auch Deinen Spamordner.
Es gab ein Problem beim Absenden Deiner E-Mail-Adresse. Bitte versuche es erneut.
WARNUNG: Bitte bestätige Deine E-Mail-Adresse, um regelmäßige Updates zu erhalten.