Kaufpreis 592.200 €
Zimmer 4
Größe 124 m²
88138 Weißensberg
Objektdaten
Veröffentlicht am: 1. April 2026
Energieausweis: Liegt bei der Besichtigung vor
Danke! Bitte bestätige Deine E-Mail-Adresse – wir haben Dir soeben eine Mail geschickt.
Es gab ein Problem beim Absenden. Bitte versuche es erneut.
Bitte bestätige Deine E-Mail-Adresse, um Updates zu erhalten.
Objektbeschreibung
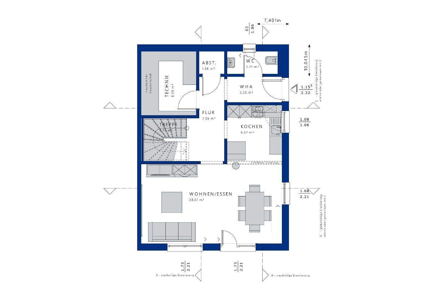
Das Bien-Zenker CELEBRATION 122 ist nicht nur ein Haus, sondern ein Raumwunder, das auf die persönlichen Wünsche und Vorstellungen seiner Bewohner abgestimmt wird. Mit einer großzügigen Wohnfläche von 172 m² und einer durchdachten Aufteilung auf zwei Etagen bietet dieses Fertighaus Platz für die ganze Familie. Im Erdgeschoss erwartet Sie ein offener Wohnbereich, der durch viel Licht und eine einladende Atmosphäre besticht. Hier können Sie unvergessliche Momente mit Ihren Liebsten verbringen. Im Obergeschoss befinden sich drei gemütliche Schlafzimmer, die Rückzugsmöglichkeiten bieten und für eine harmonische Privatsphäre sorgen. Das Badezimmer ist funktional und modern gestaltet, während die optionale Gestaltung eines dritten Geschosses Ihnen noch mehr Flexibilität und Raum für Ihre individuellen Ideen bietet.Ein weiteres Highlight des CELEBRATION 122 ist die einladende Terrasse, die den Wohnraum nach außen erweitert und Ihnen die Möglichkeit gibt, entspannte Sommertage im Freien zu genießen. Die durchdachte Bauweise sorgt zudem für lichtdurchflutete Räume, die eine angenehme Wohnatmosphäre schaffen. Ob für gesellige Abende oder ruhige Momente, dieses Haus passt sich perfekt an Ihre Lebensweise an. Die verschiedenen Dachformen und Architekturdetails verleihen dem Haus einen einzigartigen Charakter und machen es zu einem echten Hingucker in der Nachbarschaft.Die Ausbaustufe "Schlüsselfertig" garantiert Ihnen einen stressfreien Bauprozess. Bien-Zenker übernimmt für Sie den kompletten Hausbau samt Innenausbau - vom Fundament bis zur letzten Schraube. Sie müssen sich um nichts kümmern und können einfach einziehen, sobald alles fertig ist. Diese Rundum-Betreuung spart Ihnen Zeit und Nerven und lässt Sie die Vorfreude auf Ihr neues Zuhause in vollen Zügen genießen. Bei Bien-Zenker sind Sie in besten Händen, denn der Fokus liegt auf Ihrer Zufriedenheit und einem harmonischen Bauablauf.Grundrisse und Abbildungen können Extras zeigen. Flächenangaben nach DIN 277.
So funktioniert es
- Alle neuen Anzeigen matchen wir kostenlos mit Deinen Suchparametern.
- Passende Angebote senden wir Dir in einer E-Mail pro Tag.
- Du kannst auch verschiedene Suchen anlegen und Dich jederzeit abmelden. Mehr dazu
Wir haben soeben eine E-Mail mit Deinem Suchauftrag an Dich geschickt. – Klicke in dieser Mail auf den Bestätigungslink und schon geht's los. Prüfe ggf. auch Deinen Spamordner.
Es gab ein Problem beim Absenden Deiner E-Mail-Adresse. Bitte versuche es erneut.
WARNUNG: Bitte bestätige Deine E-Mail-Adresse, um regelmäßige Updates zu erhalten.