Kaufpreis 524.900 €
Zimmer 9
Größe 267 m²
84453 Mühldorf a. Inn
Objektdaten
Veröffentlicht am: 2. April 2026
Energieausweis: Liegt bei der Besichtigung vor
Danke! Bitte bestätige Deine E-Mail-Adresse – wir haben Dir soeben eine Mail geschickt.
Es gab ein Problem beim Absenden. Bitte versuche es erneut.
Bitte bestätige Deine E-Mail-Adresse, um Updates zu erhalten.
Objektbeschreibung
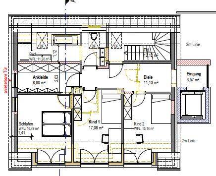
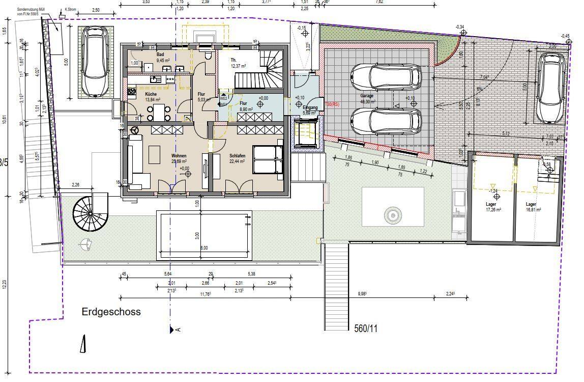
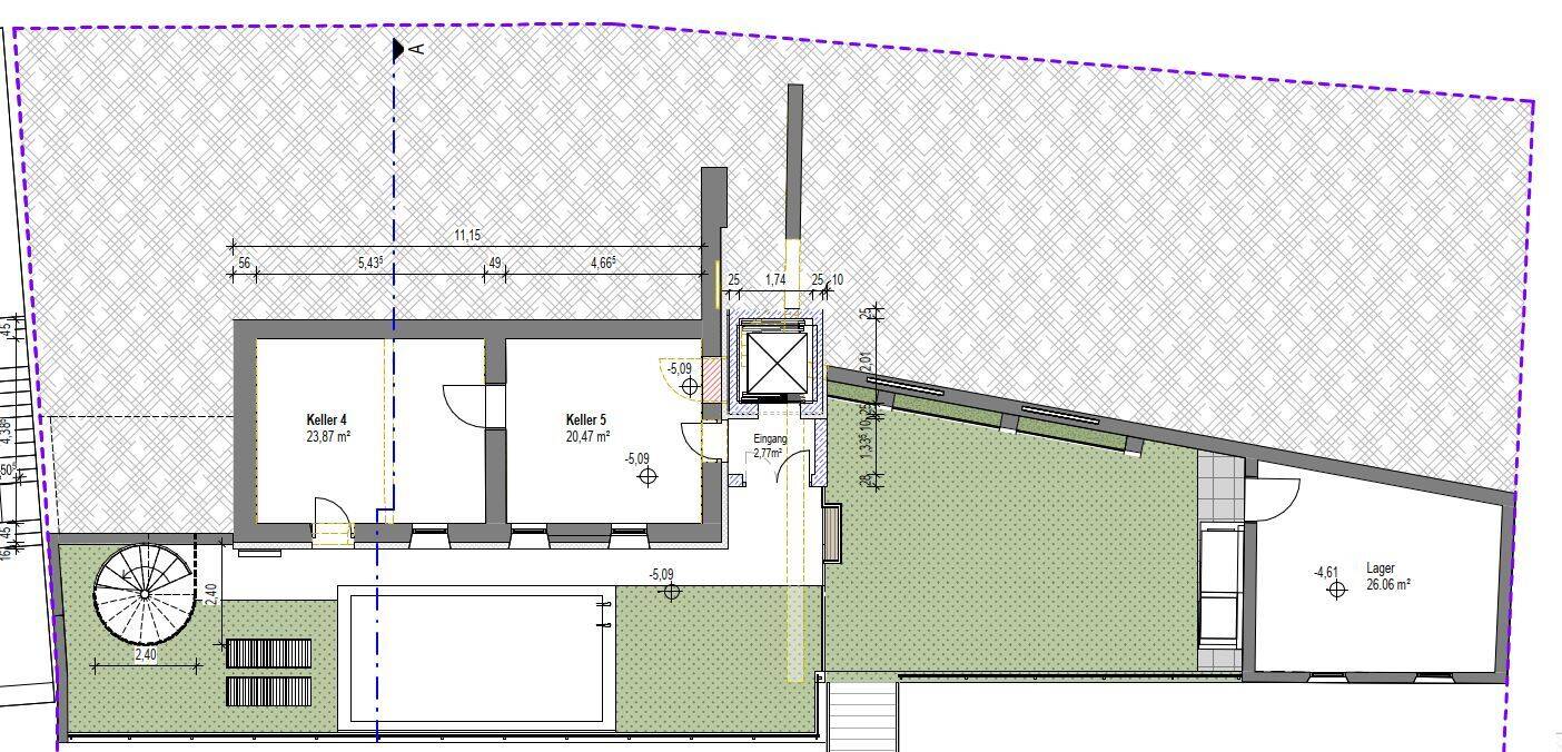
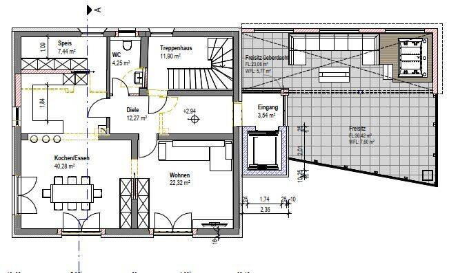
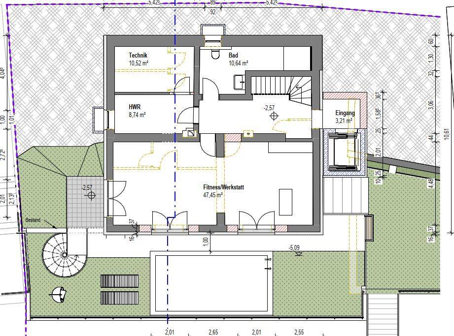
Die ehemalige Direktorenvilla eines Mühldorfer Industriebetriebs befindet sich auf einem weitläufigem Hanggrundstück mit ca. 850qm in einer begehrten Lage Mühldorfs. Von dort erhält man einen tollen Blick über das Altmühldorfer Tal, die Innschleife und die Alpen.Die Villa wurde im Jahre 2023 vollständig überplant. Die Eigentümer haben in diesem Zuge eine Baugenehmigung für einen Umbau in ein Zweifamilienhaus gemäß dem beiliegenden Grundriss erhalten. Nach dem Umbau, der durch die Erwerber erfolgt, verfügt das Objekt über eine Wohn- und Nutzfläche von 466qm sowie 4 (Garagen-) Stellplätze. Bei der genehmigten Planung wurde besonderer Wert auf großzügige Räumlichkeiten und hohen Wohnkomfort gelegt. So verfügt das Objekt beispielsweise über einen weitläufigen Wohn-/Ess-Bereich mit rd. 40qm und großzügige, teilweise überdachte Terrassen. Ferner wurde vom Eigentümer die Errichtung eines Swimmingpools und eines Aufzugs über alle Etagen eingeplant.Neben der Nutzung als Zweifamilienhaus wäre aufgrund von 5 tagesbelichteten Etagen auch eine Nutzungsänderung und Ausbau zu einem 3- oder u.U. 4-Familienhaus denkbar. Ein entsprechendes Vorhaben ist mit den zuständen Behörden abzustimmen.Das Objekt ist vollständig entkernt. Der Ausbau kann vom Erwerber kurzfristig gestartet werden.
So funktioniert es
- Alle neuen Anzeigen matchen wir kostenlos mit Deinen Suchparametern.
- Passende Angebote senden wir Dir in einer E-Mail pro Tag.
- Du kannst auch verschiedene Suchen anlegen und Dich jederzeit abmelden. Mehr dazu
Wir haben soeben eine E-Mail mit Deinem Suchauftrag an Dich geschickt. – Klicke in dieser Mail auf den Bestätigungslink und schon geht's los. Prüfe ggf. auch Deinen Spamordner.
Es gab ein Problem beim Absenden Deiner E-Mail-Adresse. Bitte versuche es erneut.
WARNUNG: Bitte bestätige Deine E-Mail-Adresse, um regelmäßige Updates zu erhalten.