Objektdaten
Objektbeschreibung
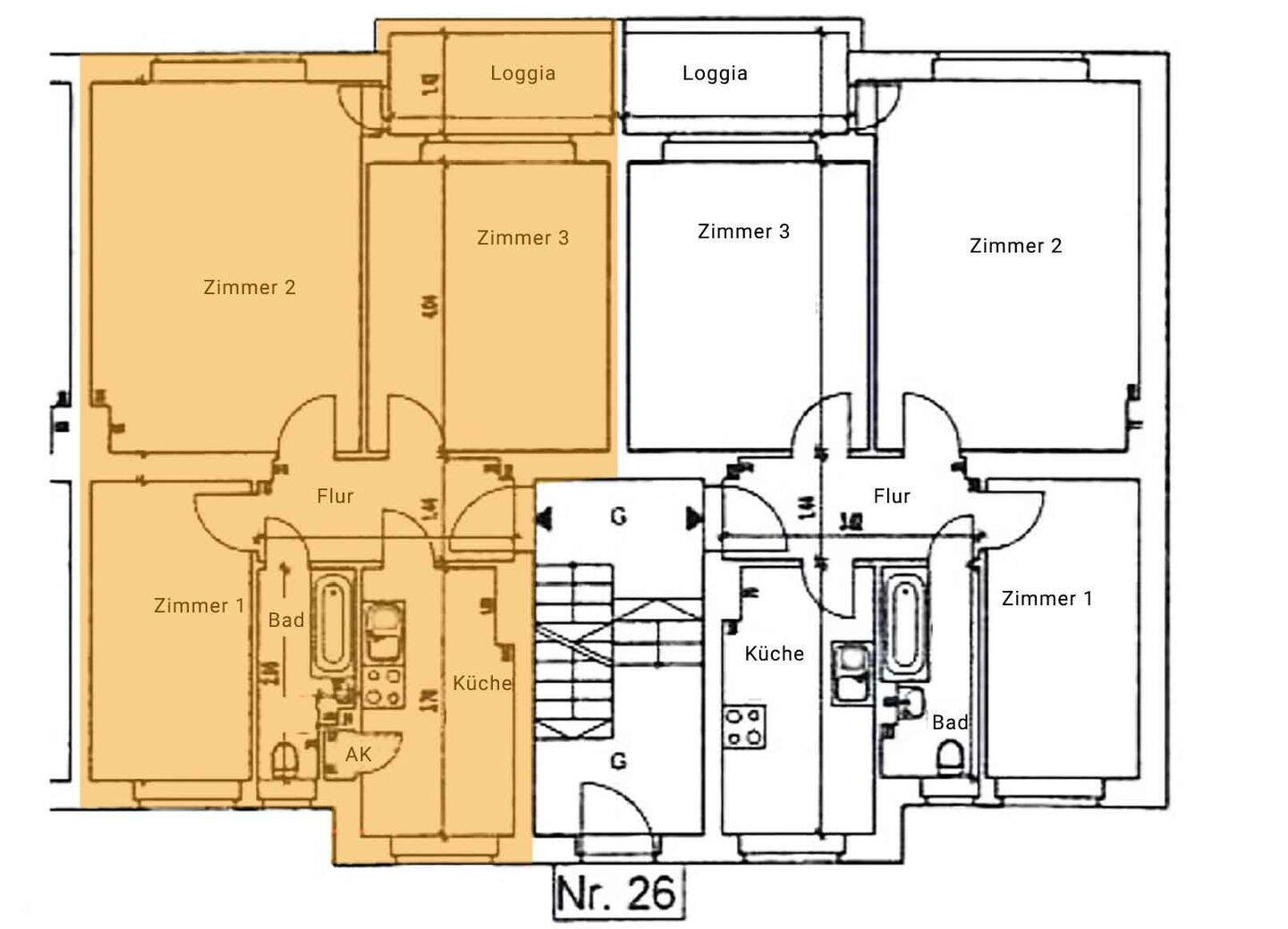
In der Kalischer Straße 26-34, einer ruhigen und von altem Baumbestand geprägten Seitenstraße, befindet sich dieses gepflegte, viergeschossige Mehrfamilienhaus aus dem Baujahr 1932. Die Liegenschaft überzeugt durch ihren soliden Erhaltungszustand sowie eine angenehme, grüne Wohnatmosphäre.Die angebotene Wohnung WE01 befindet sich im Hochparterre und verfügt über eine Wohnfläche von ca. 61 m², verteilt auf drei gut geschnittene Zimmer. Die klassische Raumaufteilung bietet vielseitige Nutzungsmöglichkeiten und eignet sich sowohl für Eigennutzer als auch für Kapitalanleger.Ein besonderes Highlight ist der vorhandene Balkon, der ebenso wie das Wohnzimmer einen ruhigen Blick in den begrünten Innenhof ermöglicht und somit eine angenehme Rückzugsmöglichkeit vom städtischen Alltag bietet.Die Wohnung weist Renovierungsbedarf auf und bietet dadurch die ideale Grundlage, um individuelle Wohnideen und moderne Ausstattungswünsche zu realisieren.Das Gebäude selbst präsentiert sich in einem gepflegten Gesamtzustand und fügt sich harmonisch in die gewachsene Nachbarschaft ein.Ähnliche Angebote
So funktioniert es
- Alle neuen Anzeigen matchen wir kostenlos mit Deinen Suchparametern.
- Passende Angebote senden wir Dir in einer E-Mail pro Tag.
- Du kannst auch verschiedene Suchen anlegen und Dich jederzeit abmelden. Mehr dazu




