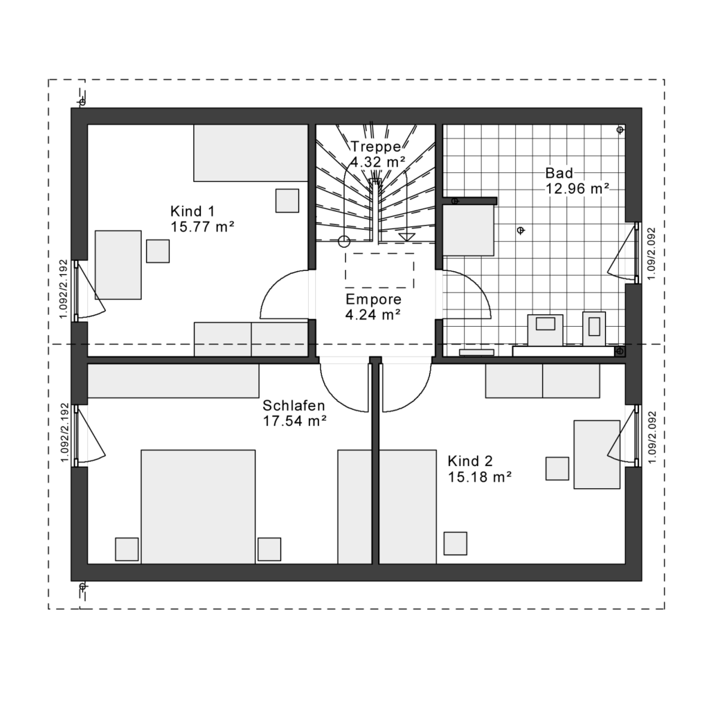
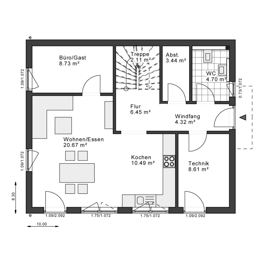
Objektdaten
Objektbeschreibung
Wir stellen den RohbauRohbau: Außenwände, Dach, Fenster und Türen sind bereits eingebaut.Alles andere machst Du!ElektroinstallationSanitär- und HeizungsinstallationTrockenbauBodenbeläge, Maler- und TapezierarbeitenFlexibilität:Du r entscheidest selbst über Tempo und Umfang der Arbeiten.? VorteileKostenersparnis durch EigenleistungIndividuelle Gestaltung des InnenbereichsErhöhung des Eigenkapitals, was bessere Finanzierungskonditionen ermöglichen kannLern- und Mitmach-Erfahrung für handwerklich InteressierteSo funktioniert es
- Alle neuen Anzeigen matchen wir kostenlos mit Deinen Suchparametern.
- Passende Angebote senden wir Dir in einer E-Mail pro Tag.
- Du kannst auch verschiedene Suchen anlegen und Dich jederzeit abmelden. Mehr dazu



