Objektdaten
Objektbeschreibung
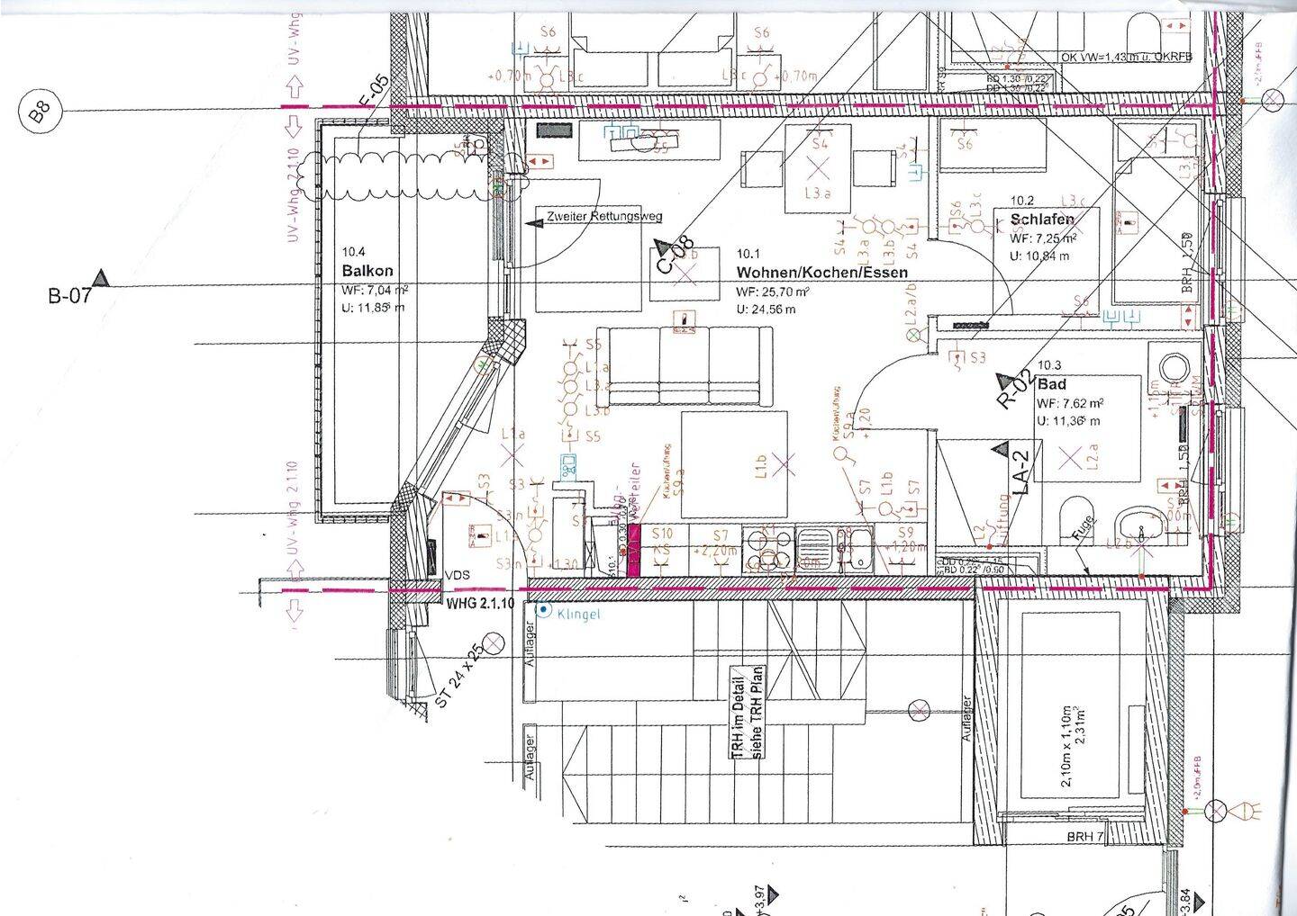
Die Wohnanlage zu der die Etagenwohnung gehört, liegt in zentraler Lage in Pfarrkirchen und ist in einem gepflegten Zustand. Die Wohnung teilt sich in Wohn-/Esszimmer, Küche, Schlafzimmer und Bad auf. Darüber hinaus verfügt die Wohnung über einen Balkon mit herrlichem Blick auf die südlich gelegenen Rottauen. Die Küche ist mit einer Einbauküche ausgestattet und verfügt zudem über ein eigenes Fenster. Für eine Waschmaschine ist Platz im Bad oder im Waschraum im Keller. Zur Wohnung gehört darüber hinaus ein ca. 7qm großes, abgetrenntes und abschließbares Kellerabteil, das viel Stauraum bietet. Ebenso ist ein zur Wohnung gehörender PKW-Stellplatz (in den Mietkosten enthalten) direkt vor dem Hauseingang vorhanden. Das Fahrrad kann im zentralen Fahrradkeller abgestellt werden. Die Wohnung kann nach Rücksprache mit dem derzeitigen Mieter jederzeit bezogen werden. Es fällt keine Maklercourtage an.So funktioniert es
- Alle neuen Anzeigen matchen wir kostenlos mit Deinen Suchparametern.
- Passende Angebote senden wir Dir in einer E-Mail pro Tag.
- Du kannst auch verschiedene Suchen anlegen und Dich jederzeit abmelden. Mehr dazu





