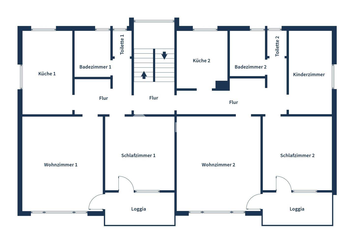
Solide vermietetes Mehrfamilienhaus mit 6 Wohneinheiten, Garten und Doppelgarage in ruhiger Hanglage

Kaufpreis 1.300.000 €
Zimmer 12
Größe 305 m²
72766 Reutlingen

Objektdaten

Veröffentlicht am: 4. April 2026
Baujahr: 1972
Energieausweis: Liegt bei der Besichtigung vor
Neu

Über ähnliche Angebote direkt informiert werden

  • Objektbeschreibung

    Ähnliche Angebote

    So funktioniert es

    • Alle neuen Anzeigen matchen wir kostenlos mit Deinen Suchparametern.
    • Passende Angebote senden wir Dir in einer E-Mail pro Tag.
    • Du kannst auch verschiedene Suchen anlegen und Dich jederzeit abmelden. Mehr dazu
    Nach oben scrollen