Objektdaten
Objektbeschreibung
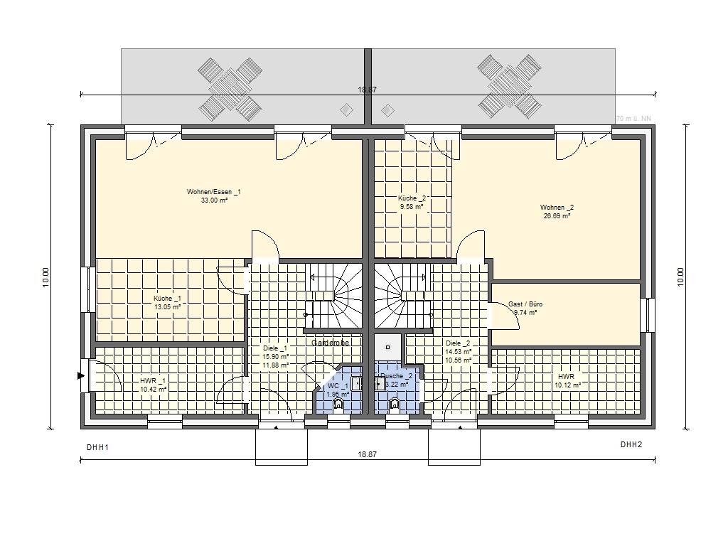
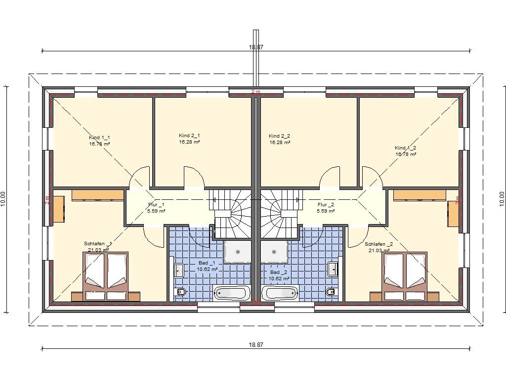
Attraktive Stadtvilla-Doppelhaushälfte in begehrter Lage im Hamburger Stadtteil Lemsahl-Mellingstedt. Hochwertige, massive Bauweise.Ähnliche Angebote
So funktioniert es
- Alle neuen Anzeigen matchen wir kostenlos mit Deinen Suchparametern.
- Passende Angebote senden wir Dir in einer E-Mail pro Tag.
- Du kannst auch verschiedene Suchen anlegen und Dich jederzeit abmelden. Mehr dazu




