Objektdaten
Objektbeschreibung
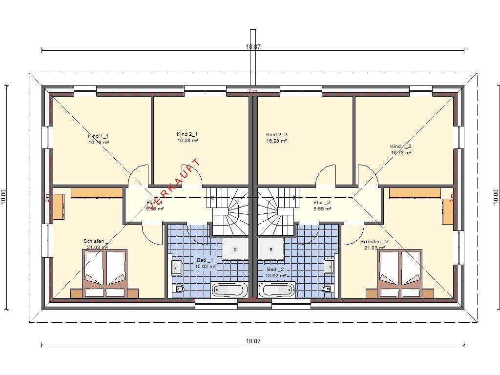
DAS DOPPELHAUSMassiv Stein auf SteinDas Doppelhaus ist für junge Familien eine sinnvolle Alternative zum klassischenEinfamilienhaus - besonders in Regionen mit steigenden Grundstückspreisen.Dank der zweischaligen Trennwand, die störende Geräusche zuverlässigschluckt, bieten unsere Doppelhäuser ein hohes Maß an Ruhe und Privatsphäre.Selbstverständlich kann jede Doppelhaushälfte individuell nach Ihren Wünschengeplant und gestaltet werden.Hinweis:Die Abbildungen können Sonderausstattungen enthalten.Ähnliche Angebote
So funktioniert es
- Alle neuen Anzeigen matchen wir kostenlos mit Deinen Suchparametern.
- Passende Angebote senden wir Dir in einer E-Mail pro Tag.
- Du kannst auch verschiedene Suchen anlegen und Dich jederzeit abmelden. Mehr dazu




