Kaufpreis 417.500 €
Zimmer 3
Größe 65 m²
91785 Pleinfeld
Objektdaten
Veröffentlicht am: 5. April 2026
Baujahr: 2024
Energieausweis: Liegt bei der Besichtigung vor
Danke! Bitte bestätige Deine E-Mail-Adresse – wir haben Dir soeben eine Mail geschickt.
Es gab ein Problem beim Absenden. Bitte versuche es erneut.
Bitte bestätige Deine E-Mail-Adresse, um Updates zu erhalten.
Objektbeschreibung
Objektbeschreibung
Im Ortskern von Ramsberg, nur 300m vom See entfernt, wird auf dem Grundstück eines ehemaligen, landwirtschaftlichen Anwesens ein klimafreundlicher Neubau EH40 mit fünf ansprechenden Eigentumswohnungen errichtet. Die Wohnung wird für junge Familien mit dem KfW-Förderprogramm 300 und für alle anderen mit dem KfW Förderprogramm 298 unterstützt. Dies bedeutet dass zinsvergünstigte Darlehen zu vergünstigten Konditionen möglich sind. Vermieter profitieren zusätzlich von verbesserten Abschreibungsmöglichkeiten nach §7 Abs. 5a EStGDas Gebäude bietet Wohnraum auf drei Ebenen. Die Wohnungen verfügen entweder über eine Terrasse inkl. privatem Gartenanteil oder über einen sonnigen Balkon. Durch die hochwertige energetische Bauweise, die Beheizung über eine Luft-Wasser-Wärmepumpe in Verbindung mit einem ausgereiftem sommerlichen Wärmeschutz und einer dezentralen Be- und Entlüftung profitieren Sie nicht nur von niedrigen Energiekosten sondern auch von höchstem Komfort. Eingebettet in das Feriengebiet „Fränkisches Seenland“, in ruhiger aber dennoch zentraler Lage, bietet diese Wohnanlage einzigartige Lebens- und Wohnqualität. Die Wohnungen sind sowohl für den Eigennutzen als auch zur langfristigen Vermietung bestens geeignet.
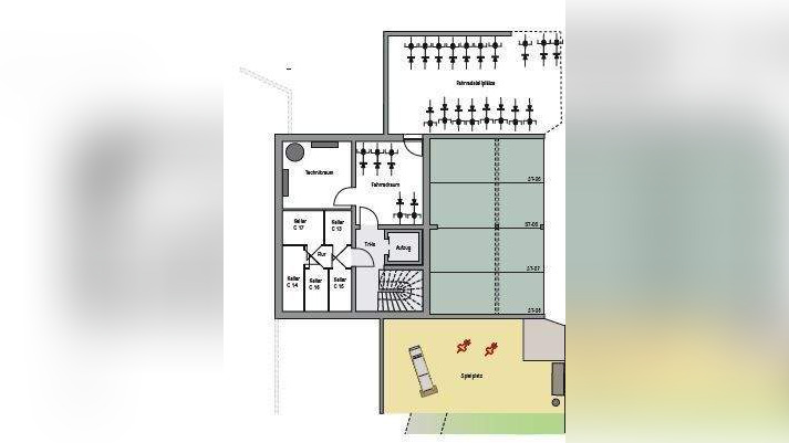
Raumaufteilung
Bei der hier angebotenen Wohnung C-14 handelt es sich um eine schön geschnittene 3-Zimmer-Erdgeschosswohnung in Hanglage. Im Eingangsbereich befindet sich der kleine Flur in dem Garderobe und Schuhwerk gut aufgeräumt sind. Rechter Hand gelangt man direkt in den hellen Wohnraum der mit kuscheliger Sofa- und Fernsehecke, Essbereich und einer Einbauküche ausgestattet werden kann. Durch die doppelflügligen Fenstertüren gelangt man auf den großzügigen Balkon wo man selbst an heißen Tagen, die Möglichkeit hat bei einem Glas Wein den Sonnenuntergang zu genießen. Im Schlafzimmer ist genügend Platz für ein großes Doppelbett und eine Schrankwand. Der zweite Schlafraum mit Zugang auf den Balkon, ist individuell als Kinder- oder Gästezimmer oder einfach als Homeoffice nutzbar. Für genügend Stauraum sorgt in der Wohnung der Abstellraum und im Untergeschoss das Kellerabteil, welches Sie ganz bequem mit dem Aufzug erreichen.Das gut durchdachte Badezimmer ist mit fast bodengleicher Duschwanne, Echtglasduschabtrennung und hochwertiger Sanitärkeramik ausgestattet. Ein Waschmaschinenanschluss bietet zusätzlichen Komfort.
So funktioniert es
- Alle neuen Anzeigen matchen wir kostenlos mit Deinen Suchparametern.
- Passende Angebote senden wir Dir in einer E-Mail pro Tag.
- Du kannst auch verschiedene Suchen anlegen und Dich jederzeit abmelden. Mehr dazu
Wir haben soeben eine E-Mail mit Deinem Suchauftrag an Dich geschickt. – Klicke in dieser Mail auf den Bestätigungslink und schon geht's los. Prüfe ggf. auch Deinen Spamordner.
Es gab ein Problem beim Absenden Deiner E-Mail-Adresse. Bitte versuche es erneut.
WARNUNG: Bitte bestätige Deine E-Mail-Adresse, um regelmäßige Updates zu erhalten.