Kaufpreis 329.000 €
Zimmer 2
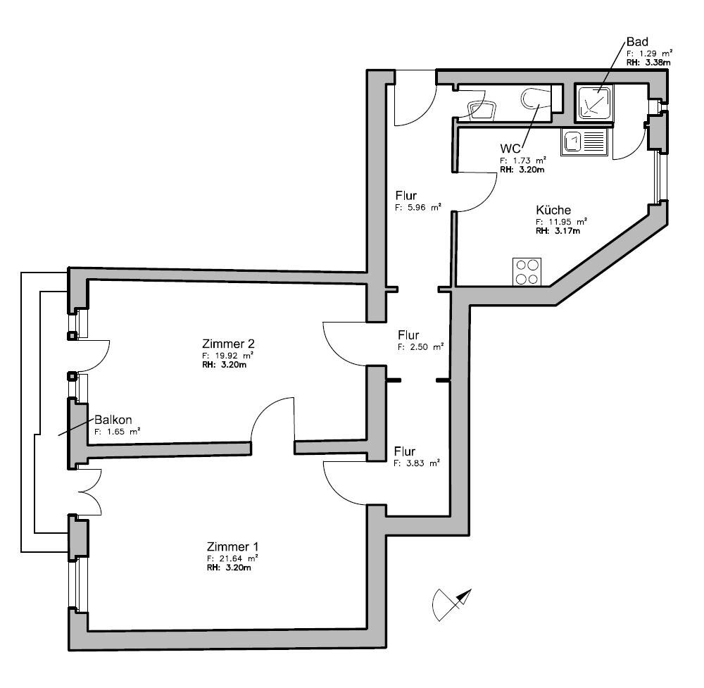
Größe 70 m²
13409 Berlin
Objektdaten
Veröffentlicht am: 5. April 2026
Baujahr: 1998
Energieausweis: Liegt bei der Besichtigung vor
Danke! Bitte bestätige Deine E-Mail-Adresse – wir haben Dir soeben eine Mail geschickt.
Es gab ein Problem beim Absenden. Bitte versuche es erneut.
Bitte bestätige Deine E-Mail-Adresse, um Updates zu erhalten.
Objektbeschreibung
Im dritten Obergeschoss eines gepflegten Mehrfamilienhauses empfängt Sie diese lichtdurchflutete 2-Zimmer-Wohnung mit einer Wohnfläche von ca. 70 m². Schon beim Betreten spürt man den besonderen Charakter dieser Einheit: Alle Räume sind bequem vom Flur aus erreichbar und überzeugen durch eine durchdachte, harmonische Aufteilung - ideal für Singles oder Paare, die das Besondere suchen.Die Wohnung präsentiert sich aktuell in renovierungsbedürftigem Zustand - und genau darin liegt ihre große Chance. Ein wahrer Rohdiamant, der mit Liebe zum Detail und einem Gespür für Stil zu einem einzigartigen Altbaujuwel erweckt werden kann. Hohe Decken und elegante Stuckrosetten verleihen den Räumen eine unverwechselbare Atmosphäre und unterstreichen den klassischen Altbaucharme.Besonders spannend für Liebhaber authentischer Substanz: Die Einbauten im Flur sind lediglich in Trockenbauweise ausgeführt und die Decke ist abgehängt - beides lässt sich zurückbauen. Mit hoher Wahrscheinlichkeit verbirgt sich unter den Fliesen im Flur sowie unter dem Laminat die originale Dielung, die darauf wartet, freigelegt und liebevoll aufgearbeitet zu werden. Ein weiteres Detail: WC und Dusche sind voneinander getrennt Der Balkon lädt zu entspannten Stunden im Freien ein und begeistert durch seine Süd-West-Ausrichtung: Dank der Lage im dritten Obergeschoss genießen Sie hier Sonne bis in die Abendstunden hinein - ein echtes Highlight für Sonnenliebhaber. Abgerundet wird das Angebot durch ein persönliches Kellerabteil, das zusätzlichen Stauraum bietet.Ob als stilvolles Eigenheim oder als attraktive Kapitalanlage mit hervorragender Vermietbarkeit - diese Wohnung vereint Charme, Potenzial und eine begehrte Lage. Sie wartet nur darauf, mit neuem Leben erfüllt zu werden und ihre ganze Schönheit zu entfalten.
So funktioniert es
- Alle neuen Anzeigen matchen wir kostenlos mit Deinen Suchparametern.
- Passende Angebote senden wir Dir in einer E-Mail pro Tag.
- Du kannst auch verschiedene Suchen anlegen und Dich jederzeit abmelden. Mehr dazu
Wir haben soeben eine E-Mail mit Deinem Suchauftrag an Dich geschickt. – Klicke in dieser Mail auf den Bestätigungslink und schon geht's los. Prüfe ggf. auch Deinen Spamordner.
Es gab ein Problem beim Absenden Deiner E-Mail-Adresse. Bitte versuche es erneut.
WARNUNG: Bitte bestätige Deine E-Mail-Adresse, um regelmäßige Updates zu erhalten.