Gelegentliches Zweifamilienhaus in Gifhorn, perfekt für Eigennutzer und Vermieter. Das Haus von 1960 mit ca. 200 m² Gesamtwohnfläche ist regelmäßig modernisiert und bietet vielseitigen Nutzungsanspruch.
Objektdaten
Objektbeschreibung
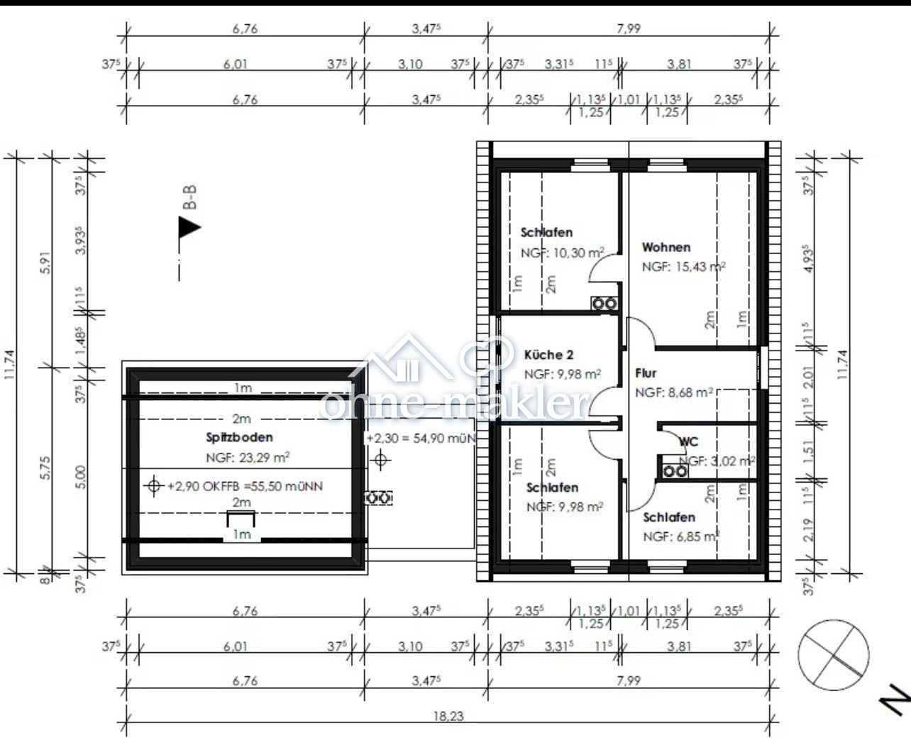
Objektdaten im Überblick: •Baujahr: 1960 •Grundstück: ca. 913 m² •Gesamtwohnfläche: ca. 200 m² •Heizung: Gas-Zentralheizung •Stellplätze: 4 Außenstellplätze Hauptgebäude (ca. 135 m²): •verteilt auf 2 Etagen •8 Zimmer •2 Bäder •2 voll ausgestattete Einbauküchen •laufend saniert und modernisiert seit 2014 Separate Einliegerwohnung (ca. 66 m²): •3 Zimmer •Einbauküche •Bad mit Dusche •2020 vollständig kernsaniert •Ausbau Dach inkl Dämmung •ideal zur Vermietung, als Büroräume oder für Gäste/Familienangehörige Terrasse, Garten, Keller, Duschbad, Einbauküche, Gäste-WC, Laminat Bemerkungen: Das Haus ist vermietet: Eine weitere Vermietung oder eine Eigennutzung nach dem Erwerb ist möglich.Lagebeschreibung
Zum Verkauf steht ein gepflegtes und regelmäßig modernisiertes Zweifamilienhaus in ruhiger, begehrter Lage im Wittkopfviertel von Gifhorn. Das Objekt überzeugt durch seine vielseitigen Nutzungsmöglichkeiten – ideal für Mehrgenerationenwohnen, Eigennutzung mit Vermietung oder Wohnen & Arbeiten.
Lage & Umgebung:
Das Wittkopfviertel zählt zu den ruhigen und gefragten Wohnlagen Gifhorns. Einkaufsmöglichkeiten, Schulen, Kindergärten, Ärzte sowie öffentliche Verkehrsmittel befinden sich in unmittelbarer Nähe. Die grüne Umgebung bietet zudem einen hohen Freizeit- und Erholungswert.
Infrastruktur (im Umkreis von 5 km):
Apotheke, Lebensmittel-Discount, Allgemeinmediziner, Kindergarten, Grundschule, Gymnasium, Öffentliche Verkehrsmittel
