Warmmiete 1.010 €
Zimmer 2
Größe 70 m²
53474 Bad Neuenahr-Ahrweiler
Objektdaten
Veröffentlicht am: 7. April 2026
Kaltmiete 770 €
Baujahr: 2010
Energieausweis: Liegt bei der Besichtigung vor
Danke! Bitte bestätige Deine E-Mail-Adresse – wir haben Dir soeben eine Mail geschickt.
Es gab ein Problem beim Absenden. Bitte versuche es erneut.
Bitte bestätige Deine E-Mail-Adresse, um Updates zu erhalten.
Objektbeschreibung
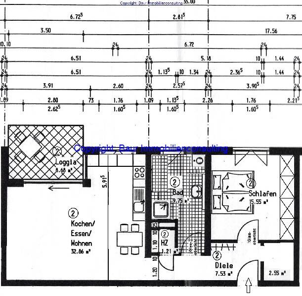
Das moderne, barrierefreie 8-Parteienhaus wurde 2010 nach Energieeffizienzstandard KfW 55 mit Energieeffizienz 'A' in massiver Bauweise errichtet. Die komfortable Wohnung befindet sich im Erdgeschoss. Sie verfügt über zwei Zimmer, eine Diele mit abgetrenntem Bereich, der sich als Homeoffice anbietet, eine überdachte Loggia mit vorgelagertem Terrassengarten (ca.45 qm) sowie ein schickes, neu gefliestes Tageslicht-Badezimmer mit barrierearmer Dusche. Hier steht auch der Miele Waschtrockner, der zur Wohnungsausstattung gehört. Die Wohnfläche beträgt 70,06 qm, die Nutzfläche 12,76 qm, inkl. des 9,00 qm großen Kellerraums. Zur Wohnung gehört ein eigener Tiefgaragenstellplatz (Miete mtl. 50,00 EUR extra) sowie ein gefliester Kellerraum. Vom lichtdurchfluteten Wohnzimmer mit angrenzender offener Küche erreicht man die nach Süden gelegene, durch seitliche Echtglaselemente wind-/und sichtgeschützte Loggia. Das freundliche Tageslichtbadezimmer verfügt über eine barrierearme, nahezu bodentiefe, gemauerte Dusche, einen Waschtisch mit großem Spiegelschrank sowie ein WC. Im ruhig gelegenen Schlafzimmer befinden sich ein modernes, passgenau eingebautes und variabel einstellbares Schranksystem mit Schiebetüren (gehört zur Ausstattung). In dem vom Flur erreichbaren Heizungsraum ist die Gastherme mit Warmwasserspeicher untergebracht. Diese versorgt ausschließlich die Wohnung mit Warmwasser und Heizenergie für die energieverbrauchsarme, komfortable Fußbodenheizung. Der Mieter ist selber Vertragspartner des Energieversorgers seiner Wahl. Für die Sicherheit der Bewohner ist eine Videotürüberwachung am Hauseingang installiert, die vor ungebetenen Besuchern schützen soll. Die Tiefgarage wird mit einem elektrischen Rolltor vor fremdem Zutritt geschützt. Hier gibt es auch einen separaten Platz für Fahrräder.Thema Sicherheit: Videoüberwachung der Eingangstüre, Rollläden mit automatischer Zeitsteuerung, zusätzliche Sicherheitsverriegelung der Fenster, abgeschlossene Tiefgarage.
So funktioniert es
- Alle neuen Anzeigen matchen wir kostenlos mit Deinen Suchparametern.
- Passende Angebote senden wir Dir in einer E-Mail pro Tag.
- Du kannst auch verschiedene Suchen anlegen und Dich jederzeit abmelden. Mehr dazu
Wir haben soeben eine E-Mail mit Deinem Suchauftrag an Dich geschickt. – Klicke in dieser Mail auf den Bestätigungslink und schon geht's los. Prüfe ggf. auch Deinen Spamordner.
Es gab ein Problem beim Absenden Deiner E-Mail-Adresse. Bitte versuche es erneut.
WARNUNG: Bitte bestätige Deine E-Mail-Adresse, um regelmäßige Updates zu erhalten.