Kaufpreis 1.125.000 €
85055 Ingolstadt
Objektdaten
Veröffentlicht am: 7. April 2026
Baujahr: 2015
Energieausweis: Liegt bei der Besichtigung vor
Danke! Bitte bestätige Deine E-Mail-Adresse – wir haben Dir soeben eine Mail geschickt.
Es gab ein Problem beim Absenden. Bitte versuche es erneut.
Bitte bestätige Deine E-Mail-Adresse, um Updates zu erhalten.
Objektbeschreibung
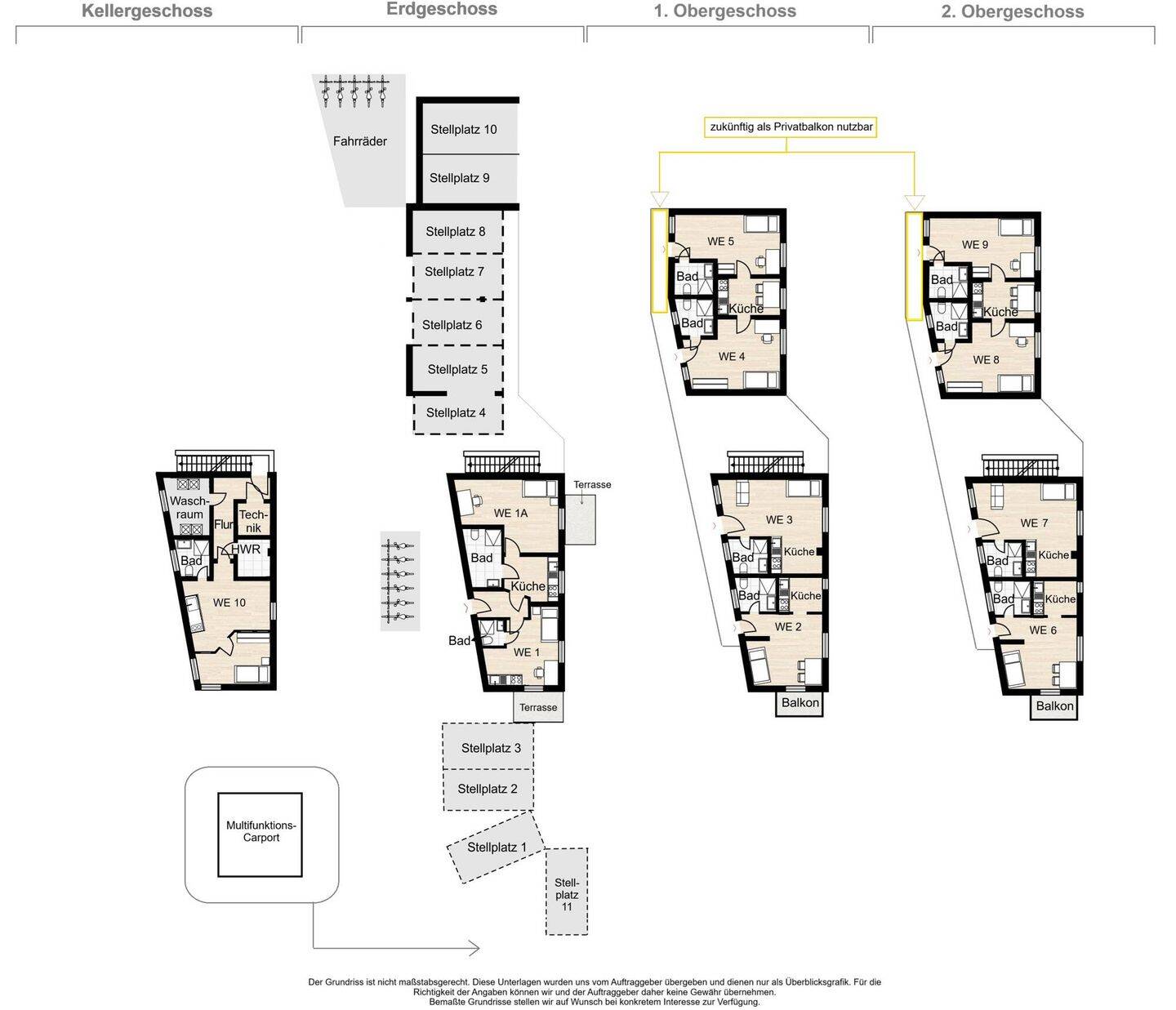
Dieses neuwertige Mehrfamilienhaus im Herzen Ingolstadts beherbergt neun kleine Appartments, welche sich perfekt für Studenten, Pendler oder Paare eignen.Beide Haushälften werden über die zentrale Treppenanlage mit den großen Gemeinschaftsbalkonen verbunden.Die Wohneinheiten werden überwiegend über die außenliegenden Laubengänge direkt erschlossen. Diese versprechen ein angenehmes Wohngefühl, was durch die verwendeten, hochwertigen Materialien und die großen Fensterflächen unterstrichen wird.Neben dem Gebäude sowie überdacht unter der rechten Haushälfte befinden sich die KFZ-Stellplätze sowie überdachte Abstellmöglichkeiten für Fahrräder und ein Multifunktionscarport mit Stromanschluss.Das Gebäude wurde unter Berücksichtigung baubiologischer Gesichtspunkte in ökologischer Holzbauweise errichtet. Es wurde insbesondere auf ein angenehmes Raumklima geachtet. Dazu wurden diffusionsoffene Silikatfarben und Echtholzparkett verwendet. Eine Solaranlage unterstreicht den Anspruch der Nachhaltigkeit. Eine Teilfläche des Daches ist an einen Pächter zur Betreibung seiner PV-Anlage verpachtet.Das Gebäude ist bereits aufgeteilt nach WEG.Weitere Eckdaten der Immobilie:- 571 qm Grundstück bei 950 € BRW und GFZ 0,95- Baujahr 2015- Linke Seite: drei Vollgeschosse + Keller- Rechte Seite: zwei Vollgeschosse- 9 WE, davon 2 WGs mit je 2 Zimmern, 2 Bädern, gemeinsamer Küche- 2 WGs auch als 2,5 Zi-Whg. nutzbar, dann mit privatem Balkon- 4 WE mit Balkon/Terrasse- 1 WE barrierefrei- 11 Stellplätze gesamt, davon 5 überdacht und 2 Garagen- Zentrale Gas-Brennwertheizung- Solarunterstützung für Warmwasser und HeizungVirtueller Rundgang über das Exposé verfügbar!
So funktioniert es
- Alle neuen Anzeigen matchen wir kostenlos mit Deinen Suchparametern.
- Passende Angebote senden wir Dir in einer E-Mail pro Tag.
- Du kannst auch verschiedene Suchen anlegen und Dich jederzeit abmelden. Mehr dazu
Wir haben soeben eine E-Mail mit Deinem Suchauftrag an Dich geschickt. – Klicke in dieser Mail auf den Bestätigungslink und schon geht's los. Prüfe ggf. auch Deinen Spamordner.
Es gab ein Problem beim Absenden Deiner E-Mail-Adresse. Bitte versuche es erneut.
WARNUNG: Bitte bestätige Deine E-Mail-Adresse, um regelmäßige Updates zu erhalten.