Objektdaten
Objektbeschreibung
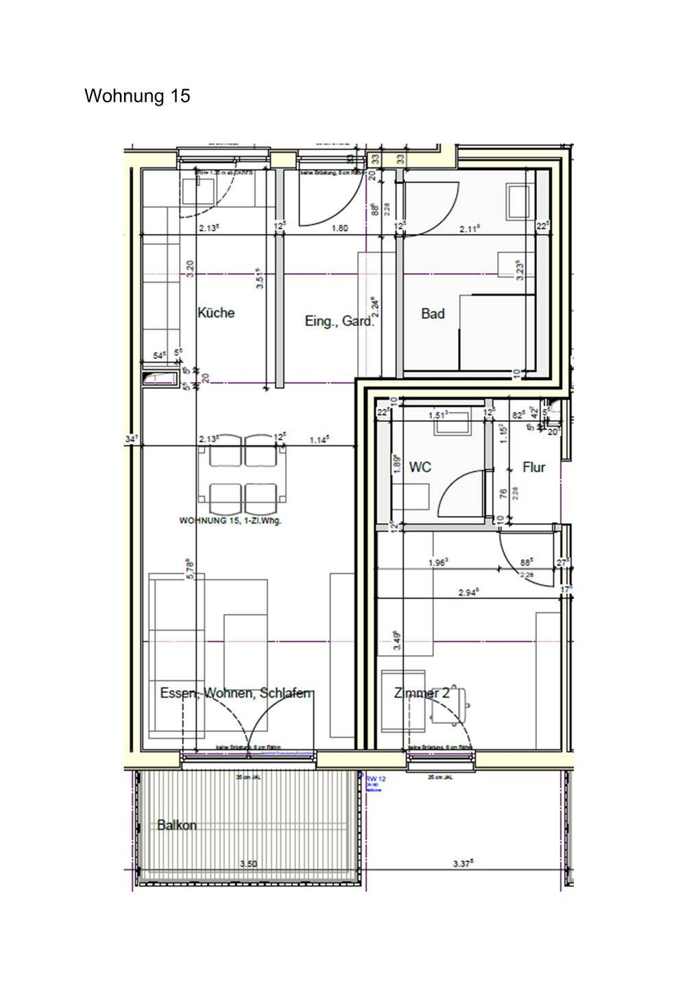
Frisch kernsaniert und sofort bezugsbereit: Diese moderne 2,5-Zimmer-Wohnung im 2. Obergeschoss in Singen-Nordstadt überzeugt mit durchdachtem Grundriss, viel Licht und einem großzügigen Balkon, der zum Entspannen einlädt. Auf ca. 45 m² erwartet Sie ein hochwertig ausgestattetes Zuhause, das sich ideal für Singles oder Paare eignet, die Wert auf Komfort, Ruhe und eine gepflegte Wohnumgebung legen. Ein Aufzug bringt Sie bequem in alle Etagen. Ein eigener Stellplatz sowie ein Kellerabteil sorgen für zusätzlichen Komfort im Alltag. Die Wohnung ist aufgrund von baulichen Gegebenheiten für Familien mit kleinen Kindern nur eingeschränkt geeignet. Objektzustand: Erstbezug nach Sanierung Balkon, Keller, Fahrstuhl, Duschbad, Barrierefrei, Laminat, Fliesen Bemerkungen: Ausstattung und Highlights Hier wurde nicht nur renoviert – hier wurde hochwertig modernisiert. • Kernsanierung: neuwertiger Zustand • Große Fensterflächen: helle, freundliche Räume • Dreifachverglasung: Ruhe und niedrige Energiekosten • Moderner Balkon: echter Mehrwert im Alltag • Hochwertige Bodenbeläge und stilvolle Fliesen • Badezimmer mit moderner Dusche • Aufzug: barrierearmer Zugang • Videoüberwachter Stellplatz • Keller + Fahrradraum + Hauswirtschaftsflächen • Internetanschluss: ideal für Homeoffice Wichtiger Punkt: niedrige laufende Kosten durch energieeffiziente Bauweise (Holzpellets). Kosten im Überblick: Kostenübersicht (transparent und klar) • Kaltmiete: 689 € • Nebenkosten: 150 € • Stellplatz: 45 € • Kaution: 2.067 € • Provisionsfrei Wichtige Hinweise • Haustiere nach individueller Absprache möglich • Die Wohnung ist optimal für 1-2 Personen geeignetEnergieträger: Holzpellets
Energieausweis nicht vorhanden
Für Interessenten mit größerem Platzbedarf stehen weitere 2,5-Zimmer-Wohnungen mit ca. 70 m² zur Verfügung. Solche Wohnungen in dieser Lage und Qualität sind selten verfügbar. Bitte SPRECHEN SIE uns gerne darauf an.
Vereinbaren Sie jetzt einen Besichtigungstermin – wir vergeben Termine nach Reihenfolge der Anfragen.
Bitte beachten Sie, dass die in der Anzeige gezeigten Bilder zur Illustration dienen und von der tatsächlichen Wohnung abweichen können.
Unsere Angebote sind freibleibend und unverbindlich. Irrtum sowie Zwischenvermietung bleiben ausdrücklich vorbehalten.
Makleranfragen nicht erwünscht. Nach § 7 UWG sind unaufgeforderte Kontaktaufnahmen durch Makler ohne ausdrückliche Einwilligung des Empfängers verboten!
ohne-makler (OM) ist weder Anbieter noch Vermittler der Immobilie. OM betreibt eine Plattform für Immobilieneigentümer, die unter anderem die gleichzeitige Veröffentlichung einzelner Inserate auf mehreren Immobilienportalen ermöglicht. Die Inhalte dieser Inserate werden ausschließlich von Dritten verantwortet. Für die Richtigkeit, Vollständigkeit oder Rechtmäßigkeit der Angaben übernimmt OM keine Haftung. Hinweise auf mögliche Rechtsverstöße können jederzeit gemeldet werden und werden nach Prüfung umgehend bearbeitet.
Ähnliche Angebote
So funktioniert es
- Alle neuen Anzeigen matchen wir kostenlos mit Deinen Suchparametern.
- Passende Angebote senden wir Dir in einer E-Mail pro Tag.
- Du kannst auch verschiedene Suchen anlegen und Dich jederzeit abmelden. Mehr dazu





