Kaufpreis 583.800 €
Zimmer 5
Größe 146 m²
74930 Ittlingen
Objektdaten
Veröffentlicht am: 9. April 2026
Baujahr: 2026
Energieausweis: Liegt bei der Besichtigung vor
Danke! Bitte bestätige Deine E-Mail-Adresse – wir haben Dir soeben eine Mail geschickt.
Es gab ein Problem beim Absenden. Bitte versuche es erneut.
Bitte bestätige Deine E-Mail-Adresse, um Updates zu erhalten.
Objektbeschreibung
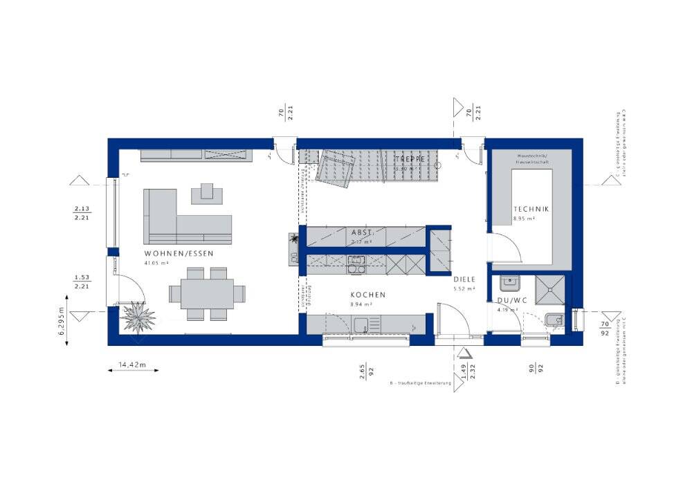
Das BALANCE 146 von Bien-Zenker steht für modernes Wohnen auf rund 146 m², verteilt auf zwei Etagen. Mit seinem schlanken Grundriss und klaren Linien passt es sich perfekt an schmale Grundstücke an und bietet dennoch ein großzügiges Raumgefühl. Besonders die großen Verglasungen zur Gartenseite hin lassen viel Licht in den Wohnbereich strömen und schaffen eine helle, freundliche Atmosphäre. Der clever gestaltete Innenraum umfasst zwei Kinderzimmer, ein Elternschlafzimmer mit flexiblem Zusatzraum und einen hohen Kniestock im Dachgeschoss, der das Gefühl von Weite verstärkt. Dieses Hauskonzept ist ideal für junge Familien, die Wert auf durchdachte Lösungen und eine offene Architektur legen.Wer sich für die Ausbaustufe Schlüsselfertig entscheidet, erlebt Baukomfort in seiner reinsten Form. Von der Grundsteinlegung bis zum letzten Pinselstrich übernehmen wir alle Arbeiten für Sie. Das bedeutet: Kein Stress mit Bauplanung oder Handwerkskoordination - Sie können sich einfach zurücklehnen und darauf freuen, Ihr neues Zuhause zu beziehen. Diese Ausbaustufe garantiert Ihnen nicht nur eine erhebliche Zeitersparnis, sondern auch absolute Planungs- und Kostensicherheit.Bei Bien-Zenker geht es um mehr als nur um den Bau eines Hauses - es geht um das Schaffen eines Zuhauses. Mit über 115 Jahren Erfahrung und mehr als 80.000 gebauten Häusern setzt Bien-Zenker Maßstäbe in der Fertighausbranche. Jedes Projekt wird individuell betrachtet, sodass Ihre Wünsche und Vorstellungen verwirklicht werden können. Nachhaltige Materialien und zukunftsweisende Technologien sorgen dafür, dass Ihr Haus nicht nur heute überzeugt, sondern auch für kommende Generationen.Grundrisse und Abbildungen können Extras zeigen. Flächenangaben nach DIN 277.
So funktioniert es
- Alle neuen Anzeigen matchen wir kostenlos mit Deinen Suchparametern.
- Passende Angebote senden wir Dir in einer E-Mail pro Tag.
- Du kannst auch verschiedene Suchen anlegen und Dich jederzeit abmelden. Mehr dazu
Wir haben soeben eine E-Mail mit Deinem Suchauftrag an Dich geschickt. – Klicke in dieser Mail auf den Bestätigungslink und schon geht's los. Prüfe ggf. auch Deinen Spamordner.
Es gab ein Problem beim Absenden Deiner E-Mail-Adresse. Bitte versuche es erneut.
WARNUNG: Bitte bestätige Deine E-Mail-Adresse, um regelmäßige Updates zu erhalten.