Schön ausgebaute 1,5-Zimmer-Wohnung im Herzen von Schmargendorf. Komplette Ausstattung und geringe Nebenkosten machen diese Wohnung zu einem perfekten Einzugsort.
Objektdaten
Objektbeschreibung
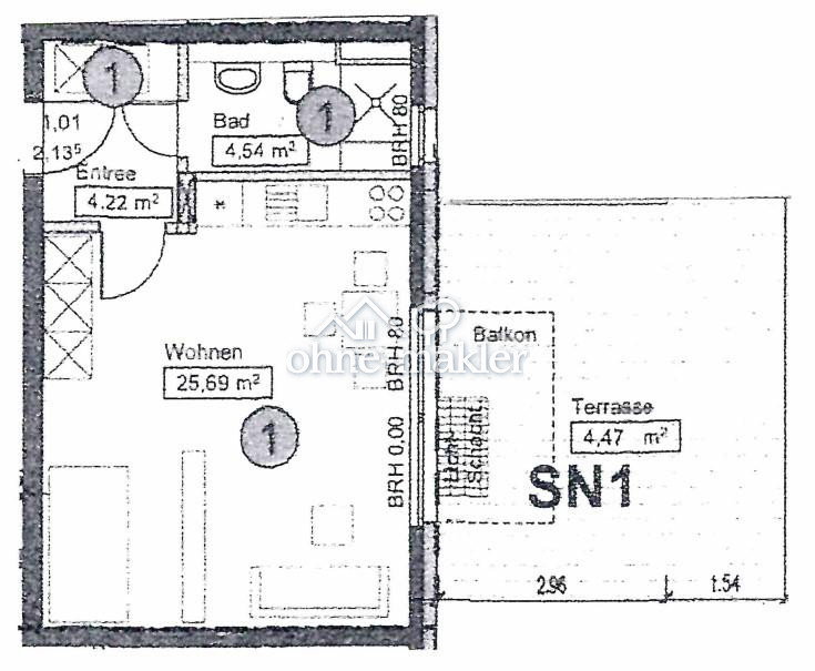
Sie müssen nur noch einziehen: - Heizungskosten enthalten - Warmwasserkosten enthalten - Strom nicht enthalten - Komplette Ausstattung enthalten Die schön ausgebaute 1,5 Zimmer Wohnung, ist komplett ausgestattet und kann ohne Zusatzkosten gleich übernommen werden. Die Wohnung befindet sich im 1.OG (ohne Stufen). Diese Wohnanlage gehört nicht zur Hochhausbebauung in der Schlangenbader Str. und ist für alle Bedürfnisse der guten Mietergemeinschaft ausgelegt. Der Innenhof ist schon fast Parkähnlich gestaltet. Vom zentralen Flur haben Sie den Zugang zur optimal eingebauten Küche. In der Küche sind Markeneinbaugeräte installiert worden, die den modernsten Anforderungen gerecht werden und trotzdem leicht bedienbar sind. Die Zimmer liegen zur wenig befahrenen Straßenseite. In der Wohnung, haben Sie einen schönen Blick aus einem Panoramafenster und schauen direkt auf den alten Baumbestand. Die Wohnung ist neu elektrifiziert und mit einer modernen FI-Schutzschaltung versehen und hat eine Rauchmeldeanlage. Das gesamte Haus befindet sich in einem guten Zustand mit netten Mietern. Balkon, Keller, Fahrstuhl, Duschbad, Einbauküche, Barrierefrei Bemerkungen: Elektrische Geräte: Waschmaschine (Siemens, Toplader), Fernseher (Sony, Flachbildschirm 43 Zoll), Ceran-Induktionskochplatten (Bauknecht), Kühlschrank mit kleinem Gefrierfach, Wasserkocher, Staubsauger, Bügeleisen,We speak English
Nous parlons français
Wir sprechen auch Deutsch
Makleranfragen nicht erwünscht. Nach § 7 UWG sind unaufgeforderte Kontaktaufnahmen durch Makler ohne ausdrückliche Einwilligung des Empfängers verboten!
ohne-makler (OM) ist weder Anbieter noch Vermittler der Immobilie. OM betreibt eine Plattform für Immobilieneigentümer, die unter anderem die gleichzeitige Veröffentlichung einzelner Inserate auf mehreren Immobilienportalen ermöglicht. Die Inhalte dieser Inserate werden ausschließlich von Dritten verantwortet. Für die Richtigkeit, Vollständigkeit oder Rechtmäßigkeit der Angaben übernimmt OM keine Haftung. Hinweise auf mögliche Rechtsverstöße können jederzeit gemeldet werden und werden nach Prüfung umgehend bearbeitet.
Ähnliche Angebote
So funktioniert es
- Alle neuen Anzeigen matchen wir kostenlos mit Deinen Suchparametern.
- Passende Angebote senden wir Dir in einer E-Mail pro Tag.
- Du kannst auch verschiedene Suchen anlegen und Dich jederzeit abmelden. Mehr dazu





