Objektdaten
Objektbeschreibung
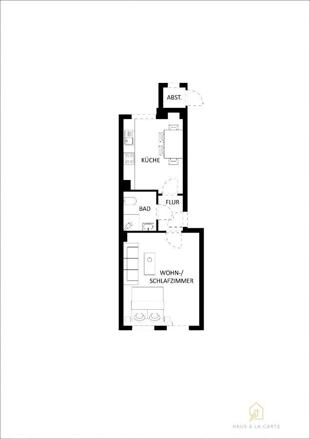
Die Wohnung wird über einen kleinen Flur betreten. Von hier aus gelangt man in ein Duschbad mit Tageslicht sowie in das erste Zimmer mit integrierter Küchenzeile. Die Küche ist mit einer doppelten Induktionsherdplatte ausgestattet und bietet zusätzlich einen großen Vorratsschrank mit viel Stauraum. Hinter dem ersten Zimmer befindet sich das Schlafzimmer. Dort ist ein großer, fest verbauter Wandschrank integriert. Der Raum bietet ausreichend Platz für ein großes Bett sowie einen Schreibtisch. Die Wohnung ist als Einliegerwohnung in einem liebevoll sanierten Fachwerkhaus angelegt. Das denkmalgeschützte Gebäude wurde hochwertig modernisiert, wobei die sichtbaren Eichenbalken eine besondere, warme Atmosphäre schaffen. Die Wohnung eignet sich ideal für eine Einzelperson, gerne auch für Studierende. Es handelt sich um eine Nichtraucherwohnung. Das Halten von Haustieren ist leider nicht möglich. Beheizt wird das Haus nachhaltig über eine Wärmepumpe, Strom kommt von einer PV-Anlage. Die Nebenkosten sind in der Warmmiete bereits enthalten und werden nicht gesondert abgerechnet. Ein eigener Parkplatz befindet sich direkt vor der Tür. Lage Zur Uni Wuppertal sind es 13 Minuten mit dem Auto. Die Busse fahren in der Nähe alle 10 Minuten Richtung Wuppertal HBF. In direkter Umgebung beginnen verschiedene Naturschutzgebiete, die zu Spaziergängen und Wanderungen einladen. Auch die nahegelegene Trasse bietet ideale Möglichkeiten zum Radfahren oder Joggen. Sonstiges Für 15 € pro Monat wird ein eigenes Gast-WLAN bereitgestellt. Sobald verfügbar, erfolgt zudem eine Umstellung auf Glasfaser.Ähnliche Angebote
So funktioniert es
- Alle neuen Anzeigen matchen wir kostenlos mit Deinen Suchparametern.
- Passende Angebote senden wir Dir in einer E-Mail pro Tag.
- Du kannst auch verschiedene Suchen anlegen und Dich jederzeit abmelden. Mehr dazu





