Objektdaten
Objektbeschreibung
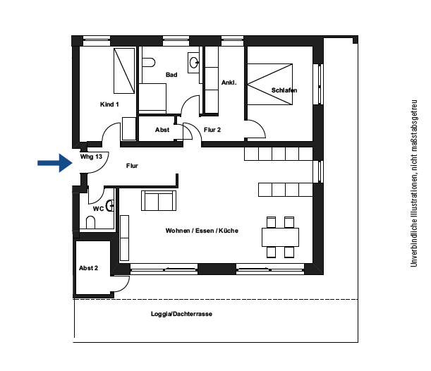
Außergewöhnliche Architektur und modernes Ambiente zeichnen diese 2015 erbaute Immobilie aus.Im Erdgeschoss entstand eine sehr schöne, helle und moderne Wohnung. Vom Wohn- und Essbereich mit offener Küche gelangen Sie auf die großzügige, umlaufende Terrasse. Es wurden zwei Schlafzimmer realisiert, ein Badezimmer sowie ein separates Gäste-WC sind vorhanden.Ähnliche Angebote
So funktioniert es
- Alle neuen Anzeigen matchen wir kostenlos mit Deinen Suchparametern.
- Passende Angebote senden wir Dir in einer E-Mail pro Tag.
- Du kannst auch verschiedene Suchen anlegen und Dich jederzeit abmelden. Mehr dazu





