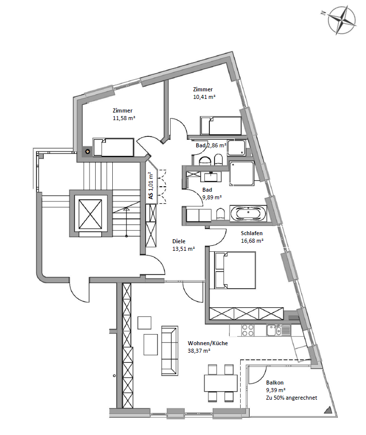
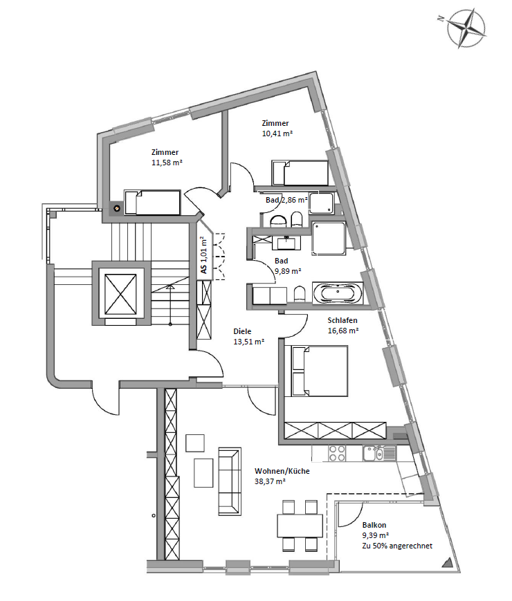
Objektdaten
Objektbeschreibung
+ denkmalgeschützte Villa mit historischem Garten, Plastiken und Weinkeller+ ursprüngliches Baujahr aus der 2. Hälfte des 18. Jahrhunderts+ Sanierungsjahr etwa 2004+ regelmäßige Instandhaltungen erbracht+ 601,17 € monatliches Hausgeld (davon 389,21€ auf den Mieter umlagefähig)+ anteilig mitverkaufte Erhaltungsrücklage beträgt 3.459,32 € (Stand letzte Abrechnung)Ähnliche Angebote
So funktioniert es
- Alle neuen Anzeigen matchen wir kostenlos mit Deinen Suchparametern.
- Passende Angebote senden wir Dir in einer E-Mail pro Tag.
- Du kannst auch verschiedene Suchen anlegen und Dich jederzeit abmelden. Mehr dazu




