Kaufpreis 294.000 €
Zimmer 3
Größe 72 m²
78576 Emmingen-Liptingen
Objektdaten
Veröffentlicht am: 12. April 2026
Baujahr: 2026
Energieausweis: Liegt bei der Besichtigung vor
Danke! Bitte bestätige Deine E-Mail-Adresse – wir haben Dir soeben eine Mail geschickt.
Es gab ein Problem beim Absenden. Bitte versuche es erneut.
Bitte bestätige Deine E-Mail-Adresse, um Updates zu erhalten.
Objektbeschreibung
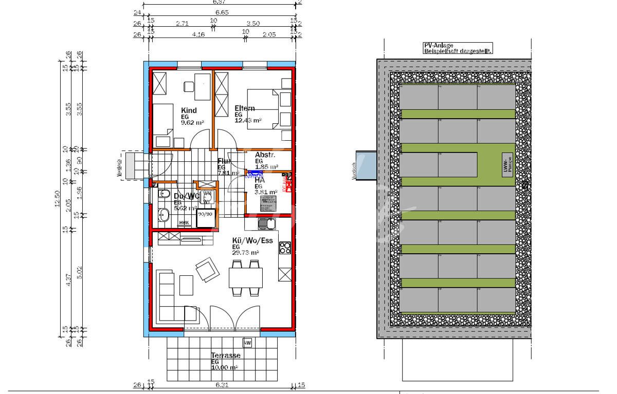
Sie suchen für sich und Ihre kleine Familie die eigenen 4-Wände, gerne mit Garten, am liebsten ein Einfamilienhaus mit energetisch modernem Standard, aber bezahlbar ? Oder sind die Kinder schon aus dem Haus und Sie benötigen nur noch eine kleine Ausgangsbasis für Ihre ausführlichen Reisepläne mit dem Wohnmobil ? Sie möchten aber Ihr eigener Herrr bleiben und sich nicht anderen Miteigentümern in einer Eigentümergemeinschaft herumärgern ?Dann sollten Sie sich schnellsten mit diesem Angebot befassen:In Emmingen-Liptingen entstehen kompakte Doppelhäuser im Bungalowstil ohne Keller mit einer Wohnfläche von ca. 72 m². Die durchdachte Raumaufteilung umfasst ein geräumiges Wohnzimmer mit offener Küche und direktem Zugang zur sonnigen Gartenterrasse, zwei gut nutzbare Schlafzimmer, ein Badezimmer sowie einen praktischen Abstellraum. Die Bungalows bieten komfortables Wohnen auf einer Ebene.Die Gebäude überzeugen durch eine einfache, klare Architektur, energetische nachhaltige und kostenorientierte Bauweise sowie eine funktionale Grundrissgestaltung, die sowohl für Eigennutzer als auch für Kapitalanleger in der Vermietung bestens geeignet ist. Zu jeder Haushälfte gehören zwei Stellplätze im Freien.Das Grundstück befindet sich im Erbbaurecht der Kirche, was eine deutlich reduzierte Anfangsinvestition bedeutet und somit insbesondere für Kapitalanleger sowie preisbewusste Eigennutzer attraktiv ist. Die Parzelle zu diesem Angebot hat eine Fläche von 285 qm.Der anfängliche Erbbauzins liegt abhängig von der Grundstücksgröße 133,00 € monatlich. Für Eigennutzer mit Kindern reduziert sich dieser Betrag auf die Dauer von maximal 7 Jahren pro Kind um 20 %.Die Immobilie wird als nachhaltiges Gebäude nach dem Qualitätssiegel Nachhaltiges Gebäude (QnG) errichtet. Daraus ergeben sich besondere Steuervorteile sowie attraktive Förder- und Finanzierungsmöglichkeiten, unter anderem durch staatlich unterstützte Programme(siehe Details unter "Sonstige Angaben").
So funktioniert es
- Alle neuen Anzeigen matchen wir kostenlos mit Deinen Suchparametern.
- Passende Angebote senden wir Dir in einer E-Mail pro Tag.
- Du kannst auch verschiedene Suchen anlegen und Dich jederzeit abmelden. Mehr dazu
Wir haben soeben eine E-Mail mit Deinem Suchauftrag an Dich geschickt. – Klicke in dieser Mail auf den Bestätigungslink und schon geht's los. Prüfe ggf. auch Deinen Spamordner.
Es gab ein Problem beim Absenden Deiner E-Mail-Adresse. Bitte versuche es erneut.
WARNUNG: Bitte bestätige Deine E-Mail-Adresse, um regelmäßige Updates zu erhalten.