Kaufpreis 472.300 €
Zimmer 4
Größe 142 m²
74930 Ittlingen
Objektdaten
Veröffentlicht am: 12. April 2026
Energieausweis: Liegt bei der Besichtigung vor
Danke! Bitte bestätige Deine E-Mail-Adresse – wir haben Dir soeben eine Mail geschickt.
Es gab ein Problem beim Absenden. Bitte versuche es erneut.
Bitte bestätige Deine E-Mail-Adresse, um Updates zu erhalten.
Objektbeschreibung
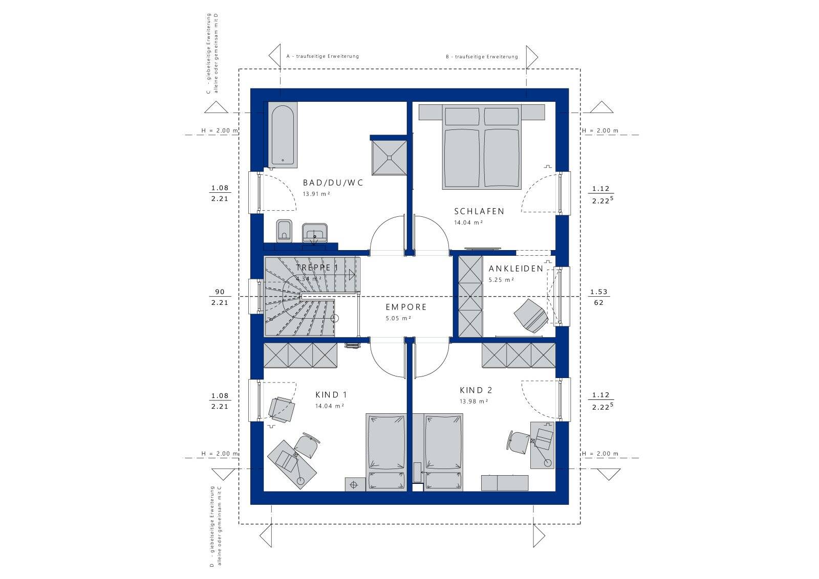
Willkommen in Ihrem zukünftigen Zuhause in Ittlingen, wo individuelles Wohnen auf stilvolle Architektur trifft. Mit einer großzügigen Wohnfläche von 142,11 Quadratmetern und einer durchdachten Aufteilung in 4,5 Zimmern bietet dieses Fertighaus ausreichend Platz für Ihre ganze Familie. Die modulare Bauweise von Bien-Zenker ermöglicht es Ihnen, das Haus ganz nach Ihren persönlichen Vorstellungen und Wünschen zu gestalten. Ob modern, mediterran oder klassisch - hier wird Ihr Traumhaus Realität. Die intelligenten Grundriss-Varianten sorgen dafür, dass die Räume harmonisch miteinander verbunden sind und ein lichtdurchflutetes Ambiente schaffen, das zum Verweilen einlädt.Das Konzept berücksichtigt nicht nur ästhetische Aspekte, sondern auch die Funktionalität und den Komfort im Alltag. Jedes Zimmer ist optimal auf die Bedürfnisse einer Familie abgestimmt. Die Schlafzimmer sind ein Rückzugsort der Ruhe, während der offene Wohn- und Essbereich zum gemeinsamen Leben einlädt. Hier können Sie unvergessliche Momente mit Ihren Liebsten verbringen. Darüber hinaus ermöglicht Ihnen die durchdachte Raumaufteilung, das Haus auch barrierefrei zu gestalten, sodass es für alle Generationen geeignet ist.Die Ausbaustufe ZAF bietet Ihnen die Möglichkeit, aktiv am Bau Ihres Eigenheims mitzuarbeiten. Wir kümmern uns um den Rohbau und den technischen Innenausbau, während Sie kreative Freiheit bei der Gestaltung der Böden, Malerarbeiten und Sanitärinstallationen haben. Dies spart nicht nur Kosten, sondern lässt Sie auch Ihre eigene Note in Ihr Zuhause einfließen. So wird der Bauprozess nicht nur effizient, sondern auch zu einem persönlichen Erlebnis, das Sie stolz machen wird. Jedes Detail dieses Hauses spiegelt die Philosophie von Bien-Zenker wider, die für Qualität, Nachhaltigkeit und Individualität steht. Ihr neues Zuhause wird nicht nur ein Ort zum Wohnen, sondern ein Ort, an dem Sie sich wohlfühlen und Ihre Träume verwirklichen können.Grundrisse und Abbildungen können Extras zeigen. Flächenangaben nach DIN 277.
So funktioniert es
- Alle neuen Anzeigen matchen wir kostenlos mit Deinen Suchparametern.
- Passende Angebote senden wir Dir in einer E-Mail pro Tag.
- Du kannst auch verschiedene Suchen anlegen und Dich jederzeit abmelden. Mehr dazu
Wir haben soeben eine E-Mail mit Deinem Suchauftrag an Dich geschickt. – Klicke in dieser Mail auf den Bestätigungslink und schon geht's los. Prüfe ggf. auch Deinen Spamordner.
Es gab ein Problem beim Absenden Deiner E-Mail-Adresse. Bitte versuche es erneut.
WARNUNG: Bitte bestätige Deine E-Mail-Adresse, um regelmäßige Updates zu erhalten.