Kaufpreis 440.000 €
89250 Senden
Objektdaten
Veröffentlicht am: 12. April 2026
Danke! Bitte bestätige Deine E-Mail-Adresse – wir haben Dir soeben eine Mail geschickt.
Es gab ein Problem beim Absenden. Bitte versuche es erneut.
Bitte bestätige Deine E-Mail-Adresse, um Updates zu erhalten.
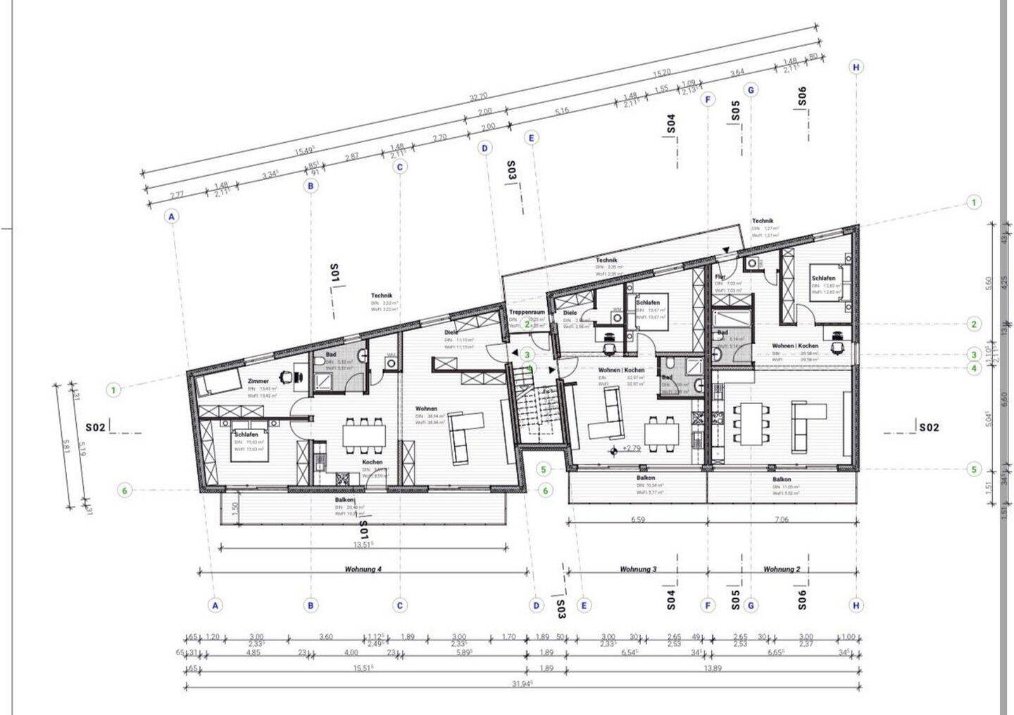
Objektbeschreibung
Attraktives Baugrundstück in Toplage von Senden - inkl. abgestimmter Projektierung für ein MehrfamilienhausZum Verkauf steht ein äußerst interessantes Grundstück in begehrter Lage von Senden mit einer Fläche von ca. 700 m².Aktuell befindet sich auf dem Grundstück ein Bestandsgebäude (Abbruchhaus). Für das Grundstück wurde bereits ein modernes Fünf-Familienhaus inklusive Stellplatzkonzept projektiert. Die Planung wurde dabei eng mit der Stadt Senden abgestimmt, sodass eine ideale Grundlage für eine zeitnahe und reibungslose Umsetzung gegeben ist.Die Lage überzeugt zusätzlich durch ihre hervorragende Infrastruktur: Der Bahnhof ist in nur ca. 5 Minuten fußläufig erreichbar und bietet eine optimale Anbindung für Pendler.Dieses Angebot richtet sich insbesondere an Bauträger, Investoren oder Projektentwickler, die ein attraktives Wohnbauprojekt in gefragter Lage realisieren möchten.Wichtige Hinweise:.Der Kaufpreis bezieht sich ausschließlich auf das Grundstück inkl. Projektierung.Die Kosten für den Abbruch des Bestandsgebäudes sind vom Käufer zu tragen.Die Spekulationsfrist ist bereits abgelaufen - das Objekt wird aus strategischen Gründen veräußertEin vergleichbares Projekt würden wir unter normalen Umständen selbst realisieren, jedoch bietet sich hier eine seltene Gelegenheit für externe Investoren, ein bereits vorbereitetes Bauvorhaben zu übernehmen.Highlights auf einen Blick:.Ca. 700 m² Grundstück.Top Lage in Senden.Projektierung für ein 5-Familienhaus bereits vorhanden.Planung eng mit der Stadt abgestimmt.Stellplatzlösung eingeplant.Bahnhof in ca. 5 Minuten fußläufig erreichbar.Ideal für Bauträger & Investoren.Sofortige Projektumsetzung möglichGerne stellen wir Ihnen auf Anfrage weitere Unterlagen zur Projektierung sowie Details zur Bebauung zur Verfügung.
So funktioniert es
- Alle neuen Anzeigen matchen wir kostenlos mit Deinen Suchparametern.
- Passende Angebote senden wir Dir in einer E-Mail pro Tag.
- Du kannst auch verschiedene Suchen anlegen und Dich jederzeit abmelden. Mehr dazu
Wir haben soeben eine E-Mail mit Deinem Suchauftrag an Dich geschickt. – Klicke in dieser Mail auf den Bestätigungslink und schon geht's los. Prüfe ggf. auch Deinen Spamordner.
Es gab ein Problem beim Absenden Deiner E-Mail-Adresse. Bitte versuche es erneut.
WARNUNG: Bitte bestätige Deine E-Mail-Adresse, um regelmäßige Updates zu erhalten.