Objektdaten
Objektbeschreibung
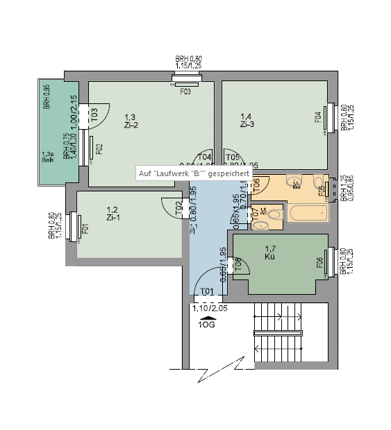
Das 1955 errichtete Haus verfügt über 3 Etagen (Inkl. EG) und 6 Mieteinheiten. Zu jeder Mieteinheit gehört ein Kellerraum. Alle Wohnungen werden über eine Gaszentralheizung beheizt und ebenso zentral mit warmem Wasser versorgt. Über den Flur erreichen Sie alle Räume dieser attraktiven 2-Zimmer Wohnung. Das Wohnzimmer ist einladend hell und bietet Zugang zum Balkon. Das Schlafzimmer bietet viel Platz für Ihr Mobiliar und punkten ebenfalls mit großen Fenstern und viel Lichteinfall. Die Küche lässt keinen Kochliebhaber kalt - hier können Sie sich kulinarisch und auch räumlich austoben. Sie werden es selbst merken: alle Räume sind perfekt geschnitten und lassen sich aufgrund des vorteilhaften Grundrisses individuell gestalten.So funktioniert es
- Alle neuen Anzeigen matchen wir kostenlos mit Deinen Suchparametern.
- Passende Angebote senden wir Dir in einer E-Mail pro Tag.
- Du kannst auch verschiedene Suchen anlegen und Dich jederzeit abmelden. Mehr dazu





