Diese außergewöhnliche 3-Zimmer-Neubauwohnung mit ca. 111 m² Wohnfläche in Dienheim bietet modernes Design und luxuriösen Komfort. Ideal für Einsteiger im Immobilienmarkt.
Objektdaten
Objektbeschreibung
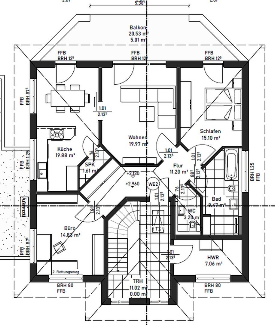
Diese außergewöhnliche 3-Zimmer-Neubauwohnung mit ca. 111 m² Wohnfläche im Obergeschoss eines architektonisch anspruchsvollen Neubaus in 55276 Dienheim steht zum Erstbezug bereit. Sie vereint modernes Design, nachhaltige Bauweise und luxuriösen Wohnkomfort zu einem Zuhause, das höchsten Ansprüchen gerecht wird. ________________________________________ Ausstattung & Wohnkomfort Die Wohnung überzeugt durch eine konsequent hochwertige und stilvolle Ausstattung bis ins Detail: • Großzügiger Balkon als privater Rückzugsort im Freien • Elegantes Badezimmer mit exklusiven Badezimmermöbeln • Edle Unterputzarmaturen in Dusche und Badewanne • Komfortable Regenbrause für ein Spa-ähnliches Duscherlebnis • Großformatige, zeitlos elegante Feinsteinzeugfliesen • Hochwertiges Aqua-Laminat in Eiche-Optik in den Wohnräumen • Separate Waschküche • Smarthome-ready: moderne Zimmerlampen und stilvolle Balkonbeleuchtung • Digitale Raumthermostate für individuellen Wohnkomfort • Dezentrale Be- und Entlüftungsanlage für ein dauerhaft angenehmes Raumklima • Video-Gegensprechanlage für zusätzliche Sicherheit • Wallbox zum komfortablen Laden von Elektrofahrzeugen am Carport Die Ausstattung unterstreicht den exklusiven Charakter dieser Immobilie und bietet ein Wohngefühl auf höchstem Niveau. ________________________________________ Nachhaltigkeit & Energieeffizienz • Sehr energieeffizientes Gebäude • Errichtet als Effizienzhaus 40 QNG • Zukunftsorientiertes Wohnen mit nachhaltig niedrigen Energiekosten Balkon, Vollbad, Gäste-WC, Barrierefrei, Laminat, FliesenEnergieträger: Strom
Makleranfragen nicht erwünscht. Nach § 7 UWG sind unaufgeforderte Kontaktaufnahmen durch Makler ohne ausdrückliche Einwilligung des Empfängers verboten!
ohne-makler (OM) ist weder Anbieter noch Vermittler der Immobilie. OM betreibt eine Plattform für Immobilieneigentümer, die unter anderem die gleichzeitige Veröffentlichung einzelner Inserate auf mehreren Immobilienportalen ermöglicht. Die Inhalte dieser Inserate werden ausschließlich von Dritten verantwortet. Für die Richtigkeit, Vollständigkeit oder Rechtmäßigkeit der Angaben übernimmt OM keine Haftung. Hinweise auf mögliche Rechtsverstöße können jederzeit gemeldet werden und werden nach Prüfung umgehend bearbeitet.
So funktioniert es
- Alle neuen Anzeigen matchen wir kostenlos mit Deinen Suchparametern.
- Passende Angebote senden wir Dir in einer E-Mail pro Tag.
- Du kannst auch verschiedene Suchen anlegen und Dich jederzeit abmelden. Mehr dazu


