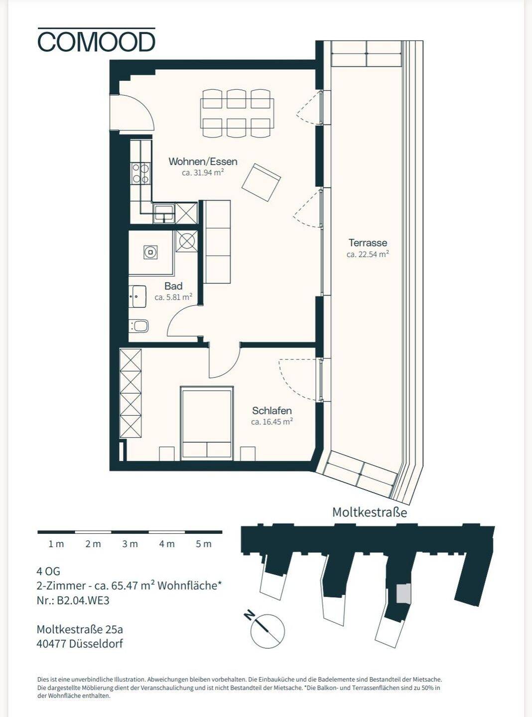
Sehr schöne und geschmackvoll möblierte 2-Zimmer-Wohnung mit Südwest-Balkon in Pempelfort. Die ca. 66 m² große Wohnung befindet sich im 2. Obergeschoss eines modernen Mehrfamilienhauses, saniert für den erstbezug im Frühjahr 2026.
Objektdaten
Objektbeschreibung
Erstbezug Frühjahr 2026: Sehr schöne, geschmackvoll möblierte 2-Zimmer-Wohnung mit Südwest-Balkon, zum Garten gelegen, Nichtraucherwohnung. Diese stilvoll und hochwertig ausgestattete ca. 66 m² große Wohnung befindet sich im beliebten Düsseldorfer Stadtteil Pempelfort und liegt im 2. Obergeschoss eines modernen Mehrfamilienhauses. Sowohl die Wohnung selbst als auch das gesamte Gebäude wurden aufwändig saniert – die Wohnung im Jahr 2026, das Haus bereits 2025. Schon beim Betreten des Hauses überzeugt das gepflegte und ansprechende Treppenhaus, das ein angenehmes Wohngefühl vermittelt und die Vorfreude auf das eigene Zuhause unterstreicht. Die Nordstraße/Schwerinstraße liegen in der Nähe und gehören zu den beliebtesten Einkaufstraßen in Düsseldor. Das Viertel ist ist bunt, strahlt Ruhe aus, gemütlich und modern zugleich. Zu Fuß erreicht man in 10 Minuten die Rheinwiesen, hier kann man ausgiebig an Rhein spazieren gehen und joggen und den Blick auf die andere Rheinseite genießen. Ca. 450 Meter entfernt befindet sich das Parkhaus Dieterich-Karree, dort werden Dauerparkplätze/Abonnements angeboten. Die Mietet beinhaltet bereits die Betriebs- und Heizkosten, Strom und die Kosten für den Internetzugang. Angaben zum Energieausweis: Baujahr des Hauses: 1952, Energieverbrauchsausweis, Wert: 118,98 kWh (m²a), Energieträger: Erdgas, Energieeffizienzklasse gemäß Energieausweis und EnEV 2014: D. Die Wohnung wurde mit viel Liebe zum Detail umfassend modernisiert und hochwertig möbliert. Ein neu aufgearbeiteter Eichendielenboden verleiht allen Räumen eine warme und elegante Atmosphäre, während glatt verputzte Wände und stilvolle Beleuchtungskonzepte für ein modernes Gesamtbild sorgen. In allen Räumen wurde zudem ausgewählte Kunst angebracht, die dem Interieur eine besondere Note verleiht. Herzstück der Wohnung ist die großzügige Wohnküche, die fließend in den Wohnbereich übergeht. Die hochwertige, neue Einbauküche überzeugt durch ihr modernes Design mit weißen Metrofliesen und einer funktionalen Aufteilung: Eine Kochinsel mit Herd und Dunstabzugshaube bildet den zentralen Mittelpunkt, während sich im Wandelement die Spülmaschine befindet. Ein großer Kühlschrank rundet die Ausstattung ab. Der angrenzende Wohnbereich ist geschmackvoll eingerichtet und verfügt über eine gemütliche Sofagarnitur, einen Fernseher sowie Internetzugang über WLAN. Ein Esstisch für bis zu vier Personen dient sowohl als Essplatz als auch als komfortabler Arbeitsplatz. Das Schlafzimmer bietet mit einem großzügigen Bett (180 x 200 cm), zwei Nachttischen sowie einem maßgefertigten Einbauschrank viel Komfort und Stauraum. Der Einbauschrank integriert zusätzlich ein weiteres TV-Gerät. Auch hier sorgen stilvolle Bilder und eine durchdachte Beleuchtung für ein harmonisches Ambiente. Das Badezimmer wurde ebenfalls im Zuge der Sanierung vollständig erneuert und überzeugt durch eine hochwertige Ausstattung mit weißen Metrofliesen an den Wänden und eleganten Betonzementfliesen am Boden. Eine großzügige Dusche mit Glasabtrennung sowie die durchdachte Raumaufteilung bieten ein angenehmes und komfortables Nutzungserlebnis. Ein weiteres Highlight ist der Balkon, der 2026 neu gestaltet wurde. Boden in Bangkirai-Optik (grau), gemütliche Sitzmöglichkeiten, Beistelltische und dekorative Laternen schaffen eine einladende Atmosphäre – ideal für entspannte Stunden im Freien. Beim Betreten der Wohnung gelangt man in einen kleinen Flur mit praktischer Kommode, die sich ideal als Ablagefläche eignet. Eine moderne Sprechanlage mit Kamerafunktion sorgt für zusätzliche Sicherheit und Komfort. Im Haus steht zudem ein ebenerdig zugänglicher Fahrradraum zur Verfügung, der eine praktische und unkomplizierte Unterbringung von Fahrrädern ermöglicht. Waschmaschine und Trockner nur für diese Wohnung befinden sich im Waschkeller.Adresse: Rethelstraße 47
40237 Düsseldorf
Tel.: + 49 (0) 211-4497301
E-Mail: [email protected]
USt.-IdNr.: DE180712843
Kammer: IHK Essen
Aufsichtsbehörde: Stadt Essen Ordnungsamt, Porscheplatz 1 45127 Essen
V.i.S.d.P.: Karin Großmann
Geschäftsführung: Karin Großmann
HR-Nummer: HRB 12024
Registergericht: Amtsgericht Essen
Ähnliche Angebote
So funktioniert es
- Alle neuen Anzeigen matchen wir kostenlos mit Deinen Suchparametern.
- Passende Angebote senden wir Dir in einer E-Mail pro Tag.
- Du kannst auch verschiedene Suchen anlegen und Dich jederzeit abmelden. Mehr dazu





