Warmmiete 707 €
Zimmer 1
Größe 45 m²
30926 Seelze
Objektdaten
Veröffentlicht am: 19. April 2026
Frei ab: 1. Mai 2026
Kaltmiete 500 €
Energieausweis: Liegt bei der Besichtigung vor
Danke! Bitte bestätige Deine E-Mail-Adresse – wir haben Dir soeben eine Mail geschickt.
Es gab ein Problem beim Absenden. Bitte versuche es erneut.
Bitte bestätige Deine E-Mail-Adresse, um Updates zu erhalten.
Objektbeschreibung
Vermietet wird eine helle ruhige 2-Zimmerwohnung im Erdgeschoss in einem 8-Familienhaus. Erstbezug nach vollständiger Renovierung
Bushaltestelle in 2 Minuten zu Fuß erreichbar. Straßenbahn Endpunkt 10 Hannover/ Ahlem in 3,5km mit dem Bus erreichbar. Parken an der Straße möglich. Schule, Kindergarten, Krippe, Supermarkt, Restaurant und Tankstelle sind fußläufig erreichbar.
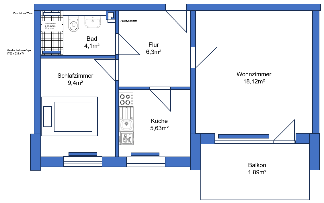
Die Wohnung besteht aus Flur, Schlafzimmer, Bad, Küche, Wohnzimmer, Balkon und Keller
Keine Küchenzeile vorhanden. Sie muss selbst mitgebracht werden. Anschlüsse für Herd, Backofen, Spülmaschine und Spüle vorhanden. Die Wohnung wird zur Zeit vollständig renoviert.
Die Wohnung erhält eine neue Elektroverdrahtung
Räume werden tapeziert und gestrichen. Die Fußböden der Wohnräume werden mit pflegeleichten Vinylboden ausgestattet. Die Wohnung wird mit einem neuem Bad ausgestattet. Das Badezimmer bekommt eine bodentiefe Dusche und einen Handtuchwärmekörper
Die Wohnung liegt in einer ruhigen Gegend mit Westbalkon
Frei ab 1.5.26
Trockenraum, Waschraum und Fahrradkeller können mit genutzt werden.
Waschmaschine kann im Waschraum aufgestellt werden.
Kabelanschluss und Telekomanschluss für Telefon, TV und Internet sind vorhanden
Strom muss bei einem Stromanbieter angemeldet werden.
Gasbrennwert-Zentralheizung vorhanden
Kaltmiete 500€
Nebenkosten und Heizkosten 207€ einschließlich Treppenhausreinigung
Warmmiete 707€
3 Kaltmieten Mietkaution, Schufa-Auskunft und
Verdienstnachweise notwendig
So funktioniert es
- Alle neuen Anzeigen matchen wir kostenlos mit Deinen Suchparametern.
- Passende Angebote senden wir Dir in einer E-Mail pro Tag.
- Du kannst auch verschiedene Suchen anlegen und Dich jederzeit abmelden. Mehr dazu
Wir haben soeben eine E-Mail mit Deinem Suchauftrag an Dich geschickt. – Klicke in dieser Mail auf den Bestätigungslink und schon geht's los. Prüfe ggf. auch Deinen Spamordner.
Es gab ein Problem beim Absenden Deiner E-Mail-Adresse. Bitte versuche es erneut.
WARNUNG: Bitte bestätige Deine E-Mail-Adresse, um regelmäßige Updates zu erhalten.