Objektdaten
Objektbeschreibung
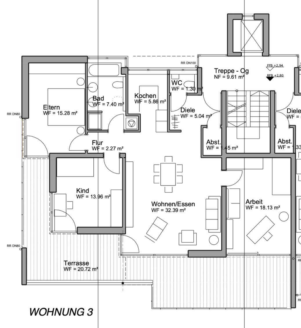
Geräumige Neubauwohnung mit 4 Zimmern in Ringsheim, in einem Gebäude mit zwei Wohneinheiten. Die Wohnung, die sich auf etwa 116 qm erstreckt, ist hell, modern und praktisch geschnitten. Nichtraucher ohne Haustiere werden bevorzugt. Ab dem 01.06.2026 oder später zu vermieten. Um Ihre Anfrage schnell bearbeiten zu können, bitten wir Sie, uns direkt die wichtigsten Informationen mitzuteilen: - Anzahl der einziehenden Personen - Alter und Beschäftigung (Beruf/Arbeitgeber) - Monatliches Nettoeinkommen - Gewünschter Einzugstermin - Haustiere (ja/nein) Miete: 1280€, Garage und Stellplatz: 90€ Nebenkosten: 230 €So funktioniert es
- Alle neuen Anzeigen matchen wir kostenlos mit Deinen Suchparametern.
- Passende Angebote senden wir Dir in einer E-Mail pro Tag.
- Du kannst auch verschiedene Suchen anlegen und Dich jederzeit abmelden. Mehr dazu





