Objektdaten
Objektbeschreibung
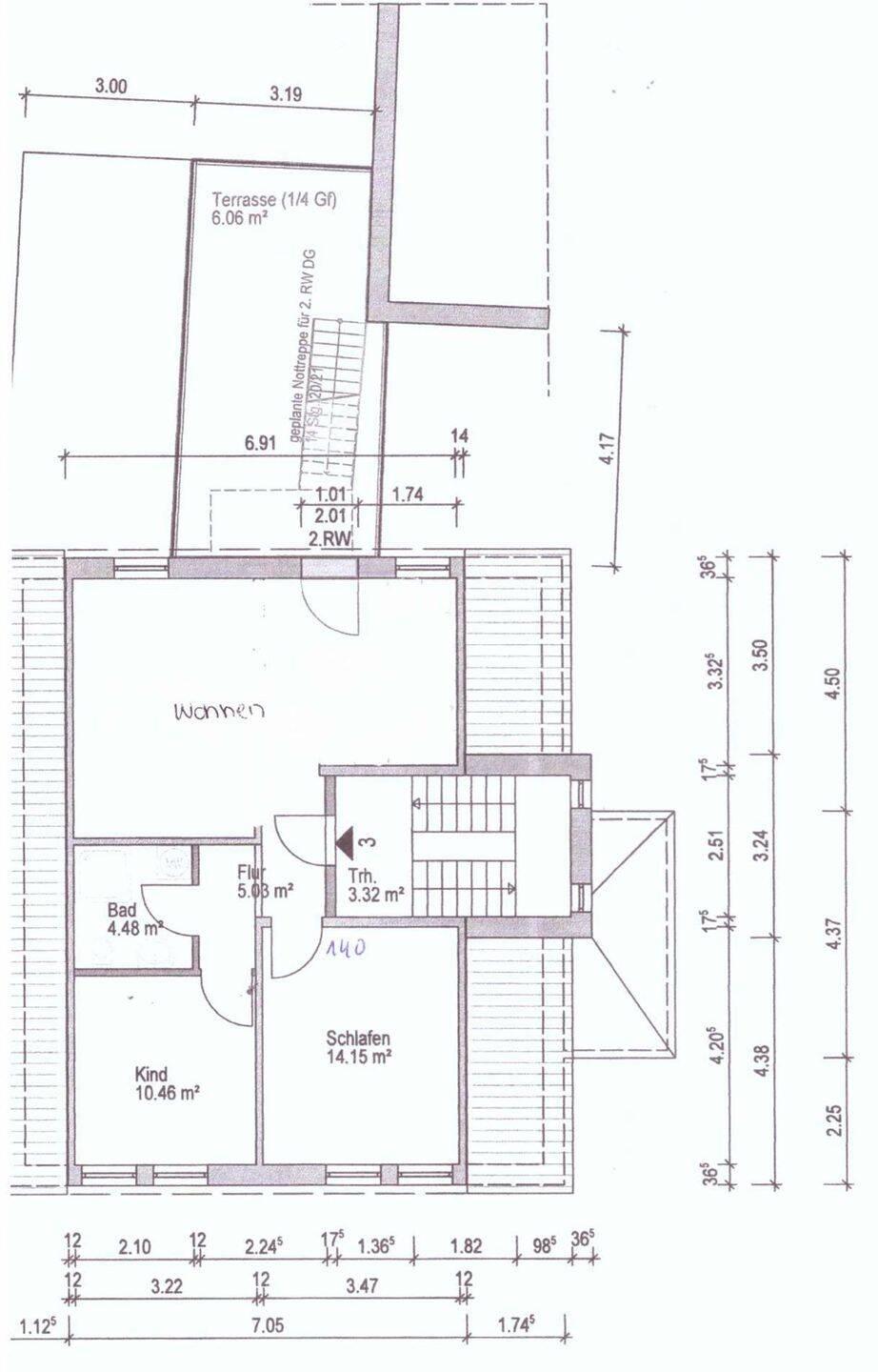
Die Wohnanlage umfasst insgesamt 3 Wohneinheiten, die jeweils einzeln zu vermieten sind. Diese Wohnung befindet sich im Vorderhaus mit separatem Eingang.Ihr neues ZuhauseDiese kernsanierte 2-Zimmer-Etagenwohnung im 1. Obergeschoss und Dachgeschoss bietet auf ca. 71 m² Wohnfläche ein modernes Wohngefühl für anspruchsvolle Singles oder Paare, die Wert auf Qualität und zeitgemäßes Design legen. Das Gebäude wurde umfassend kernsaniert und präsentiert sich 2025 im Erstbezug - hier ist alles neu.Ausstattung mit StilDie Wohnung überzeugt mit hochwertigen Designbelägen, die den Räumen eine warme und einladende Atmosphäre verleihen. Die Einbauküche ist mit hochwertigen Geräten ausgestattet und lässt keine Wünsche offen. Im Badezimmer sorgt eine ebenerdige, bodengleiche Dusche für modernen Komfort. Eine Zentralheizung gewährleistet angenehme Wärme in der kalten Jahreszeit. Das Highlight der Wohnung ist die Dachterrasse, welche über die Küche zugänglich ist.Eckdaten im ÜberblickDie Wohnung befindet sich in einem Mehrfamilienhaus mit insgesamt 2 Vollgeschossen und bietet mit ihrem durchdachten Grundriss auf 2 Zimmern ausreichend Platz zum Wohnen und Leben. Überzeugen Sie sich selbst und vereinbaren Sie einen Besichtigungstermin.So funktioniert es
- Alle neuen Anzeigen matchen wir kostenlos mit Deinen Suchparametern.
- Passende Angebote senden wir Dir in einer E-Mail pro Tag.
- Du kannst auch verschiedene Suchen anlegen und Dich jederzeit abmelden. Mehr dazu





