Vermietung einer gemütlichen 4-Zimmer-Wohnung mit ca. 106 m² in zentraler Lage in Neuwied. Die Wohnung eignet sich ideal für Paare und kleine Familien mit guter Infrastruktur und ausreichendem Platz.
Objektdaten
Objektbeschreibung
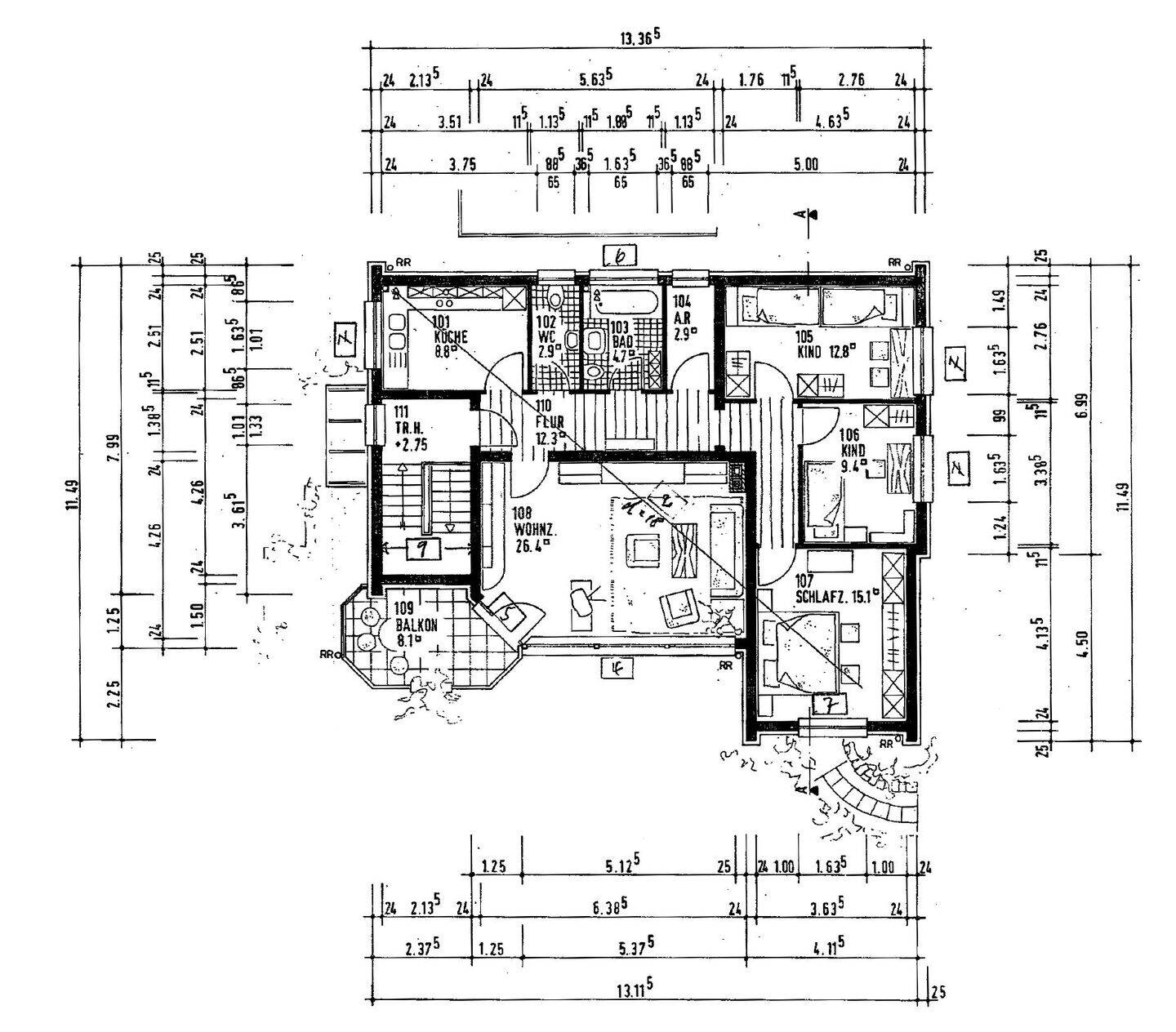
Zur Vermietung steht eine gepflegte und großzügig geschnittene 4-Zimmer-Wohnung mit ca. 106 m² Wohnfläche in zentraler Lage. Die Wohnung eignet sich besonders für Paare oder kleine Familien mit 1–2 Kindern, die Wert auf eine gute Infrastruktur und ausreichend Platz legen. ⸻ Ausstattung: * 4 gut geschnittene Zimmer * 2 Balkone * Badezimmer mit Badewanne, Dusche & 2 Waschbecken * Separates Gäste-WC * Eigener Kellerraum * Waschraum im Keller für Waschmaschine & Trockner ⸻ Lage: Die Wohnung befindet sich in sehr zentraler Lage mit direkter Nähe zur B42 – ideal für Pendler. Alle wichtigen Einrichtungen sind schnell erreichbar: * Kindergarten & Grundschule * Mehrere Spielplätze * Supermärkte & Bäckereien * Apotheke & Ärzte ⸻ Mietkonditionen: * Kaltmiete: 850 € * Heizkosten: 180 € * Nebenkosten: 100 € * Strom: separat durch Mieter anzumelden ⸻ Verfügbarkeit: * Frei ab: 15.07.2026 * Früherer Einzug nach Absprache möglich ⸻ Wunschmieter: Gesucht werden zuverlässige, ruhige und ordentliche Mieter mit festem Einkommen und Interesse an einem langfristigen Mietverhältnis. ⸻ Anfragen: Bitte senden Sie bei Interesse eine kurze Vorstellung mit: * Anzahl der einziehenden Personen * Beruf / Einkommen * gewünschter Einzugstermin Unvollständige Anfragen können leider nicht berücksichtigt werden. Balkon, Keller, Vollbad, Duschbad, Einbauküche, Gäste-WC, Laminat, FliesenEnergieträger: Gas
Energieausweis nicht vorhanden
Makleranfragen nicht erwünscht. Nach § 7 UWG sind unaufgeforderte Kontaktaufnahmen durch Makler ohne ausdrückliche Einwilligung des Empfängers verboten!
ohne-makler (OM) ist weder Anbieter noch Vermittler der Immobilie. OM betreibt eine Plattform für Immobilieneigentümer, die unter anderem die gleichzeitige Veröffentlichung einzelner Inserate auf mehreren Immobilienportalen ermöglicht. Die Inhalte dieser Inserate werden ausschließlich von Dritten verantwortet. Für die Richtigkeit, Vollständigkeit oder Rechtmäßigkeit der Angaben übernimmt OM keine Haftung. Hinweise auf mögliche Rechtsverstöße können jederzeit gemeldet werden und werden nach Prüfung umgehend bearbeitet.
So funktioniert es
- Alle neuen Anzeigen matchen wir kostenlos mit Deinen Suchparametern.
- Passende Angebote senden wir Dir in einer E-Mail pro Tag.
- Du kannst auch verschiedene Suchen anlegen und Dich jederzeit abmelden. Mehr dazu



