Diese gut geschnittene 3-Zimmer-Wohnung mit ca. 78 m² Wohnfläche und zwei Balkonen befindet sich in einer gefragten Lage in Stuttgart. Ideal für Paare, die eine komfortable und zentrale Lage suchen.
Objektdaten
Objektbeschreibung
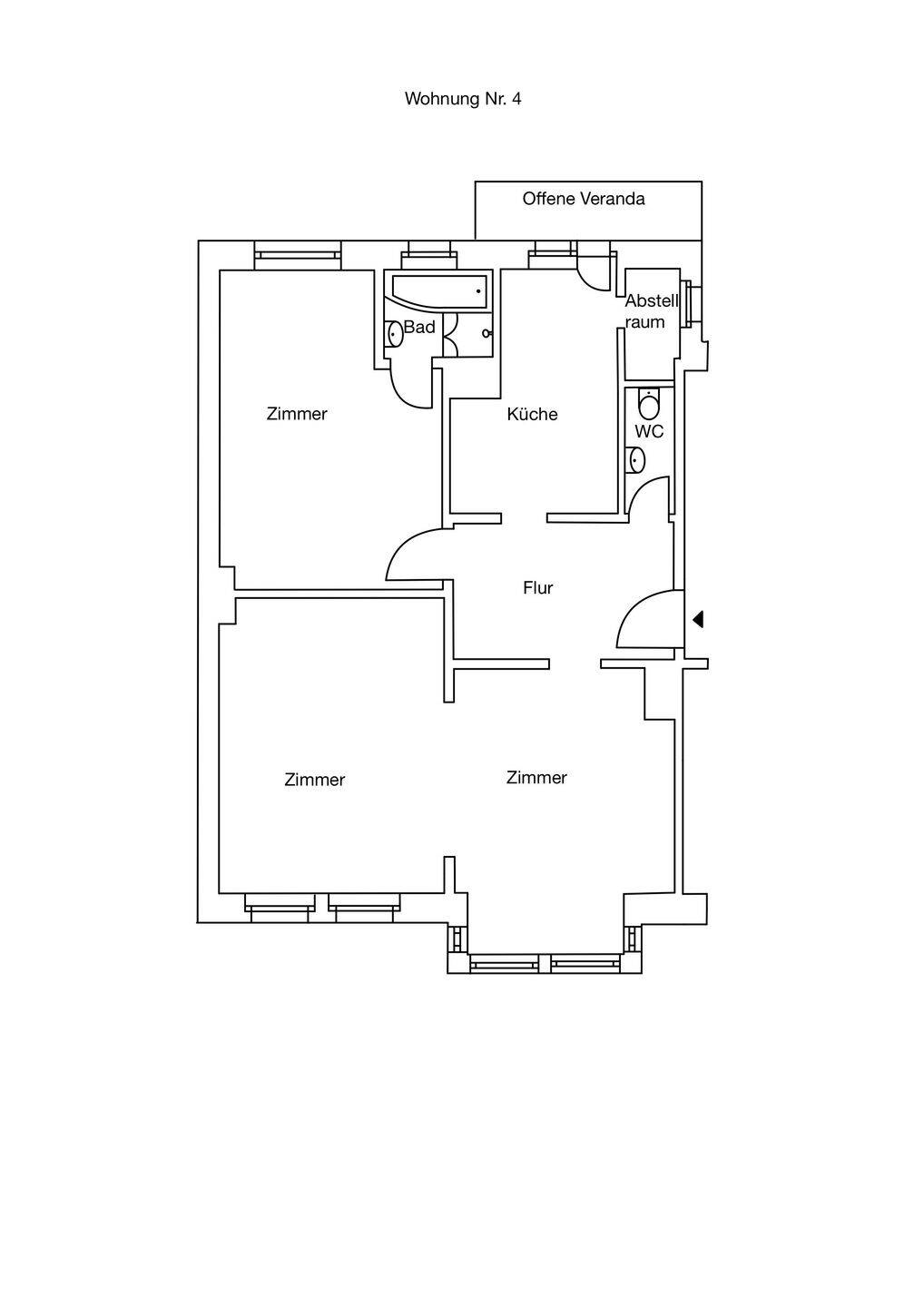
Diese gut geschnittene 3-Zimmer-Wohnung mit ca. 78 m² Wohnfläche befindet sich in attraktiver Lage in der Hohenheimer Straße in Stuttgart und eignet sich ideal für Paare. Die Wohnung überzeugt durch eine praktische Raumaufteilung sowie zwei Balkone, die zusätzlichen Wohnkomfort bieten und sowohl morgens als auch abends zum Verweilen einladen. Balkon, Keller, Duschbad, Einbauküche, Gäste-WC, Parkett, Fliesen Bemerkungen: - 3 gut geschnittene Zimmer - zwei Balkone - Badezimmer sowie separates WC - Einbauküche mit Waschmaschine - 3 KellerräumeKaltmiete: 1.350€ zzgl. Nebenkosten
Bei Interesse freue ich mich über Ihre Anfrage mit kurzer Vorstellung.
Makleranfragen nicht erwünscht. Nach § 7 UWG sind unaufgeforderte Kontaktaufnahmen durch Makler ohne ausdrückliche Einwilligung des Empfängers verboten!
ohne-makler (OM) ist weder Anbieter noch Vermittler der Immobilie. OM betreibt eine Plattform für Immobilieneigentümer, die unter anderem die gleichzeitige Veröffentlichung einzelner Inserate auf mehreren Immobilienportalen ermöglicht. Die Inhalte dieser Inserate werden ausschließlich von Dritten verantwortet. Für die Richtigkeit, Vollständigkeit oder Rechtmäßigkeit der Angaben übernimmt OM keine Haftung. Hinweise auf mögliche Rechtsverstöße können jederzeit gemeldet werden und werden nach Prüfung umgehend bearbeitet.
Ähnliche Angebote
So funktioniert es
- Alle neuen Anzeigen matchen wir kostenlos mit Deinen Suchparametern.
- Passende Angebote senden wir Dir in einer E-Mail pro Tag.
- Du kannst auch verschiedene Suchen anlegen und Dich jederzeit abmelden. Mehr dazu





