Kaufpreis 933.000 €
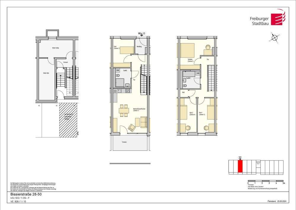
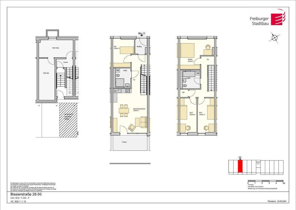
Zimmer 5
Größe 118 m²
79114 Freiburg im Breisgau
Objektdaten
Veröffentlicht am: 26. März 2025
Baujahr: 2026
Energieausweis: Liegt bei der Besichtigung vor
Danke! Bitte bestätige Deine E-Mail-Adresse – wir haben Dir soeben eine Mail geschickt.
Es gab ein Problem beim Absenden. Bitte versuche es erneut.
Bitte bestätige Deine E-Mail-Adresse, um Updates zu erhalten.
Objektbeschreibung
Ihr Zuhause in Freiburg - sozial, lebenswert und nachhaltig! Ein Quartier voller guter Ideen!Im Freiburger Stadtteil Stühlinger entsteht ein nachhaltiges, zukunftsfähiges und wertvolles Wohnquartier! Das Projekt wird in vier Bauabschnitten zwischen Ferdinand-Weiß-Straße und Bissierstraße realisiert. Insgesamt werden über 550 Wohnungen gebaut, davon etwa 75 % Mietwohnungen und etwa 25 % Eigentumswohnungen.Das Metzgergrün ist ein wertvolles Quartier, das als Vorzeigeprojekt für urbanes und ökologisches Wohnen steht! Hier entsteht ein Zuhause, in dem Menschen zusammenkommen und gemeinsam ihre Zukunft gestalten. Das Quartier hat die höchste Zertifizierung erhalten: das DGNB-Platin-Zertifikat. Die DGNB-Zertifizierung umfasst Kriterien aus fünf Themenfeldern des nachhaltigen Bauens (ökologisch, ökonomisch, soziokulturell, technisch und prozessual). Eine gute Investition in die Zukunft!Die Freiburger Stadtbau errichtet aktuell in der ersten Bauphase einen viergeschossigen Gebäudekomplex an der Bissierstraße 28-50 mit 24 Eigentumswohnungen mit 4-5 Zimmern. Die Wohnungen sind als Maisonettewohnungen konzipiert und bieten Familien eine Art Haus in Haus Konzept.Die Fertigstellung ist für Mitte 2026 geplant.Das Quartier besticht durch seine abwechslungsreiche Architektur in Massiv- und Holzbauweise und ein umfangreiches Nachhaltigkeitskonzept. Die Zeilen-, Punkt- und Winkelgebäude im Effizienzhaus-Standard 55 gruppieren sich um eine grüne Mitte, die von einem wunderschönen Bachlauf mit einladenden Uferzonen durchzogen wird. Der verkehrsberuhigte Charakter im Inneren, Spiel- und Freiflächen, die zum Verweilen einladen, machen das Viertel zu einem echten Hingucker. Zusätzlich überzeugt das Quartier durch Umweltfreundlichkeit, eine ausgezeichnete Infrastruktur und innovative Mobilitätskonzepte - ergänzt durch Cafés, Gemeinschaftsangebote und Treffpunkte.
So funktioniert es
- Alle neuen Anzeigen matchen wir kostenlos mit Deinen Suchparametern.
- Passende Angebote senden wir Dir in einer E-Mail pro Tag.
- Du kannst auch verschiedene Suchen anlegen und Dich jederzeit abmelden. Mehr dazu
Wir haben soeben eine E-Mail mit Deinem Suchauftrag an Dich geschickt. – Klicke in dieser Mail auf den Bestätigungslink und schon geht's los. Prüfe ggf. auch Deinen Spamordner.
Es gab ein Problem beim Absenden Deiner E-Mail-Adresse. Bitte versuche es erneut.
WARNUNG: Bitte bestätige Deine E-Mail-Adresse, um regelmäßige Updates zu erhalten.