Kaufpreis 974.580 €
Zimmer 3
Größe 87 m²
10781 Berlin
Objektdaten
Veröffentlicht am: 26. März 2025
Energieausweis: Liegt bei der Besichtigung vor
Danke! Bitte bestätige Deine E-Mail-Adresse – wir haben Dir soeben eine Mail geschickt.
Es gab ein Problem beim Absenden. Bitte versuche es erneut.
Bitte bestätige Deine E-Mail-Adresse, um Updates zu erhalten.
Objektbeschreibung
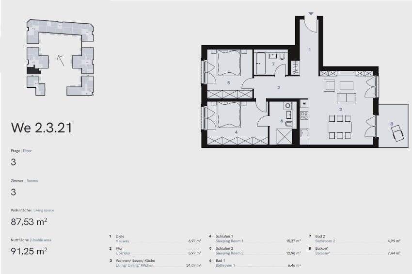
Diele .................................6,97 m²Flur ...................................5,97 m²Wohnen/Essen/Küche ...31,07 m²1 Schlafen ......................15,37 m²2 Schlafen ......................12,98 m²1 Bad ...............................6,46 m²2 Bad ...............................4,99 m²Balkon .............................7,44 m²Das Projekt liegt umgeben von architektonischen Sehenswürdigkeiten wie der bekannten dem Berliner Kammergericht und weiteren Gebäuden in traditioneller Bauweise. Durch die ausgezeichnete Arbeit der Architekten mit viel Liebe zum Detail fügt sich das Ensemble hervorragend in seine Umgebung ein.Die Bauweise greift klassische Elemente des Berliner Stadtstils auf und kombiniert dieses geschickt mit modernen Strukturen. So entsteht eine Kombination aus Klassik und Moderne, die eine gelungene Verbindung zu den umliegenden Gebäuden ermöglicht. Die verwendeten Baumaterialien passen sehr gut zu den umliegenden Gebäudekomplexen. Am unteren Teil des Gebäudes wurden hochwertige Natursteine verarbeitet, die oberen Stockwerke mit verschieden modernen getönten Farben verputzt. Hochwertige-Ausstattung:Hochwertige, Materialien in warmen Farbtönen für eine zeitlose Ausstattung. Im Bereich der Wohnräume wurde Holzparkett in Eiche verwendet. Die hohen Türen sorgen für ein großzügigesRaumempfinden und ermöglichen nahezu fließende Übergänge zwischen den Wohnbereichen. Die Wände werden geputzt und erhalten einen hellen Farbanstrich. In den Bädern steht zeitloser Materialeinsatz im Vordergrund. Großformatige Fliesen wurden an Wand und Boden verarbeitet. Zeitlose gestaltete Badkeramik wie der Waschtisch von Duravit "Vero" oder das zeitlose WC"Starck3" Rimless® stehen für klare, geometrische Formen. Ebenso sind die Badarmaturen aus Edelstahl von Hansgrohe mit ihren puristischen Hebelgriffen. Zudem werden alle Duschen bodeneben verbaut und sorgen so für angenehmen Komfort beim Duschen.ALLE BILDER SIND BEISPIELE Hinweis zum Energieausweis: Der Energieausweis liegt noch nicht vor. Übergabe/Verfügbarkeit ab: Nach Vereinbarung. Informativ: Kaufpreis 974580,00 €. Provisionshinweis: käuferseits provisionsfrei . Dieses Angebot wird bei uns betreut von Herr Uwe Strietzel, Tel. 0179/4504353.
So funktioniert es
- Alle neuen Anzeigen matchen wir kostenlos mit Deinen Suchparametern.
- Passende Angebote senden wir Dir in einer E-Mail pro Tag.
- Du kannst auch verschiedene Suchen anlegen und Dich jederzeit abmelden. Mehr dazu
Wir haben soeben eine E-Mail mit Deinem Suchauftrag an Dich geschickt. – Klicke in dieser Mail auf den Bestätigungslink und schon geht's los. Prüfe ggf. auch Deinen Spamordner.
Es gab ein Problem beim Absenden Deiner E-Mail-Adresse. Bitte versuche es erneut.
WARNUNG: Bitte bestätige Deine E-Mail-Adresse, um regelmäßige Updates zu erhalten.