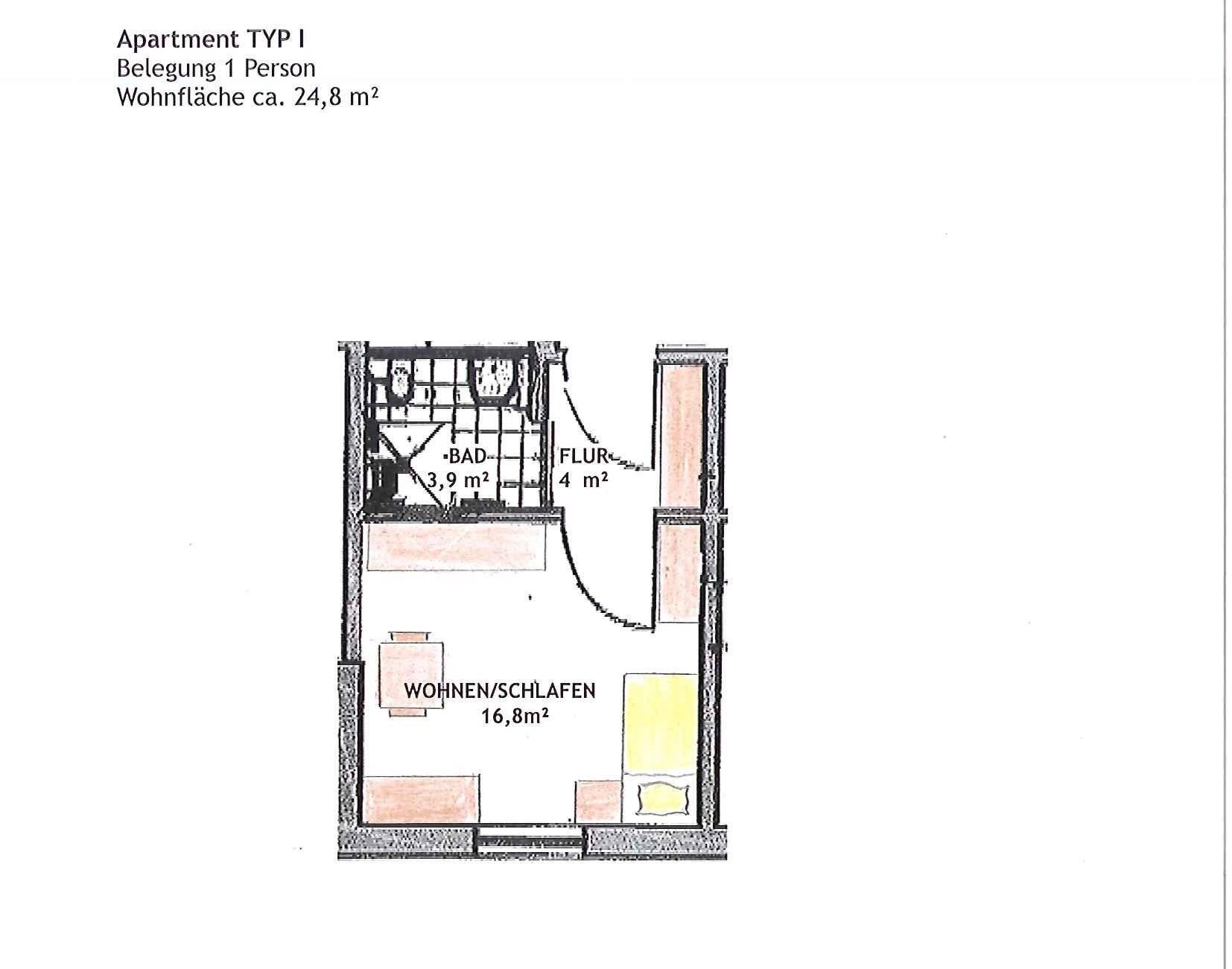
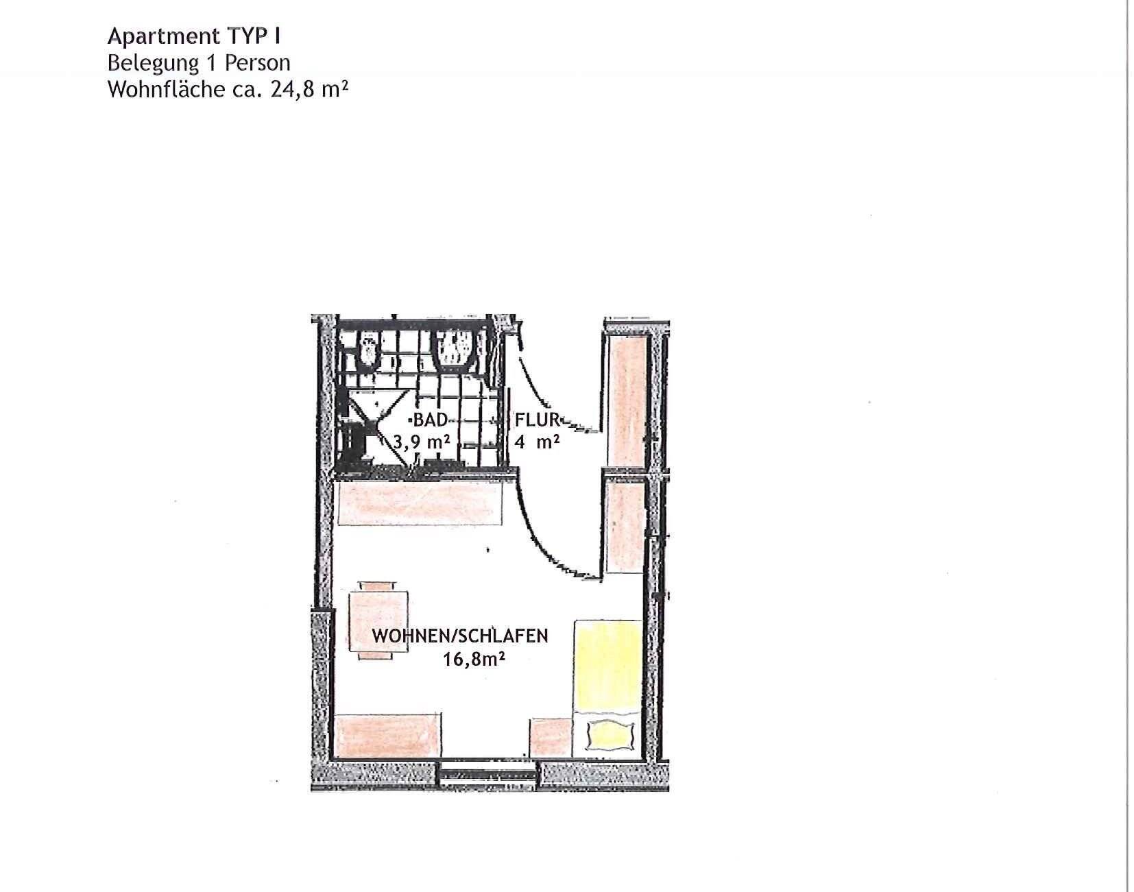
Senioren-Zimmer für selbständiges Wohnen

Warmmiete 430 €
Zimmer 1
99867 Gotha
Größe 24 m2

Objektdaten

Veröffentlicht am: 27. März 2025
Nebenkosten: 180 €
Kaltmiete 250 €
Energieausweis: Liegt bei der Besichtigung vor
  • Objektbeschreibung

    Das Alleinwohnen wird immer beschwerlicher, dann ist das hier vielleicht die Lösung. Dieses nagelneue Einraum-Apartment mit kleinem Flur, Bad mit ebenerdiger Dusche und Gemeinschaftsküche und Gemeinschaftsaufenthaltsraum ist vielleicht das Richtige.In einem Seitentrakt des Therese Gayer Hauses, der städtischen Heime Gotha, entstanden 6 kleine und zwei größere Apartments für Senioren. In der Gemeinschaftsküche kann man seine Speisen selbst zubereiten und entweder im gemeinsamen Aufenthaltsraum mit Terrasse oder im eigenen Apartment essen. Es besteht auch die Möglichkeit im angeschlossenen Speiseraum des Pflegeheims an den Mahlzeiten teilzunehmen.Ein Waschmaschinenraum mit angrenzendem Trockenraum steht den Bewohnern zur Verfügung. Pflegebedürftige Mieter müssen sich über einen ambulanten Pflegedienst versorgen lassen. Eine Pflege über das Pflegeheim ist nicht möglich. Es handelt sich um eigenständige Wohneinheiten ohne Pflegepersonal. Eine Vermietung ist nur an Senioren möglich.Die beiden größeren Apartments verfügen über eine Größe von 33,2 m² und können von zwei Personen genutzt werden. Der Preis für dieses Apartment beträgt dann 641,60 EUR (inkl. NK)
    zu den Kontaktinfosjetzt kostenlosen Suchagenten aktivieren
    Nach oben scrollen