Objektdaten
Objektbeschreibung
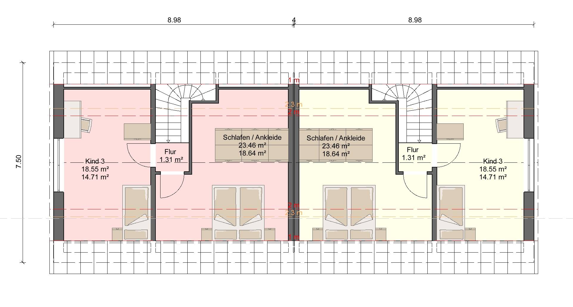
Auf dem Grundstück entsteht ein Doppelhaus, wovon wir hier jeweils eine Doppelhaushälfte anbieten. Wir sind Eigentümer vom Grundstück und haben die Baugenehmigung für das geplante Haus. Somit kann nach Kauf mit dem Bau zeitnah angefangen werden und das Haus in 2025 fertiggestellt werden.Ähnliche Angebote
So funktioniert es
- Alle neuen Anzeigen matchen wir kostenlos mit Deinen Suchparametern.
- Passende Angebote senden wir Dir in einer E-Mail pro Tag.
- Du kannst auch verschiedene Suchen anlegen und Dich jederzeit abmelden. Mehr dazu




