Objektdaten
Objektbeschreibung
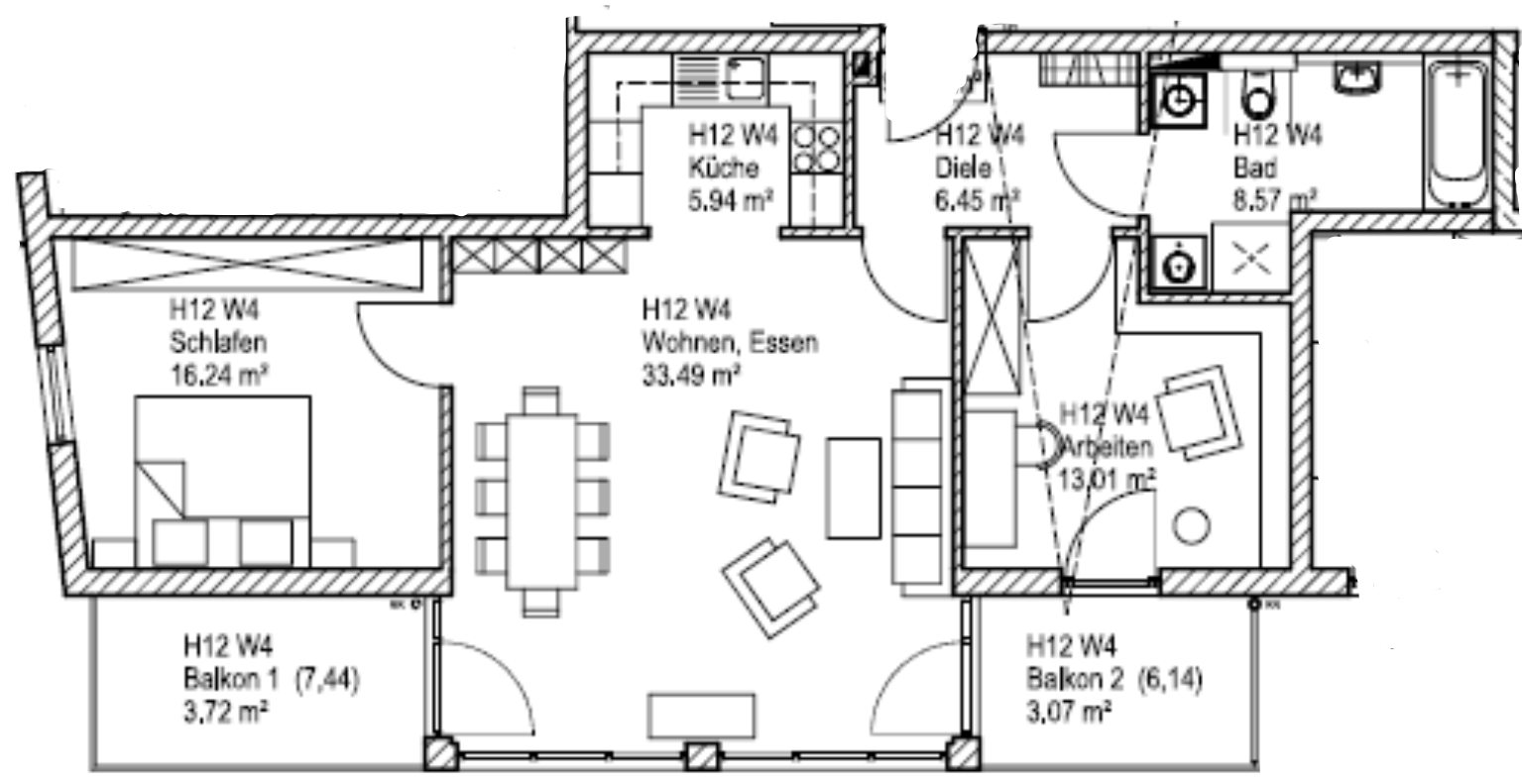
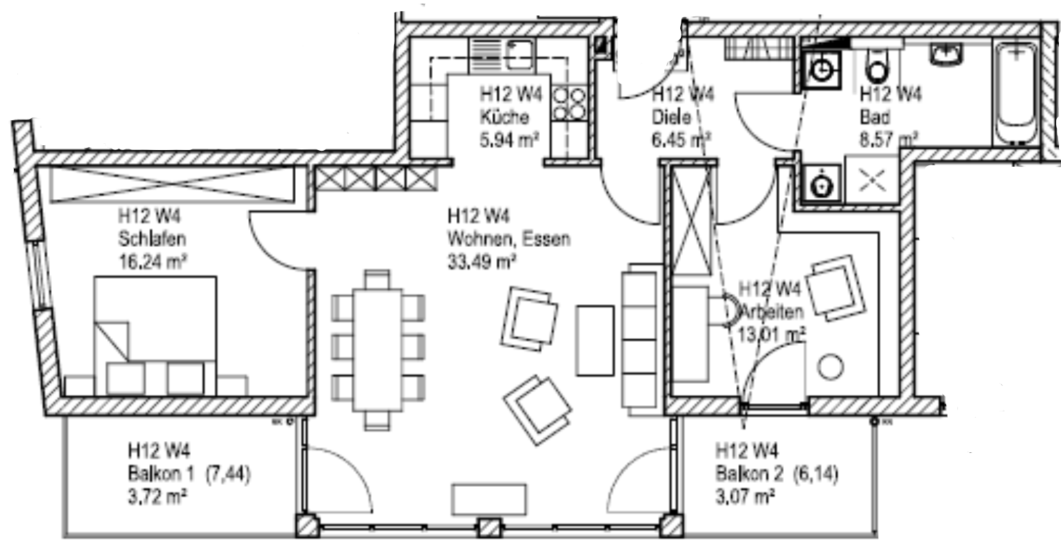
Diese großzügig geschnittene Traumwohnung befindet sich im 1. OG eines Mehrfamilienhauses im Wohnpark Tegernau, welche Sie bequem mit einem Aufzug erreichen können. Die komfortable Wohnung bietet Ihnen einen zeitlos hell gefliesten Flur, ein Badezimmer mit Badewanne, spülrandlose Toilette sowie Anschlussmöglichkeit für Waschmaschine und Trockner. Eines der Schlafzimmer liegt nach Süden mit direkten Zugang zum Balkon, ein weiteres Schlafzimmer ist nach Westen ausgerichtet. Über das Wohnzimmer können Sie auf beide Balkone gelangen. Zu der Wohnung gehört ein 5 m² großes Kellerabteil.Für 28.500 € können Sie einen TG-Stellplatz erwerben.Die Wohnung ist vermietet:Kaltmiete: 1150 €Nebenkosten: 250 €So funktioniert es
- Alle neuen Anzeigen matchen wir kostenlos mit Deinen Suchparametern.
- Passende Angebote senden wir Dir in einer E-Mail pro Tag.
- Du kannst auch verschiedene Suchen anlegen und Dich jederzeit abmelden. Mehr dazu




